Spazio Prestigioso San Lorenzo VENDITA

Via di Porta Labicana 39 - Roma, Zona San Lorenzo
€ 480.000
  • Più di 5 locali
  • 188 mq
  • 2 bagni

Negozio in Vendita a Roma

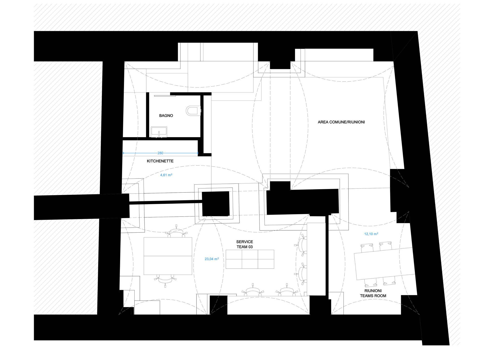
In Via dei Marsi, nel cuore vibrante di San Lorenzo, proponiamo in vendita un prestigioso immobile a uso ufficio, composto da circa 100 mq al piano terra e ulteriori 100 mq al piano seminterrato, risultato di una ristrutturazione recente che armonizza eleganza contemporanea e fascino architettonico.
Il piano terra si articola in 5 ambienti versatili, con una raffinata sala riunioni, un’area ingresso/accoglienza di grande rappresentanza, due uffici e uno spazio coworking capace di ospitare fino a 15 postazioni, oltre a un servizio.
Al livello seminterrato si trovano un angolo attrezzato cucina/zona break, un’ampia sala, due ulteriori ambienti operativi e un secondo servizio. Gli spazi, ampi e ben distribuiti, offrono comfort, privacy e massima funzionalità. Inoltre, l'immobile è dotato di canna fumaria, caratteristica rara e molto richiesta, che amplia notevolmente le potenzialità d’uso degli ambienti.
La posizione angolare dell’immobile garantisce ampie vetrine a tutta altezza, una fonte di luce naturale che dona luminosità, apertura e un forte impatto visivo agli ambienti del piano strada.
Il piano seminterrato, caratterizzato dal suggestivo soffitto a mattoncini e dalla bocca di leone che porta luce e aria, crea un’atmosfera accogliente e autentica, perfetta per studi professionali, atelier, laboratori creativi o spazi di archiviazione.
L’immobile è dotato di impianti di ultima generazione, domotica avanzata, sistema d’allarme, canna fumaria, materiali di pregio e finiture curate in ogni dettaglio. I soffitti oltre i 4 metri conferiscono imponenza e un senso di grande respiro agli ambienti.
Categoria catastale C/1 al piano terra e C/2 al piano sottostante.
Una soluzione rara e ricercata, ideale per chi desidera un ambiente professionale esclusivo, efficiente e di grande carattere, nel quartiere più dinamico e iconico di Roma.

LEGGI TUTTO

CONDIVIDI SUI SOCIAL

DATI PRINCIPALI

Riferimento
633905
Contratto
Vendita
Tipologia
Immobile - Negozio
Superficie
188 mq
Locali
Più di 5
Bagni
2
Piano
Piano terra
Totale piani
6

CARATTERISTICHE

Ascensore Arredato Allarme

COSTI

Prezzo
€ 480.000,00

EFFICIENZA ENERGETICA

Stato
Ristrutturato
Anno costruzione
1890
Riscaldamento
Autonomo
Climatizzazione
Si
Classe energetica
D
IPE
351,00 kWh/m²a

A+

A

B

C

351,00 kWh/m²a | Classe energetica D

D

E

F

G

MAPPA

ANNUNCI SIMILI

VENDITA 9
€ 339.000
Negozio in Vendita a Roma, Zona Esquilino
  • Più di 5 locali
  • 200 mq
  • 4 bagni
VENDITA 8
€ 1.350.000
Negozio in Vendita a Roma (Roma)
  • Più di 5 locali
  • 748 mq