ROMA – Prati/Valle Aurelia AFFITTO

Via Angelo Emo 23 - Roma (Roma)
€ 17.000 mensili
  • 1 locale
  • 488 mq
  • 1 bagno

Negozio in Affitto a Roma

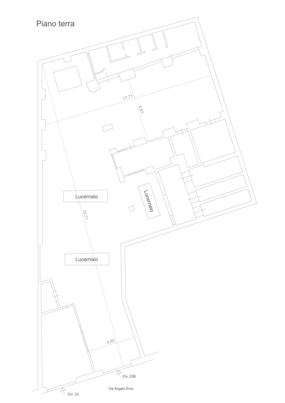
EDARES propone in locazione un immobile commerciale di ampia metratura situato in Via Angelo Emo, area ad altissimo passaggio pedonale e veicolare, nel quadrante Prati–Valle Aurelia. La strada beneficia di una forte vocazione commerciale, con presenza consolidata di negozi, servizi, attività di ristorazione e brand di prossimità. La posizione è ulteriormente valorizzata dalla vicinanza alla fermata Metro A “Cipro”, da numerose linee di trasporto pubblico e da un bacino residenziale stabile, che garantisce flussi costanti durante tutto l’arco della giornata. 
Il locale si sviluppa su un unico livello a piano terra per una superficie complessiva di circa 488 mq, possibilità di installare canna fumaria.
Viene proposto in locazione con nuovo contratto ad un canone di € 17.000,00 mese.  
EDARES – Real Estate Solutions è una società leader altamente qualificata e specializzata nel settore dell’intermediazione immobiliare delle cessioni di aziende commerciali e nella ricerca di location strategiche per brand e imprese interessate a espandere il proprio business su scala nazionale Per tutte le informazioni è possibile contattare i nostri uffici al numero 06 6797851 o inviare una mail a info@edares.it Le presenti informazioni e planimetrie sono da considerarsi meramente indicative e non costituiscono elementi di natura contrattuale..

LEGGI TUTTO

CONDIVIDI SUI SOCIAL

DATI PRINCIPALI

Riferimento
633910
Contratto
Affitto
Tipologia
Immobile - Negozio
Superficie
488 mq
Locali
1
Bagni
1
Piano
Piano terra
Totale piani
1

CARATTERISTICHE

Ascensore

COSTI

Canone
Affitto € 17.000,00 al mese
Tipo locazione
4+4

EFFICIENZA ENERGETICA

Classe energetica
G
IPE
175,00 kWh/m²a

A+

A

B

C

D

E

F

175,00 kWh/m²a | Classe energetica G

G

MAPPA