Quartiere Africano, Ristorante mq 140 c.a. con Dehors VENDITA

Via Tripolitania 116 - Roma (Roma)
€ 89.000
  • Più di 5 locali
  • 140 mq
  • 3 bagni

Negozio in Vendita a Roma

Rif. RMCP681

La Lux Food Restaurant Brokers,

propone, nel popoloso e commercialissimo

quartiere Trieste/Salario, la cessione di ramo d’azienda

di un ristrutturatissimo Ristorante nelle immediate adiacenze di Via Tripolitania e della Metro Libia.

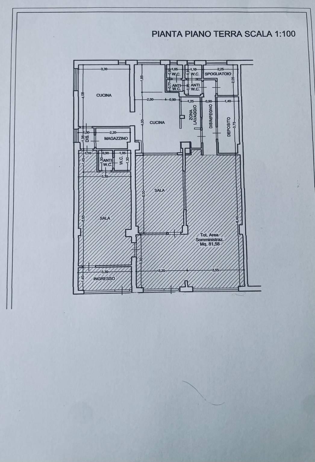
La location curata in ogni dettaglio, gode di 3 vetrine su strada, si tratta di mq 140 c. a.

La location, curata in ogni dettaglio, si sviluppa su un unico livello , veniamo accolti dalla zona accoglienza e subito dopo si sviluppano due sale volte ad ospitare attualmente 40 coperti c.a.con una capienza di oltre 60 coperti c.a., completano le sale la zona beverage completamente attrezzata.

Meravigliosa cucina di mq 45 c.a. sapientemente attrezzata, nella quale abbiamo: 4 piastre elettriche, Forno Rational, Friggitrice, Abbattitore, Affettatrice, 4 lampade salamandre, lavelli in acciaio, tavoli in acciaio, piano refrigerato 3 sportelli negativo, piano refrigerato 4 sportelli positivo, Forno pizze elettrico refrattario con cappa e sostegno porta teglie, zona lavaggio e molto altro.

Doppi servizi per il pubblico nonché il servizio e lo spogliatoio per i dipendenti.

Doppio magazzino attrezzato con mensole, scaffali, pozzetti ed armadio frigo.

Splendido Dehors , costituito da un’occupazione del suolo pubblico permanente sul marciapiede e su pedana, per un totale di 35 coperti c.a., al costo annuo di E 6.960,00 c.a.

Licenza di somministrazione di alimenti e bevande, alcolici e superalcolici.

Canna fumaria.

Locale completamente climatizzato ed insonorizzato.

Eccellente avviamento in costante crescita .

Contratti di locazione 6+6 ad € 3.130,00 al mese con scadenza 2030 e 2032.

A garanzia dei contratti di locazione è richiesto un deposito cauzionale di

E 7.125,00.

Location estremamente apprezzata dal pubblico romano, dove il connubio tra l'estrema qualità delle materie prime, si fonde con la creatività e la continua ricerca.

Ubicazione di sommo interesse, in un quartiere altamente popoloso, contornato da innumerevoli attività commerciali e studi professionali.

Prezzo richiesto: E 89.000,00
(Importo dilazionabile: Fee d’ingresso E 45.000,00 e saldo in 12 mesi ),

Attestato di prestazione energetica: G

Ape: 65

I contenuti degli annunci pubblicitari hanno valore puramente indicativo e non costituiscono elemento contrattuale.

Le immagini sono di repertorio e la geolocalizzazione è indicativa e non reale, al fine di tutelare la riservatezza e la discrezione necessarie per l'attività di vendita delle aziende che gestiamo.

Per l'esatta consistenza dei prodotti offerti, è possibile visionare la

documentazione custodita in agenzia.

Ti invito a seguirci sulla nostra pagina instagram @luxfoodbrokers, per vedere tutti i nostri locali in vendita e preziosi video di formazione sul mondo della ristorazione.

LEGGI TUTTO

CONDIVIDI SUI SOCIAL

DATI PRINCIPALI

Riferimento
644222
Contratto
Vendita
Tipologia
Immobile - Negozio
Superficie
140 mq
Locali
5
Bagni
3
Piano
Piano terra
Totale piani
6

CARATTERISTICHE

Ascensore Arredato Allarme

COSTI

Prezzo
€ 89.000,00
Spese condominiali
€ 90,00 / mese

EFFICIENZA ENERGETICA

Stato
Ristrutturato
Anno costruzione
1950
Riscaldamento
Autonomo
Climatizzazione
Si
Classe energetica
G
IPE
351,00 kWh/m²a

A+

A

B

C

D

E

F

351,00 kWh/m²a | Classe energetica G

G

MAPPA

ANNUNCI SIMILI

VENDITA 20
€ 420.000
Negozio in Vendita a Roma (Roma)
  • Più di 5 locali
  • 780 mq
  • 4 bagni
VENDITA 13
€ 850.000
Negozio in Vendita a Roma (Roma)
  • Più di 5 locali
  • 350 mq
  • 4 bagni
VENDITA 17
€ 830.000
Negozio in Vendita a Roma, Zona Città Giardino
  • Più di 5 locali
  • 450 mq
  • 4 bagni
VENDITA 4
€ 264.000
Negozio in Vendita a Roma (Roma)
  • Più di 5 locali
  • 154 mq
VENDITA 20
€ 80.000
Negozio in Vendita a Roma (Roma)
  • Più di 5 locali
  • 160 mq
  • 2 bagni