Negozio - Locale commerciale in Vendita VENDITA

Via Ugo Rellini - Roma, Frazione Ostia Antica
€ 179.000
  • 2 locali
  • 115 mq
  • 1 bagno

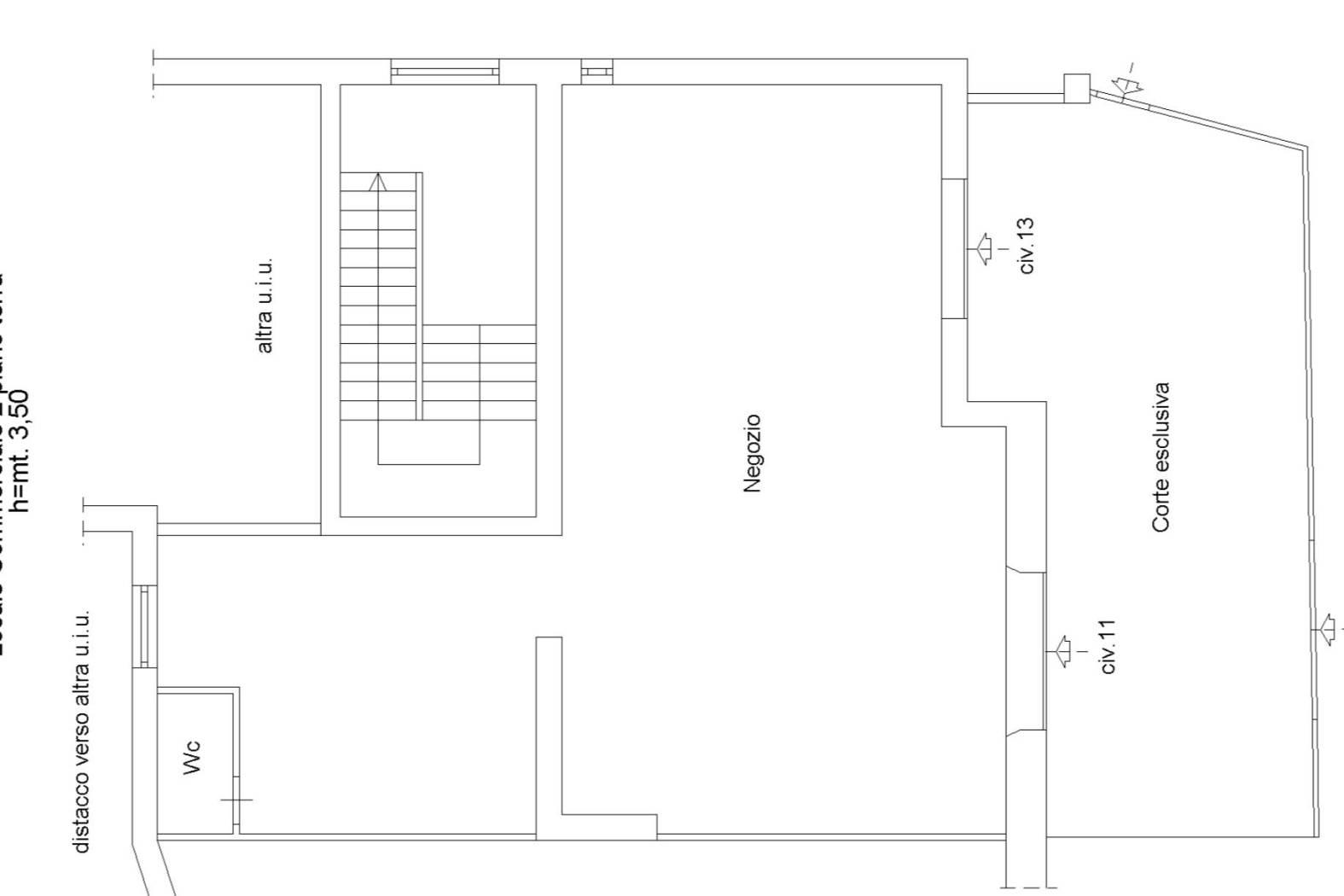
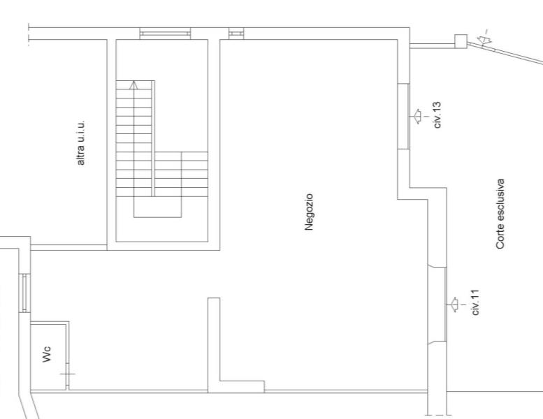
Negozio in Vendita a Roma

Ampia metratura, locale diviso in 2 ambienti collegati tra loro ed un servizio, ottimo per uso investimento , no condominio

CONDIVIDI SUI SOCIAL

DATI PRINCIPALI

Riferimento
639486
Contratto
Vendita
Tipologia
Immobile - Negozio
Superficie
115 mq
Locali
2
Bagni
1
Piano
Piano terra
Totale piani
3
Box/Posto auto
Singolo

CARATTERISTICHE

Ascensore

COSTI

Prezzo
€ 179.000,00

EFFICIENZA ENERGETICA

Stato
Abitabile
Anno costruzione
1980
Riscaldamento
Autonomo
Classe energetica
G
IPE
175,00 kWh/m²a

A+

A

B

C

D

E

F

175,00 kWh/m²a | Classe energetica G

G

MAPPA

ANNUNCI SIMILI

VENDITA 17
€ 93.000
Negozio in Vendita a Roma (Roma)
  • 2 locali
  • 160 mq
  • 1 bagno
VENDITA 2
€ 119.000
Negozio in Vendita a Roma (Roma)
  • 2 locali
  • 140 mq
  • 1 bagno
VENDITA 17
€ 129.000
Negozio in Vendita a Roma (Roma)
  • Più di 5 locali
  • 180 mq
  • 2 bagni