• 1 locale
  • 450 mq

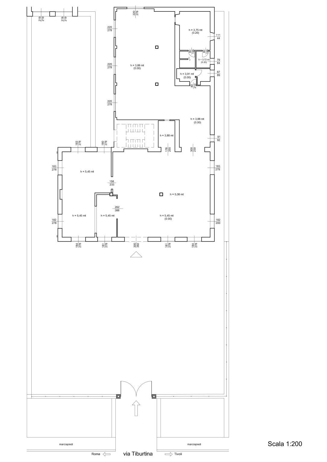
Negozio in Affitto a Guidonia Montecelio

Via Tiburtina, locale posto al piano terra di circa 450 mq coperti (con altezza interna in parte pari a m. 3,60 e in parte a m. 5,10) e 750 mq di spazi esterni;
con inoltre, sempre al piano terra, 2 box coperti. La destinazione è parte commerciale (mq. 80 circa) e parte artigianale (mq. 370 circa).

CONDIVIDI SUI SOCIAL

DATI PRINCIPALI

Riferimento
640532
Contratto
Affitto
Tipologia
Immobile - Negozio
Superficie
450 mq
Locali
1
Piano
Piano terra
Totale piani
1
Box/Posto auto
Doppio

CARATTERISTICHE

Ascensore

COSTI

Canone
Affitto € 3.400,00 al mese
Tipo locazione
4+4

EFFICIENZA ENERGETICA

Classe energetica
G
IPE
351,00 kWh/m²a

A+

A

B

C

D

E

F

351,00 kWh/m²a | Classe energetica G

G

MAPPA

ANNUNCI SIMILI