LOCALE COMM.LE RISTRUTTURATO ( METRO B1 LIBIA) VENDITA

Via Amatrice 20 - Roma (Roma)
€ 179.000
  • 2 locali
  • 59 mq
  • 1 bagno

Negozio in Vendita a Roma

ZONA LIBIA - RISTRUTTURATO
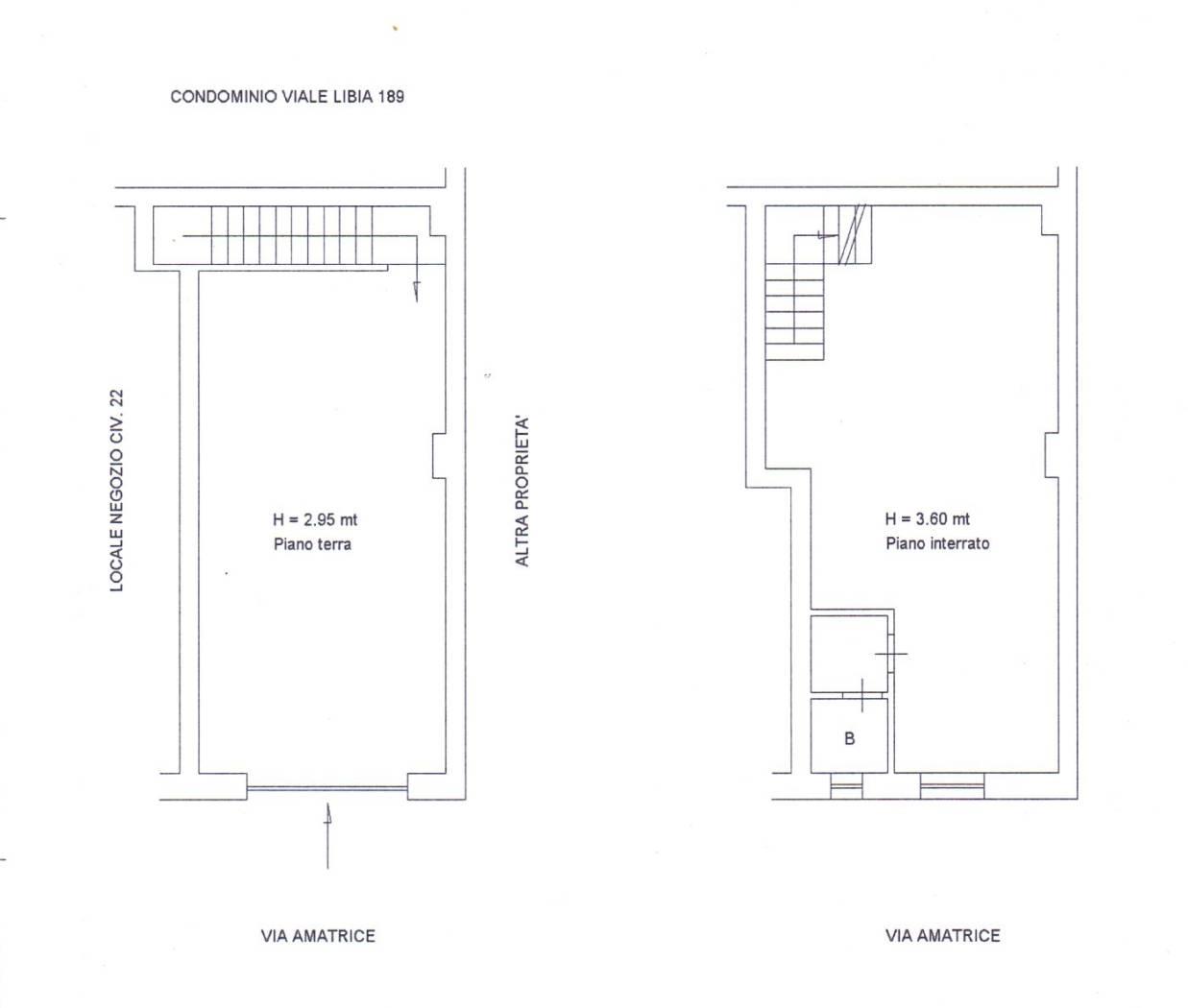
Via Amatrice n.20 , proponiamo in locazione locale commerciale cat.C/1 su due livelli completamente ristrutturato con impianto elettrico nuovo. Infissi in perfetto stato e serranda elettrica . Il locale è disposto su due piani ( 30 mq circa per piano) ,ed una scala conduce al piano sottostante ove è situato il bagno e l'antibagno. NO CANNA FUMARIA .
DISPONIBILE SUBITO .
I dati pubblicati inerenti le caratteristiche degli immobili sono da intendersi indicativi e non contrattuali, in particolare i dati relativi alla superficie indicata, all’anno di costruzione e ristrutturazione dell’immobile, ed alle caratteristiche in generale. L’agenzia si riserva il diritto di apportare modifiche anche sostanziali a tali caratteristiche, senza alcun vincolo contrattuale nei confronti del visitatore / acquirente e senza alcun preavviso..

Il TEAM IMMOBILEDIL è un gruppo di Mediatori immobiliari regolarmente iscritti al REA della Camera di Commercio di Roma , tutti nati , cresciuti professionalmente e residenti nei quartieri Trieste/Salario/Parioli operativi su tutta la città di Roma Provincia . La nostra organizzazione erèdita, da una tradizione immobiliare di famiglia, tutta l'esperienza necessaria ed imprescindibile per alienare un bene , per acquistarlo o semplicemente locarlo.

LEGGI TUTTO

CONDIVIDI SUI SOCIAL

DATI PRINCIPALI

Riferimento
638469
Contratto
Vendita
Tipologia
Immobile - Negozio
Superficie
59 mq
Locali
2
Bagni
1
Piano
Piano terra
Totale piani
6

CARATTERISTICHE

Ascensore

COSTI

Prezzo
€ 179.000,00
Spese condominiali
€ 50,00 / mese

EFFICIENZA ENERGETICA

Stato
Ristrutturato
Anno costruzione
1955
Riscaldamento
Autonomo
Classe energetica
G
IPE
175,00 kWh/m²a

A+

A

B

C

D

E

F

175,00 kWh/m²a | Classe energetica G

G

MAPPA