Locale commerciale in Vendita VENDITA

Piazza della Trinità dei Pellegrini - Roma (Roma)
€ 710.000
  • Più di 5 locali
  • 174 mq
  • 3 bagni

Negozio in Vendita a Roma

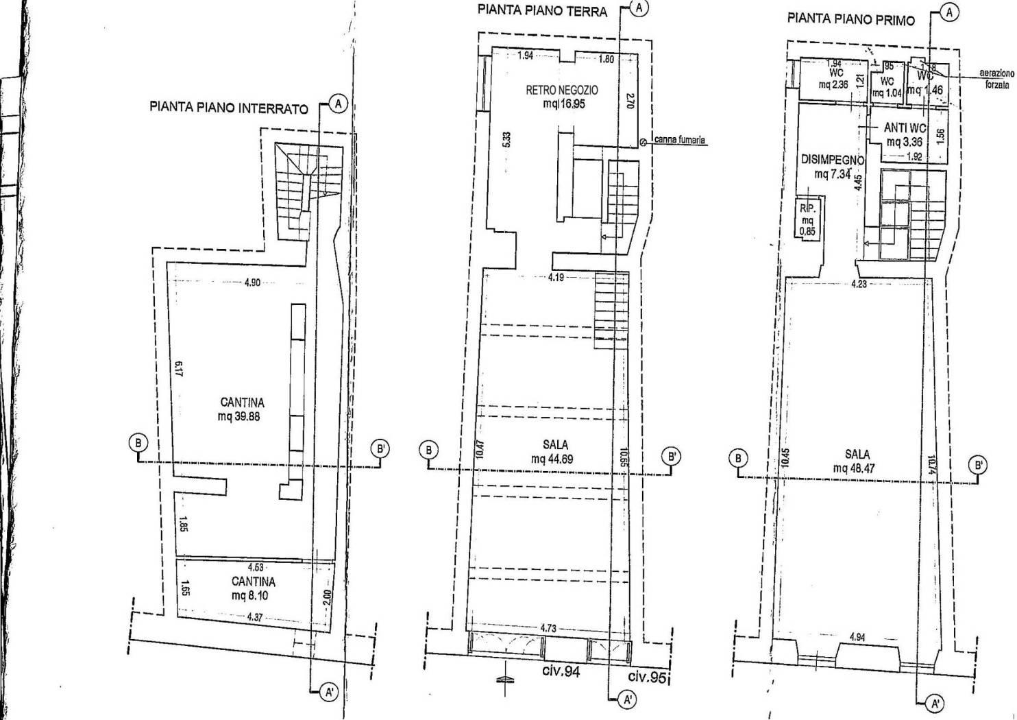
Nel cuore del Rione Regola, sul proseguimento della via dei Pettinari che da Ponte Sisto porta alla Via dei Giubbonari e a Campo de' Fiori, affacciato sulla Piazza della Trinità dei Pellegrini, proponiamo un pittoresco locale commerciale con canna fumaria, ristrutturato, che si sviluppa su tre livelli per una superficie complessiva di mq 170 ca. così divisa:
AL PIANO TERRA: Open-space di mq 45 con soffitto rinforzato e travi in legno a vista e un retronegozio di mq 17.
AL PRIMO PIANO: Salone di mq 48 con soffitto a volta, due finestre con vista sulla piazza e superficie retrostante di mq 17 dove si trovano tre bagni da rifinire.
AL PIANO INTERRATO: suggestiva cantina di mq 48 ca. divisa in vari ambienti con areazione a bocche di lupo.

LEGGI TUTTO

CONDIVIDI SUI SOCIAL

DATI PRINCIPALI

Riferimento
641843
Contratto
Vendita
Tipologia
Immobile - Negozio
Superficie
174 mq
Locali
Più di 5
Bagni
3
Piano
1 °
Totale piani
5

CARATTERISTICHE

Ascensore

COSTI

Prezzo
€ 710.000,00
Spese condominiali
€ 60,00 / mese

EFFICIENZA ENERGETICA

Stato
Abitabile
Anno costruzione
1600
Classe energetica
G
IPE
351,00 kWh/m²a

A+

A

B

C

D

E

F

351,00 kWh/m²a | Classe energetica G

G

MAPPA

ANNUNCI SIMILI