Locale commerciale in Vendita VENDITA

Via Radicofani - Roma (Roma)
Trattativa Riservata
  • 3 locali
  • 523 mq
  • 3 bagni

Negozio in Vendita a Roma

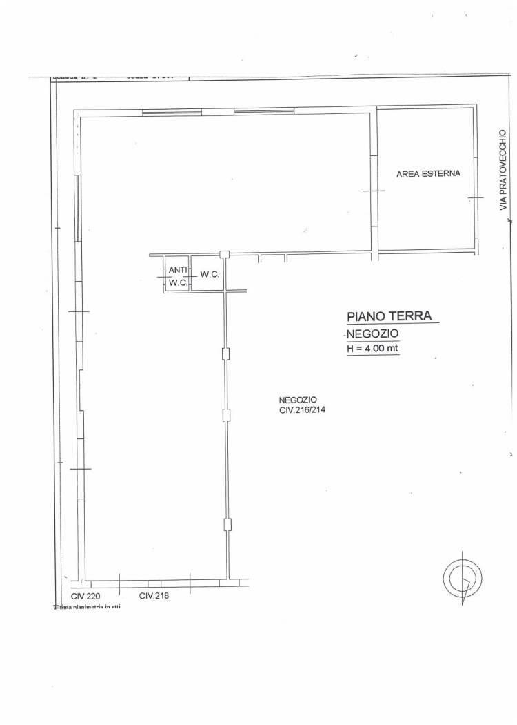
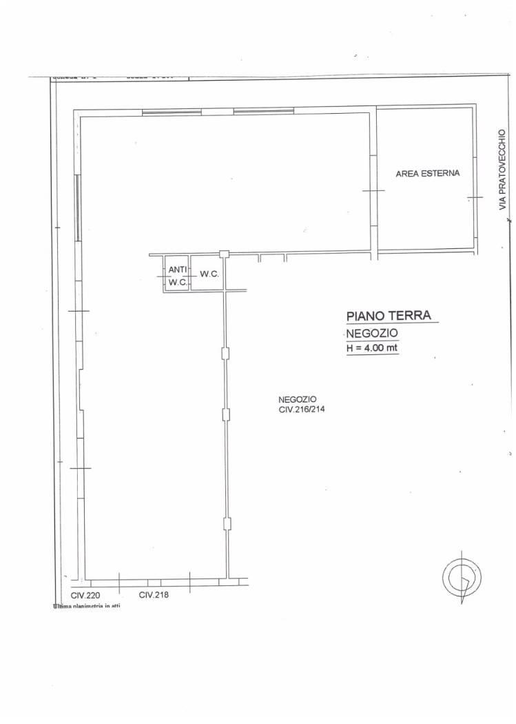
Fidene centralissimo sulla via principale proponiamo in vendita un immobile cielo terra composto attualmente da tre unità immobiliari. L'immobile si sviluppa su due livelli T,S1- il piano terra su strada attualmente diviso in due locali C1 con una attività a reddito ed una libera ha una metratura totale di circa 230 mq, ha una quadrupla esposizione e gode di uno spazio esterno che gira su due lati dell'immobile. Il piano seminterrato, con rampa di accesso, misura circa 290mq con una altezza di 3m, attualmente libero. SI VALUTA LA POSSIBILITA' DI VENDERLI SEPARATI.

CONDIVIDI SUI SOCIAL

DATI PRINCIPALI

Riferimento
635393
Contratto
Vendita
Tipologia
Immobile - Negozio
Superficie
523 mq
Locali
3
Bagni
3
Piano
Piano terra
Totale piani
1

CARATTERISTICHE

Ascensore

COSTI

Prezzo
Trattativa Riservata
Spese condominiali
€ 1,00 / mese

EFFICIENZA ENERGETICA

Stato
Abitabile
Riscaldamento
Autonomo
Climatizzazione
Si
Classe energetica
G
IPE
351,00 kWh/m²a

A+

A

B

C

D

E

F

351,00 kWh/m²a | Classe energetica G

G

MAPPA