Locale Commerciale in vendita a Roma, Labaro VENDITA

Via Magnano In Riviera 32 - Roma, Zona Labaro
€ 170.000
  • 4 locali
  • 88 mq
  • 1 bagno

Negozio in Vendita a Roma

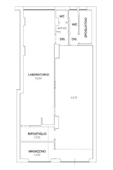
Locale Commerciale con Canna Fumaria e Posto Auto a Labaro In Via Magnano in Riviera, nel cuore del quartiere Labaro, proponiamo un locale commerciale di 80 mq complessivi, precedentemente adibito ad attività di panificazione e caffetteria denominata "Forno con Caffè". L'immobile rappresenta una soluzione ideale per chi opera nel settore gastronomico, grazie alla presenza fondamentale della canna fumaria e di una zona interna già strutturata per ospitare un "FORNO" e un'area laboratorio dedicata. Lo spazio interno è distribuito in modo funzionale e accoglie i clienti in un'area vendita caratterizzata da una pavimentazione geometrica bicolore . Oltre alla zona produzione, la proprietà comprende vani tecnici essenziali quali magazzino, ripostiglio e uno spogliatoio riservato al personale. La comodità operativa è completata dai doppi servizi igienici con relativo anti-WC. Un importante valore aggiunto di questa proposta è la disponibilità di un posto auto di 12 mq, che facilita notevolmente la logistica quotidiana o il parcheggio privato. Esternamente, il locale gode di ottima visibilità e sicurezza grazie alle ampie vetrate protette da serrande e inferriate [DSF5867.jpg, DSF5869.jpg]. Inserito in un contesto residenziale consolidato e densamente abitato, questo immobile è perfetto per chi cerca una sede strategica e già pronta per un'attività di vicinato o un laboratorio artigianale

LEGGI TUTTO

CONDIVIDI SUI SOCIAL

DATI PRINCIPALI

Riferimento
641235
Contratto
Vendita
Tipologia
Immobile - Negozio
Superficie
88 mq
Locali
4
Bagni
1
Piano
Piano terra
Totale piani
5
Box/Posto auto
Singolo

CARATTERISTICHE

Ascensore

COSTI

Prezzo
€ 170.000,00
Spese condominiali
€ 200,00 / mese

EFFICIENZA ENERGETICA

Stato
Abitabile
Anno costruzione
1970
Riscaldamento
Autonomo
Climatizzazione
Si
Classe energetica
G
IPE
175,00 kWh/m²a

A+

A

B

C

D

E

F

175,00 kWh/m²a | Classe energetica G

G

MAPPA

ANNUNCI SIMILI

VENDITA 20
€ 139.000
Negozio in Vendita a Roma (Roma)
  • Più di 5 locali
  • 240 mq
  • 2 bagni
VENDITA 20
€ 80.000
Negozio in Vendita a Roma, Zona Tomba Di Nerone
  • Più di 5 locali
  • 230 mq
  • 3 bagni
VENDITA 20
€ 230.000
Negozio in Vendita a Roma (Roma)
  • Più di 5 locali
  • 152 mq
  • 2 bagni