Locale commerciale in Affitto AFFITTO

Viale Alessandrino - Roma (Roma)
€ 1.200 mensili
  • 1 locale
  • 60 mq
  • 1 bagno

Negozio in Affitto a Roma

LOCALE NEL QUARTIERE ALESSANDRINO
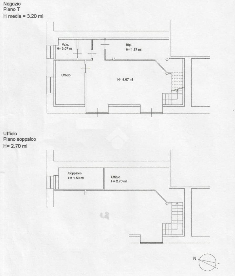
AMPIO LOCALE DI 60 MQ, DUE VETRINE, DISPONE DI ZONA SOPPALCATA E DOTATO DI SERVIZIO IGIENICO.

IL NEGOZIO SI TROVA SU VIALE ALESSANDRINO, STRADA CON DISCRETO FLUSSO VEICOLARE. PRESENZA NELLE IMMEDIATE VICINANZE DI FERMATE DI MEZZI PUBBLICI.
La Società Settore Commerciale Srl si trova sul territorio dal 1994. Abbiamo accompagnato gli acquisti e le locazioni di innumerevoli clienti, alcuni dei quali nel corso degli anni, più volte, ha avuto il piacere di moltiplicare le operazioni immobiliari attraverso la nostra mediazione.
Abbiamo creato una rete di fiducia, attenta e innovativa.
Siamo costantemente aggiornati alle novità richieste dalla pubblica amministrazione per le aperture delle attività, sia comunali che sanitarie.
La nostra zona di competenza è ampia e si estende sino al GRA.
Specializzati in CAPANNONI, NEGOZI, LABORATORI, AUTORIMESSE, MAGAZZINI e UFFICI.
Qualora non riteneste interessante questo immobile, contattando in agenzia potrete rilasciare la vostra richiesta, specificando le caratteristiche dell'immobile che state cercando e, gratuitamente e senza alcun impegno, sarete richiamati per nuove proposte.

LEGGI TUTTO

CONDIVIDI SUI SOCIAL

DATI PRINCIPALI

Riferimento
633823
Contratto
Affitto
Tipologia
Immobile - Negozio
Superficie
60 mq
Locali
1
Bagni
1

CARATTERISTICHE

Ascensore

COSTI

Canone
Affitto € 1.200,00 al mese
Tipo locazione
4+4

EFFICIENZA ENERGETICA

Stato
Abitabile
Anno costruzione
1954
Classe energetica
G
IPE
237,14 kWh/m²a

A+

A

B

C

D

E

F

237,14 kWh/m²a | Classe energetica G

G

MAPPA

ANNUNCI SIMILI