Locale Commerciale di 280 mq in Locazione in Via Venezia 130 AFFITTO

Via Venezia 130 - Ardea, Frazione Nuova Florida
€ 1.800 mensili
  • 1 locale
  • 280 mq
  • 2 bagni

Negozio in Affitto a Ardea

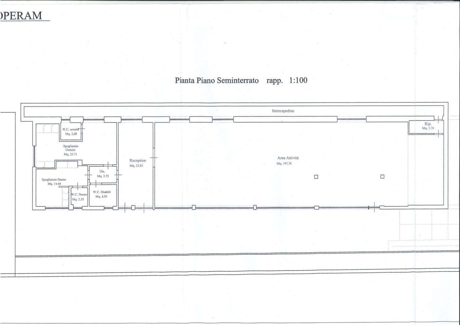
Proponiamo in locazione un locale commerciale situato all’interno del prestigioso centro sportivo di Nuova Florida, ad Ardea (RM). Gli spazi, versatili e di ampia metratura, si prestano a molteplici attività professionali e garantiscono un contesto altamente visibile, frequentato e ben servito.
La posizione centrale, a ridosso di Via Venezia, assicura facilità di accesso e ottima riconoscibilità, grazie anche alla presenza di numerose attività consolidate nelle immediate vicinanze, tra cui ristoranti, palestre e supermercati.

Caratteristiche principali

Locale commerciale di ampia metratura
Ingresso indipendente
Reception dedicata
Servizi igienici con docce
Giardino esclusivo
Riscaldamento radiante a pavimento
Parcheggi interni
Locali parzialmente arredati
Inseriti in un contesto commerciale attivo e consolidato

Punti di forza
Posizione strategica nel cuore di Nuova Florida, facilmente raggiungibile e ben visibile
Contesto ad alto passaggio grazie alla presenza del centro sportivo e delle attività limitrofe
Versatilità degli spazi, ideali per studi professionali, attività sportive, servizi alla persona, centri medici, showroom e molto altro
Parcheggi interni, un plus fondamentale per clienti e collaboratori

TECNOCASA IMPRESA POMEZIA

Ci occupiamo di: IMMOBILI INDUSTRIALI, COMMERCIALI e ARTIGIANALI.

C'è chi si occupa di tutto.
E poi c'è, chi, da oltre 30 anni si occupa solo d'impresa.

Non affidarti al caso, AFFIDATI AI NOSTRI PROFESSIONISTI.

Affiliato: SERVIZI DI IMPRESA SRL
Via del Mare, 33 - POMEZIA (RM)

LEGGI TUTTO

CONDIVIDI SUI SOCIAL

DATI PRINCIPALI

Riferimento
642964
Contratto
Affitto
Tipologia
Immobile - Negozio
Superficie
280 mq
Locali
1
Bagni
2
Piano
Piano terra
Totale piani
2
Box/Posto auto
Doppio

CARATTERISTICHE

Ascensore Arredato

COSTI

Canone
Affitto € 1.800,00 al mese
Tipo locazione
4+4

EFFICIENZA ENERGETICA

Stato
Abitabile
Anno costruzione
2000
Riscaldamento
Autonomo
Climatizzazione
Si
Classe energetica
F
IPE
220,00 kWh/m²a

A+

A

B

C

D

E

220,00 kWh/m²a | Classe energetica F

F

G

MAPPA

ANNUNCI SIMILI