Locale C/1 in affitto circa 150 mq interni e 475 mq esterni AFFITTO

Via del Casale Agostinelli - Roma, Frazione Morena
€ 2.500 mensili
  • 4 locali
  • 294 mq
  • 3 bagni

Negozio in Affitto a Roma

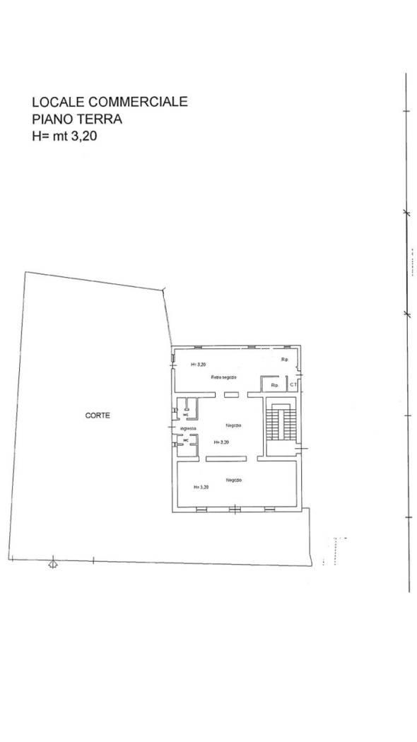
In Via del Casale Agostinelli, nel cuore della zona Morena, proponiamo in affitto un locale commerciale categoria C/1, situato in un contesto ben servito da negozi, attività commerciali, scuole e uffici, con comodi collegamenti ai mezzi pubblici. La posizione strategica e la totale autonomia, garantita dall’assenza di spese condominiali, rendono questa soluzione particolarmente interessante per attività che necessitano di spazi ampi e funzionali.
Il locale si sviluppa su una superficie interna di circa 150 mq ed è attualmente suddiviso in tre ampie aree, tutte con accesso diretto all’esterno. In una di queste zone, precedentemente adibita a cucina, vi sono due accessi uno anteriore e posteriore all’immobile, che migliora ulteriormente la funzionalità degli spazi. La distribuzione interna consente un’elevata possibilità di personalizzazione in base alle esigenze operative.
L’altezza interna è di circa 3,20 metri.
L’immobile è dotato di tre bagni e di canna fumaria in acciaio con motore, caratteristica che lo rende ideale per laboratori gastronomici, pasticcerie, forni, panetterie e attività affini.
Si precisa che gli impianti tecnologici attualmente presenti non sono dotati di certificazioni di conformità.
Completano la proprietà gli ampi spazi esterni: una veranda di circa 65 mq, con accesso sia interno che esterno, e una corte esterna di circa 415 mq, per un totale esterno di circa 475 mq, con possibilità di parcheggio per 18–20 autovetture. L’accesso avviene comodamente tramite cancello scorrevole automatico, sia carrabile che pedonale.
Una soluzione versatile e completa, adatta a uffici, scuole, palestre, studi professionali o altre attività commerciali che richiedano spazi generosi e facilità di accesso.
E-mail: mediateam.seg@gmail.com
mob. 393 9429748.
“noi ci occupiamo di Voi.”
CORDIALI SALUTI.

LEGGI TUTTO

CONDIVIDI SUI SOCIAL

DATI PRINCIPALI

Riferimento
639593
Contratto
Affitto
Tipologia
Immobile - Negozio
Superficie
294 mq
Locali
4
Bagni
3
Piano
Piano terra
Totale piani
3
Box/Posto auto
Doppio

CARATTERISTICHE

Ascensore

COSTI

Canone
Affitto € 2.500,00 al mese
Tipo locazione
4+4

EFFICIENZA ENERGETICA

Stato
Abitabile
Climatizzazione
Predisposizione
Classe energetica
E
IPE
351,00 kWh/m²a

A+

A

B

C

D

351,00 kWh/m²a | Classe energetica E

E

F

G

MAPPA

ANNUNCI SIMILI

AFFITTO 11
€ 1.800 mensili
Negozio in Affitto a Roma (Roma)
  • Più di 5 locali
  • 235 mq
  • 2 bagni
AFFITTO 8
€ 4.400 mensili
Negozio in Affitto a Roma (Roma)
  • Più di 5 locali
  • 180 mq
  • 2 bagni