CASAL DE' PAZZI - LOCALE COMMERCIALE AFFITTO

Via Adriano Fiori - Roma (Roma)
€ 1.200 mensili
  • 1 locale
  • 110 mq
  • 3 bagni

Negozio in Affitto a Roma

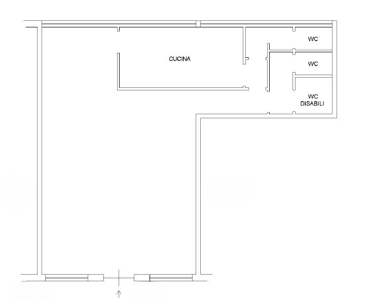
Casal De' Pazzi, più precisamente in via Adriano Fiori, proponiamo in affitto un ampio locale commerciale di 110 mq.
L'immobile è così composto: un grande open space, cucina fornita di canna fumaria e servizi.
Grazie all’ampia metratura e alla distribuzione degli spazi, il locale si presta particolarmente ad essere adibito a studi medici, tra cui studi dentistici e di fisioterapia, oltre ad altre attività professionali.

Prezzo affitto € 1.200,00 + IVA.

Le presenti informazioni e planimetrie sono meramente indicative e non costituiscono elementi contrattuali. Per prenotare una visita all'immobile o per richiedere maggiori informazioni potete contattare la nostra sede in via Nomentana 861 I-O ai seguenti recapiti telefonici: 06/86558617 - 3519485469, oppure scrivere al nostro indirizzo mail: segreteria@volpescase-re.com Mettete mi piace alle nostre pagine Facebook & Instagram Volpes Case M&N Real Estate per rimanere sempre aggiornati sulle proposte immobiliari.

LEGGI TUTTO

CONDIVIDI SUI SOCIAL

DATI PRINCIPALI

Riferimento
637628
Contratto
Affitto
Tipologia
Immobile - Negozio
Superficie
110 mq
Locali
1
Bagni
3
Piano
Piano terra
Totale piani
1

CARATTERISTICHE

Ascensore

COSTI

Canone
Affitto € 1.200,00 al mese
Tipo locazione
4+4

EFFICIENZA ENERGETICA

Stato
Ristrutturato
Riscaldamento
Autonomo
Classe energetica
G
IPE
175,00 kWh/m²a

A+

A

B

C

D

E

F

175,00 kWh/m²a | Classe energetica G

G

MAPPA

ANNUNCI SIMILI