BRAVETTA V. SOGLIANO GRANDE LOCALE NEGOZIO CON CANNA FUMARIA AFFITTO

Via Antonio Sogliano - Roma (Roma)
€ 3.900 mensili
  • 3 locali
  • 663 mq
  • 1 bagno

Negozio in Affitto a Roma

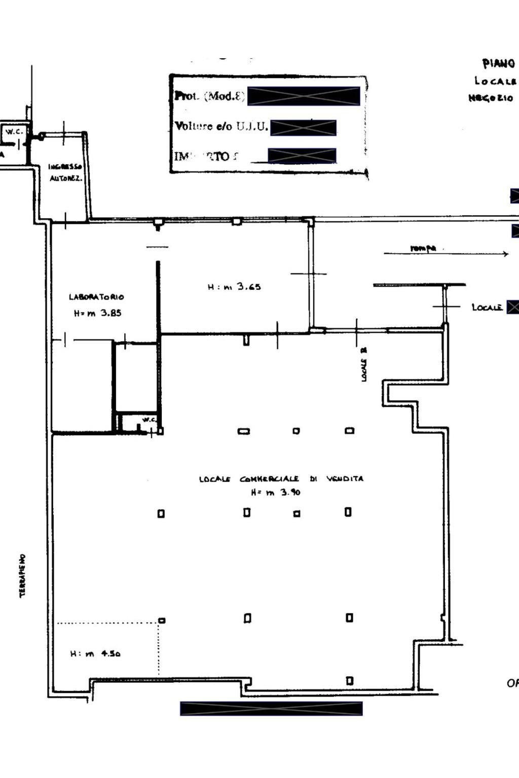
Bravetta, Via Antonio Sogliano, adiacente Via di Vigna Rigacci.
Negozio e laboratorio di ampia metratura con canna fumaria.
Ingresso da rampa carrabile, idoneo per diverse attività

La nostra Agenzia può regolarmente vantare la conclusione di compravendite e locazioni immobiliari, definite sempre con il compiacimento e l’apprezzamento da parte dei proprietari, quanto degli acquirenti o conduttori.
La nostra banca dati, ci pone in evidenza moltissime richieste di acquisto e di locazione, ed abbiamo la certezza di poter soddisfare le necessità e le aspettative di quanti debbano acquistare o locare e di coloro che abbiano esigenza o volontà di vendere immobili.
Pertanto, qualora fosse nelle vostre intenzioni vendere o locare qualsiasi unità immobiliare, desideriamo informarvi che la nostra Agenzia effettua VALUTAZIONI VERBALI GRATUITE, che in nessun modo sono vincolanti da parte vostra.Non c’è dubbio che metteremo a vostra completa disposizione tutto il nostro impegno, la nostra professionalità e la nostra competenza per accompagnarvi nel “non” sempre facile percorso di una vendita o locazione sicura ed in coerenza con le vostre aspettative.

LEGGI TUTTO

CONDIVIDI SUI SOCIAL

DATI PRINCIPALI

Riferimento
628676
Contratto
Affitto
Tipologia
Immobile - Negozio
Superficie
663 mq
Locali
3
Bagni
1
Piano
Seminterrato
Totale piani
5

CARATTERISTICHE

Ascensore

COSTI

Canone
Affitto € 3.900,00 al mese
Tipo locazione
4+4

EFFICIENZA ENERGETICA

Stato
Abitabile
Anno costruzione
1965
Classe energetica
G
IPE
100,00 kWh/m²a

A+

A

B

C

D

E

F

100,00 kWh/m²a | Classe energetica G

G

MAPPA

ANNUNCI SIMILI

AFFITTO 14
€ 1.700 mensili
Negozio in Affitto a Roma, Zona Marconi
  • Più di 5 locali
  • 115 mq
  • 1 bagno