• Più di 5 locali
  • 154 mq
  • 3 bagni

Casa indipendente in Vendita a Palombara Sabina

La tua oasi di tranquillità a due passi dalla città!
A Palombara Sabina, in posizione comoda e ben collegata, proponiamo in vendita Casa Indipendente con ampio terreno pianeggiante, situata sulla Strada Provinciale Palombarese e suddivisa in due appartamenti indipendenti.
La proprietà si trova nella prima campagna palombarese, facilmente accessibile grazie a un ingresso carrabile automatizzato che conduce lungo il viale privato fino al cuore dell’abitazione.
All’esterno si estende un giardino pianeggiante di circa 2.000 mq, completamente recintato, impreziosito dalla presenza di 28 alberi di ulivo e altri da frutto, ideale per chi cerca tranquillità, ama il verde o desidera coltivare uno spazio agricolo personale.
La superficie complessiva dell’immobile è di circa 154mq, distribuiti su tre livelli e suddivisa catastalmente in due appartamenti indipendenti con una cantina al piano seminterrato di 62 mq.
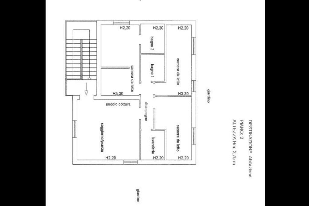
Piano Rialzato: si raggiunge con una rampa laterale esterna, composto da ingresso, cucina abitabile con accesso sul balcone, 3 camere da letto, una delle quali può essere facilmente trasformata in sala da pranzo e bagno con box doccia. L’intero livello necessita di una ristrutturazione completa, in quanto le rifiniture risalgono agli anni ’80: sono da rivedere infissi, pavimentazioni e finiture interne.
Primo Piano: mansardato comodamente vivibile con altezza dei soffitti alla giusta sommità, in cui il punto più alto è di 3,00 m, mentre la parte più bassa ha l’altezza di 2.00 metri. Suddiviso in cucina abitabile, corridoio. Lavanderia, 2 camere da legno, bagno cieco con doccia e camera matrimoniale con cabina armadio e bagno privato. Il piano è stato ristrutturato completamente nel 2015 e presenta finiture moderne:,pavimenti in grés porcellanato, infissi in pvc doppio vetro vasistas.
DATI TECNICI:
L’impianto elettrico e il riscaldamento sono autonomi per ogni appartamento. Quest’ultimo è alimentato da Bombolone GPL e impianto climatizzatore su ogni piano. L’acqua è fornita da pozzo. Fossa Biologica.
Il valore aggiunto della proprietà sono gli spazi ampi, vivibili e ben distribuiti, le quali funzionalità possono variare a seconda delle proprie esigenze. La posizione dominante rende la casa molto luminosa ed offre un panorama sulla campagna circostante.
La proprietà si trova in un contesto non isolato essendo una zona caratterizzata dalla presenza di diverse case e ville indipendenti. La capitale è raggiungibile in 40 m, ben collegata con la stazione ferroviaria del treno di Pianabella di Montelibretti e la Via Salaria.
Sita a 10 minuti dal centro del paese e a pochi km si trovano le Terme di Cretone per la cura delle acque albule molto bene attrezzate. La casa è in posizione tranquilla, ma non riservata. I maggiori punti di forza sono la comodità, il comfort e la strategica location, i quali rendono questa proprietà unica. Gode di un ottimo grado d'indipendenza e privacy, ma allo stesso tempo è alle porte del paese.

LEGGI TUTTO

CONDIVIDI SUI SOCIAL

DATI PRINCIPALI

Riferimento
640424
Contratto
Vendita
Tipologia
Casa indipendente
Superficie
154 mq
Locali
Più di 5
Camere da letto
5
Cucina
Cucinotto
Bagni
3
Piano
Piano terra
Totale piani
3
Box/Posto auto
Singolo

CARATTERISTICHE

Ascensore

COSTI

Prezzo
€ 210.000,00

EFFICIENZA ENERGETICA

Stato
Abitabile
Anno costruzione
1970
Riscaldamento
Autonomo
Climatizzazione
Si
Classe energetica
G
IPE
356,41 kWh/m²a

A+

A

B

C

D

E

F

356,41 kWh/m²a | Classe energetica G

G

MAPPA

ANNUNCI SIMILI

VENDITA 20
€ 395.000
Casa indipendente in Vendita a Palombara Sabina (Roma)
  • Più di 5 locali
  • 215 mq
  • 4 bagni
VENDITA 20
€ 169.000
Casa indipendente in Vendita a Palombara Sabina (Roma)
  • Più di 5 locali
  • 170 mq
  • 2 bagni
VENDITA 20
€ 210.000
Casa indipendente in Vendita a Montelibretti (Roma)
  • Più di 5 locali
  • 410 mq
  • 2 bagni
VENDITA 11
€ 266.906
Casa indipendente in Vendita a Tivoli (Roma)
  • Più di 5 locali
  • 272 mq
  • 4 bagni
VENDITA 20
€ 209.000
Casa indipendente in Vendita a Fonte Nuova (Roma)
  • Più di 5 locali
  • 158 mq
  • 2 bagni
VENDITA 20
€ 599.000
Casa indipendente in Vendita a Roma, Zona Settecamini
  • Più di 5 locali
  • 300 mq
  • 4 bagni
VENDITA 20
€ 110.000
Casa indipendente in Vendita a Torrita Tiberina (Roma)
  • Più di 5 locali
  • 185 mq
  • 3 bagni