Capannone / Stabilimento industriale VENDITA

Roma, Zona Settebagni
Trattativa Riservata
  • 1 locale
  • 900 mq

Capannone in Vendita a Roma

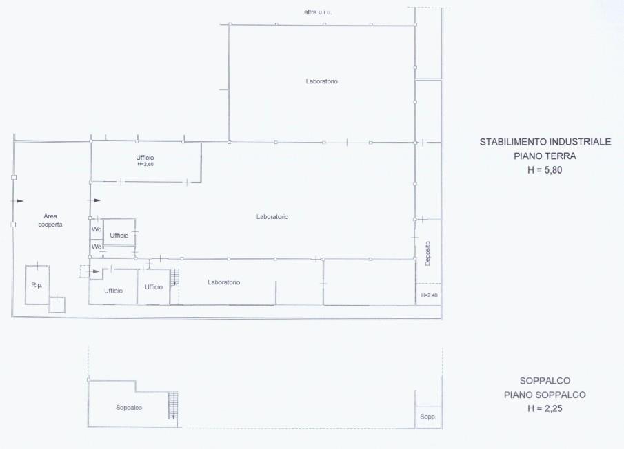
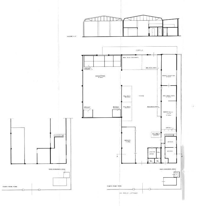
In posizione strategica, ben collegata e facilmente accessibile, MDM Immobiliare propone in vendita un capannone o stabilimento industriale di circa 900 mq, situato al piano strada e dotato di accesso carrabile idoneo anche a mezzi pesanti.

L’immobile, grazie alla sua configurazione funzionale e alla distribuzione degli spazi su un unico livello, si presta perfettamente ad attività logistiche, industriali, artigianali o di deposito.

Caratteristiche principali:
Superficie coperta: 900 mq su unico livello
Altezza interna utile: (inserire altezza, ad esempio 6,5 m)
Accesso carrabile con ampio spazio di manovra per bilici e furgoni
Area dedicata al carico e scarico merci, comoda e facilmente fruibile

L’immobile è ubicato in Via Paolo Lattanzi, in un contesto a forte vocazione industriale e logistica, con ottimi collegamenti alle principali arterie stradali e autostradali. La posizione strategica lo rende particolarmente adatto ad aziende che necessitano di un hub logistico efficiente o di uno spazio produttivo ben organizzato.

Punti di forza:
Ampia metratura su un unico livello
Posizione strategica e ottimamente collegata
Comodo spazio di manovra esterno
Ideale per logistica, produzione o stoccaggio
Ottimo rapporto qualità prezzo

Documentazione urbanistica e catastale conforme.
Disponibilità immediata.

LEGGI TUTTO

CONDIVIDI SUI SOCIAL

DATI PRINCIPALI

Riferimento
629431
Contratto
Vendita
Tipologia
Immobile - Capannone
Superficie
900 mq
Locali
1
Piano
Piano terra
Totale piani
1

CARATTERISTICHE

Ascensore

COSTI

Prezzo
Trattativa Riservata

EFFICIENZA ENERGETICA

Classe energetica
G
IPE
175,00 kWh/m²a

A+

A

B

C

D

E

F

175,00 kWh/m²a | Classe energetica G

G

MAPPA

ANNUNCI SIMILI

VENDITA 4
Trattativa Riservata
Capannone in Vendita a Roma (Roma)
  • Più di 5 locali
  • 4000 mq
  • 4 bagni
VENDITA 10
€ 900.000
Capannone in Vendita a Roma (Roma)
  • 1 locale
  • 903 mq