Salaria vicinanze GRA capannone indipendente VENDITA

Via Montelupone 21 - Roma (Roma)
€ 620.000
  • Più di 5 locali
  • 906 mq
  • 3 bagni

Capannone in Vendita a Roma

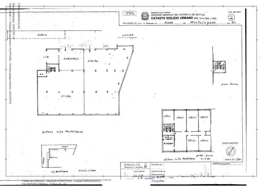
Roma zona Salaria nelle immediate vicinanze dell'uscita del Grande Raccordo Anulare in Via Montelupone proponiamo in vendita un immobile con accesso indipendente di Mq 900 c.a. composto da locale laboratorio/magazzino/deposito al piano terra di Mq 670 circa più uffici al piano primo di Mq 230. Classe Energetica G. Il prezzo di vendita richiesto è di Euro 620.000,00 Per informazioni e sopralluoghi contattateci al numero 334 131 77 00 AFFITTARE o VENDERE un immobile e facile se ti affidi ai professionisti del settore! CHIAMACI!!! SIAMO A TUA DISPOSIZIONE AI NUMERI 334 131 77 00 - 0774 37 70 19. La nostra società opera da anni nel settore immobiliare rivolgendosi al mondo dell'imprenditoria e degli operatori specialistici del real estate. La nostra divisione intermediazione immobiliare offre tutti i servizi necessari al proprietario, per la commercializzazione del proprio immobile, ed all'utilizzatore, per la ricerca dell'immobile adatto alle sue esigenze. Svolgiamo attività di consulenza rivolta alla compravendita, locazione e valutazione di immobili industriali, commerciali, uffici e residenziali. In particolare: Uffici: attività rivolte a imprese del settore terziario per la ricerca, l'acquisto, la vendita e la locazione di immobili ad uso ufficio. Industria: attività rivolte a imprese del settore industriale, logistico e produttivo per la ricerca, l'acquisto, la vendita e la locazione di aree e immobili strumentali. Retail: servizi e attività a imprese del settore commerciale per la ricerca, l'acquisto, la vendita e la locazione di immobili destinati ad attività commerciali quali negozi, catene di punti vendita, centri commerciali, che implicano un contatto diretto con il pubblico. I nostri principali servizi: Servizi dedicati al proprietario valutazione dell'immobile reperimento documentazione presso gli Enti preposti ricerca di acquirenti e/o conduttori sviluppo dei contatti conduzione delle trattative e assistenza fino alla sottoscrizione dei contratti Servizi dedicati all'utilizzatore analisi delle esigenze e di mercato individuazione dell'immobile conduzione delle trattative e assistenza fino alla sottoscrizione dei contratti.

LEGGI TUTTO

CONDIVIDI SUI SOCIAL

DATI PRINCIPALI

Riferimento
643029
Contratto
Vendita
Tipologia
Immobile - Capannone
Superficie
906 mq
Locali
Più di 5
Bagni
3
Piano
1 °
Totale piani
2
Box/Posto auto
Doppio

CARATTERISTICHE

Ascensore

COSTI

Prezzo
€ 620.000,00

EFFICIENZA ENERGETICA

Stato
Abitabile
Anno costruzione
1980
Classe energetica
G
IPE
175,00 kWh/m²a

A+

A

B

C

D

E

F

175,00 kWh/m²a | Classe energetica G

G

MAPPA

ANNUNCI SIMILI

VENDITA 4
Trattativa Riservata
Capannone in Vendita a Roma (Roma)
  • Più di 5 locali
  • 4000 mq
  • 4 bagni
VENDITA 6
€ 629.000
Capannone in Vendita a Roma (Roma)
  • Più di 5 locali
  • 644 mq
  • 4 bagni
VENDITA 8
Trattativa Riservata
Capannone in Vendita a Roma (Roma)
  • Più di 5 locali
  • 1700 mq
  • 4 bagni
VENDITA 4
€ 490.000
Capannone in Vendita a Roma, Zona Romanina
  • Più di 5 locali
  • 811 mq
  • 4 bagni
VENDITA 5
€ 650.000
Capannone in Vendita a Roma, Zona Casal Lumbroso
  • Più di 5 locali
  • 1000 mq
  • 2 bagni
VENDITA 16
€ 450.000
Capannone in Vendita a Tivoli (Roma)
  • Più di 5 locali
  • 870 mq
  • 4 bagni