TALENTI Via De Marchi, luminoso attico AFFITTO

Via Emilio De Marchi - Roma (Roma)
€ 1.500 mensili
  • Trilocale
  • 110 mq
  • 1 bagno

Attico in Affitto a Roma

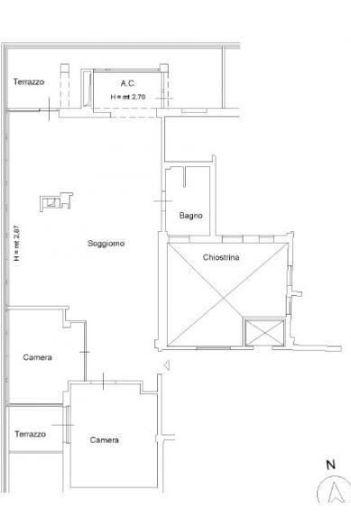
Talenti, ad.ze DEAR, in zona ottimamente collegata, adiacente alla Nomentana e tra i parchi dell'Aniene e Sannazzaro, proponiamo luminosissimo attico, affaccio panoramico, finemente ristrutturato. L'immobile è composto da un ampio salone con camino, cucina a vista, due camere, bagno e due terrazzi abitabili. L'appartamento è dotato di ampie finestre con infissi in pvc e doppi vetri, controsoffitti con faretti, condizionatori e pavimenti in parquet. Contratto breve - transitorio.
Cef IPE 195,90 kWh/m²a

MERCATO IMMOBILIARE, via Chiana n° 111, proponiamo valutazioni gratuite e senza impegno, appartamenti, locali commerciali, box, uffici ecc. , in vendita e locazione, chiamateci per un appuntamento – WhatsApp (lunedì – venerdì 9:00 – 13:00 / 14:00 – 18:00, sabato 9:00 – 13:00), e seguiteci sulla pagina Facebook Mercato Immobiliare Chiana e su Instagram @mercatoimmobiliarechiana. I dati si intendono corretti ma non garantiti. La presente non costituisce, in nessun caso, documento contrattuale

LEGGI TUTTO

CONDIVIDI SUI SOCIAL

DATI PRINCIPALI

Riferimento
628130
Contratto
Affitto
Tipologia
Attico
Superficie
110 mq
Locali
3
Camere da letto
2
Cucina
A vista
Bagni
1
Piano
6 °
Totale piani
6

CARATTERISTICHE

Ascensore

COSTI

Canone
Affitto € 1.500,00 al mese
Tipo locazione
Transitorio
Spese condominiali
€ 110,00 / mese, non incluse nel canone

EFFICIENZA ENERGETICA

Stato
Ristrutturato
Riscaldamento
Centralizzato
Climatizzazione
Si
Classe energetica
F
IPE
195,90 kWh/m²a

A+

A

B

C

D

E

195,90 kWh/m²a | Classe energetica F

F

G

MAPPA

ANNUNCI SIMILI

AFFITTO 20
€ 12.000 mensili
Attico in Affitto a Roma (Roma)
  • Più di 5 locali
  • 255 mq
  • 4 bagni
AFFITTO 20
€ 2.600 mensili
Attico in Affitto a Roma, Zona Fleming
  • Quadrilocale
  • 105 mq
  • 2 bagni