Attico di prestigio, nel quartiere Nomentano AFFITTO

Via Nomentana - Roma, Zona Bologna
€ 5.800 mensili
  • Quadrilocale
  • 216 mq
  • 3 bagni

Attico in Affitto a Roma

Questo raffinato attico con terrazzo in locazione, inserito all’interno di uno stabile signorile con ascensore e servizio di portineria, si trova in una dei quartieri più eleganti e rappresentativi di Roma.

La proprietà è attualmente oggetto di un’accurata ristrutturazione integrale, con consegna prevista per la fine di maggio. L’intervento è stato concepito per valorizzare la luminosità e l’ampiezza degli ambienti, creando spazi contemporanei, funzionali e di grande eleganza.

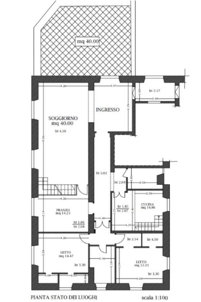
Elemento di particolare pregio è il terrazzo privato, un piacevole spazio esterno ideale per momenti di relax all’aria aperta.

Grazie alla favorevole esposizione a sud, l’attico gode di una luminosità straordinaria durante l’intero arco della giornata. Gli spazi interni, ampi e armoniosamente distribuiti, si sviluppano attorno a un elegante salone doppio di rappresentanza, affiancato da una cucina abitabile separata e da una pratica zona lavanderia. La zona notte, ben distinta e riservata, comprende tre spaziose camere da letto e tre bagni, progettati per garantire comfort e privacy.

Completano la proprietà una cantina e l’accesso alla terrazza condominiale.

Per la generosità degli spazi e la qualità della ristrutturazione, l’immobile si presta perfettamente come residenza di rappresentanza o come abitazione ideale per famiglie e professionisti, anche di respiro internazionale, che desiderano vivere in un contesto raffinato, ben servito e ottimamente collegato.

La proprietà si inserisce nel contesto di Via Nomentana, uno dei viali storici e più eleganti della Capitale, caratterizzato da raffinati palazzi d’epoca, dalla vicinanza a Villa Torlonia e da una ricca presenza di servizi, scuole internazionali e collegamenti agevoli con il centro storico.

LEGGI TUTTO

CONDIVIDI SUI SOCIAL

DATI PRINCIPALI

Riferimento
641873
Contratto
Affitto
Tipologia
Attico
Superficie
216 mq
Locali
4
Camere da letto
3
Cucina
Abitabile
Bagni
3
Piano
4 °
Totale piani
4

CARATTERISTICHE

Ascensore

COSTI

Canone
Affitto € 5.800,00 al mese
Tipo locazione
4+4
Spese condominiali
€ 170,00 / mese, non incluse nel canone

EFFICIENZA ENERGETICA

Stato
Ristrutturato
Anno costruzione
1930
Riscaldamento
Autonomo
Climatizzazione
Si
Classe energetica
G
IPE
175,00 kWh/m²a

A+

A

B

C

D

E

F

175,00 kWh/m²a | Classe energetica G

G

MAPPA

ANNUNCI SIMILI

AFFITTO 20
€ 12.000 mensili
Attico in Affitto a Roma (Roma)
  • Più di 5 locali
  • 255 mq
  • 4 bagni
AFFITTO 6
Trattativa Riservata
Attico in Affitto a Roma (Roma)
  • Più di 5 locali
  • 380 mq
  • 3 bagni