Talenti attico ristrutturato con posto auto e cantina VENDITA

Via Ettore Romagnoli 9 - Roma (Roma)
€ 935.000
  • Più di 5 locali
  • 154 mq
  • 2 bagni

Attico in Vendita a Roma

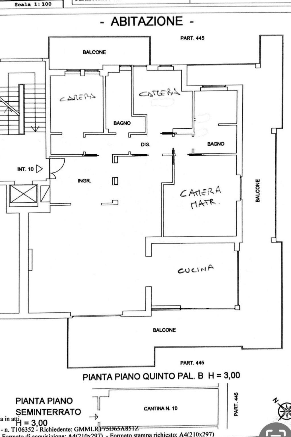
ATTICO -TALENTI – VIA ETTORE ROMAGNOLI – All’interno di un complesso edilizio con servizio di portineria realizzato negli anni 60, costituito da due villini in cortina dotati di ascensore, proponiamo la vendita di un esclusivo attico di circa 155 mq commerciali dotato di doppio ingresso, terrazzo di circa 58 mq, cantina di 14 mq e posto auto nella autorimessa condominiale. L’immobile è stato recentemente ristrutturato con materiali di elevato pregio e sono stati realizzati nei vari ambienti diversi mobili su misura di notevole fattura. L’ATTICO in oggetto si compone di un ampio ingresso, soggiorno dotato di luminose vetrate e camino funzionante, una area pranzo, una cucina di importante metratura anch’essa dotata di ampie vetrate con accesso diretto al terrazzo. La zona notte, si compone di 3 camere da letto, con accesso diretto all’area esterna e 2 bagni finestrati con doccia. L’immobile è dotato di serrande automatizzate, infissi di ultima generazione con doppio vetro , impianto di allarme e impianto di riscaldamento centralizzato con i contabilizzatori, climatizzatori, pergotenda motorizzata, cassaforte, videocitofono, porta blindata domotica. Negli oneri condominiali mensili sono computate le spese di riscaldamento che vengono spalmate nell’anno e conguagliate a seconda dei consumi di ciascun condomino.

LEGGI TUTTO

CONDIVIDI SUI SOCIAL

DATI PRINCIPALI

Riferimento
630281
Contratto
Vendita
Tipologia
Attico
Superficie
154 mq
Locali
5
Camere da letto
3
Cucina
Abitabile
Bagni
2
Piano
4 °
Totale piani
4
Box/Posto auto
Singolo

CARATTERISTICHE

Ascensore

COSTI

Prezzo
€ 935.000,00

EFFICIENZA ENERGETICA

Stato
Ristrutturato
Anno costruzione
1960
Riscaldamento
Centralizzato
Climatizzazione
Si
Classe energetica
C
IPE
175,00 kWh/m²a

A+

A

B

175,00 kWh/m²a | Classe energetica C

C

D

E

F

G

MAPPA

ANNUNCI SIMILI

VENDITA 20
€ 690.000
Attico in Vendita a Roma (Roma)
  • Più di 5 locali
  • 180 mq
  • 2 bagni
VENDITA 20
€ 780.000
Attico in Vendita a Roma (Roma)
  • Più di 5 locali
  • 237 mq
  • 3 bagni
VENDITA 20
€ 1.100.000
Attico in Vendita a Roma (Roma)
  • Più di 5 locali
  • 250 mq
  • 2 bagni
VENDITA 20
€ 1.200.000
Attico in Vendita a Roma, Zona Ponte Mammolo
  • Più di 5 locali
  • 119 mq
  • 3 bagni
VENDITA 20
€ 1.200.000
Attico in Vendita a Roma, Zona Ponte Mammolo
  • Più di 5 locali
  • 183 mq
  • 2 bagni
VENDITA 20
€ 550.000
Attico in Vendita a Roma (Roma)
  • Più di 5 locali
  • 100 mq
  • 1 bagno
VENDITA 20
€ 690.000
Attico in Vendita a Roma (Roma)
  • Più di 5 locali
  • 137 mq
  • 3 bagni
VENDITA 19
€ 355.000
Attico in Vendita a Roma (Roma)
  • Più di 5 locali
  • 193 mq
  • 2 bagni