€ 305.000
  • Più di 5 locali
  • 153 mq
  • 2 bagni

Attico in Vendita a Roma

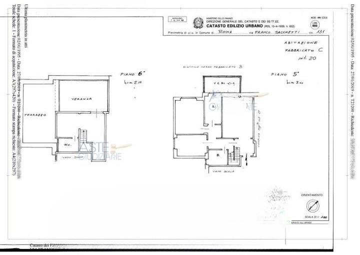
PROVVIGIONE ZERO SE VENDE CON NOI ! CI CHIAMI PER UNA VALUTAZIONE GRATUITA! Talenti Via Franco Sacchetti n. 131, Appartamento piano 4-5, sviluppato su due livelli collegati mediante scala interna, così composto:al IV piano (V catastale) vi è un soggiorno, una cucina, due camere, un servizio igienico, una veranda, ripostiglio e disimpegno; al sovrastante piano quinto (VI catastale), verandato, vi sono due camere, un servizio igienico ed una zona lavanderia con doccia, terrazza scoperta a livello ad uso esclusivo di circa 30 mq. per un totale di circa 153 mq escluse le aree esterne..Lo stabile in cui insiste il bene è parte di un più ampio compendio edilizio con servizio di portierato ed ampie aree interne in parte a verde, con accesso comune dai civici 125- 135 di Via Franco Sacchetti.asta offerta minima € 305.000 FOTO SU RICHIESTA IMMOBILE VISITABILE PER INFO MARCO DICKMANN 06/79786066 339/1980066 392/1626575 CI CHIAMI PER RICHIEDERE UNA VISITA GUARDI TUTTI I NOSTRI ANNNUNCI USANDO QUESTO LINK: https://www.immobiliare.it/agenzie-immobiliari/93358/balduina-immobiliare-roma/?pag=1&sortBy=prezzo&sortDir=desc .

LEGGI TUTTO

CONDIVIDI SUI SOCIAL

DATI PRINCIPALI

Riferimento
641687
Contratto
Vendita
Tipologia
Attico
Superficie
153 mq
Locali
Più di 5
Camere da letto
4
Cucina
Abitabile
Bagni
2
Piano
4 °
Totale piani
5

CARATTERISTICHE

Ascensore

COSTI

Prezzo
€ 305.000,00
Spese condominiali
€ 1,00 / mese

EFFICIENZA ENERGETICA

Stato
Abitabile
Riscaldamento
Autonomo
Climatizzazione
Si
Classe energetica
G
IPE
175,00 kWh/m²a

A+

A

B

C

D

E

F

175,00 kWh/m²a | Classe energetica G

G

MAPPA

ANNUNCI SIMILI

VENDITA 20
€ 780.000
Attico in Vendita a Roma (Roma)
  • Più di 5 locali
  • 237 mq
  • 3 bagni
VENDITA 20
€ 690.000
Attico in Vendita a Roma (Roma)
  • Più di 5 locali
  • 180 mq
  • 2 bagni
VENDITA 20
€ 1.100.000
Attico in Vendita a Roma (Roma)
  • Più di 5 locali
  • 250 mq
  • 2 bagni
VENDITA 20
€ 1.690.000
Attico in Vendita a Roma, Zona Bologna
  • Più di 5 locali
  • 370 mq
  • 4 bagni