Cerveteri Luminoso attico bilocale con ampio terrazzo VENDITA

Via Dante Travagliati 13 - Cerveteri (Roma)
€ 90.000
  • Bilocale
  • 54 mq
  • 1 bagno

Attico in Vendita a Cerveteri

Cerveteri
A poca distanza dall'autostrada A12 Roma Civitavecchia e in zona molto tranquilla abbiamo il piacere di presentare la vendita di un luminosissimo appartamento al primo ed ultimo piano.
E' in posizione strategica, nelle vicinanze c'è una scuola, negozi di prima necessità, fermate autobus Cotral e servizio interno per il mare ed il centro di Cerveteri. Si trova a poca distanza dalla famosa Necropoli Etrusca, una delle più grandi necropoli del mondo antico , che si estende su una superficie di circa 20 ettari e comprende centinaia di tumuli circolari sotto i quali vi sono tombe etrusche che si riferiscono ad un arco temporale molto ampio, dall’VIII al II sec. a.C.. E' oggi una importante meta turistica nonché culturale.
L'immobile si trova al primo ed ultimo piano ed è libero al rogito, pronto per essere abitato.
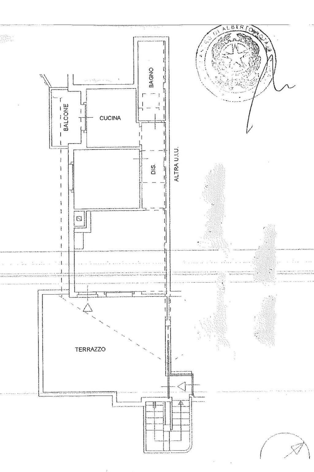
La proprietà vanta un luminoso ampio terrazzo, ideale per godere di momenti di relax all'aperto e per organizzare pranzi e cene con amici e familiari.
Gli spazi interni, di 47 metri quadrati calpestabili, sono ben distribuiti e offrono un'atmosfera accogliente e confortevole.
L'immobile è composto da due locali, tra cui una luminosa camera da letto, un bagno e la cucina, che può essere arredata a seconda delle esigenze del nuovo proprietario o può essere anche lasciata il dotazione.
La proprietà è dotata di tutti i comfort necessari per una vita comoda e rilassante.
Inoltre, le spese condominiali sono contenute, solo 30 euro al mese, il che rende questo immobile ancora più allettante per chi desidera acquistare una casa senza dover sostenere costi eccessivi.
Situato al primo ed ultimo piano, l'attico/mansarda gode di una luminosità naturale e di una vista aperta.
Non perdere l'opportunità di vivere in un immobile di prestigio, dotato di un ampio spazio esterno e di tutti i comfort necessari, in una zona tranquilla di Cerveteri.
Contattaci per maggiori informazioni e per prenotare una visita.

*Ricorda: le informazioni contenute nel presente annuncio non costituiscono vincolo contrattuale. Siamo qui per rendere il tuo sogno di casa realtà! *.

LEGGI TUTTO

CONDIVIDI SUI SOCIAL

DATI PRINCIPALI

Riferimento
625893
Contratto
Vendita
Tipologia
Attico
Superficie
54 mq
Locali
2
Camere da letto
1
Cucina
Abitabile
Bagni
1
Piano
1 °
Totale piani
1

CARATTERISTICHE

Ascensore

COSTI

Prezzo
€ 90.000,00
Spese condominiali
€ 30,00 / mese

EFFICIENZA ENERGETICA

Stato
Ristrutturato
Anno costruzione
1975
Riscaldamento
Autonomo
Climatizzazione
Si
Classe energetica
E
IPE
351,00 kWh/m²a

A+

A

B

C

D

351,00 kWh/m²a | Classe energetica E

E

F

G

MAPPA