Attico con terrazzo abitabile VENDITA

Via GIUSEPPE MAZZINI 11/B - Ladispoli (Roma)
€ 149.000
  • Bilocale
  • 80 mq
  • 1 bagno

Attico in Vendita a Ladispoli

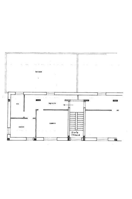
Rif: ES160 - Proponiamo in vendita un accogliente attico posto al terzo piano, ideale per chi è alla ricerca di comfort e spazi esterni vivibili. L’immobile si apre su un luminoso soggiorno, perfetto per momenti di relax, affiancato da una cucina abitabile separata. La zona notte comprende una camera da letto ben proporzionata, mentre il bagno è funzionale e ben distribuito. Completa la proprietà un comodo ripostiglio. Punto di forza dell’appartamento è l’ampio terrazzo abitabile, uno spazio prezioso da vivere in ogni stagione, ideale per pranzi e cene all’aperto. Soluzione adatta sia come prima casa che come investimento. Per fissare un appuntamento di visita o per maggiori informazioni riguardante l'immobile potete contattarci al numero 0699228000 o venire a trovarci presso l'agenzia sita in Via Cagliari,25- Ladispoli 00055.

LEGGI TUTTO

CONDIVIDI SUI SOCIAL

DATI PRINCIPALI

Riferimento
641721
Contratto
Vendita
Tipologia
Attico
Superficie
80 mq
Locali
2
Camere da letto
1
Cucina
Abitabile
Bagni
1
Piano
3 °
Totale piani
3

CARATTERISTICHE

Ascensore

COSTI

Prezzo
€ 149.000,00

EFFICIENZA ENERGETICA

Stato
Abitabile
Anno costruzione
1970
Riscaldamento
Autonomo
Classe energetica
G
IPE
175,00 kWh/m²a

A+

A

B

C

D

E

F

175,00 kWh/m²a | Classe energetica G

G

MAPPA