€ 95.000
  • Trilocale
  • 75 mq
  • 1 bagno

Attico in Vendita a Capena

Nel cuore pulsante di Capena, in una posizione centralissima e comoda a tutti i principali servizi, proponiamo in vendita un appartamento dal fascino autentico, perfetto per chi desidera vivere il paese in tutta la sua comodità.
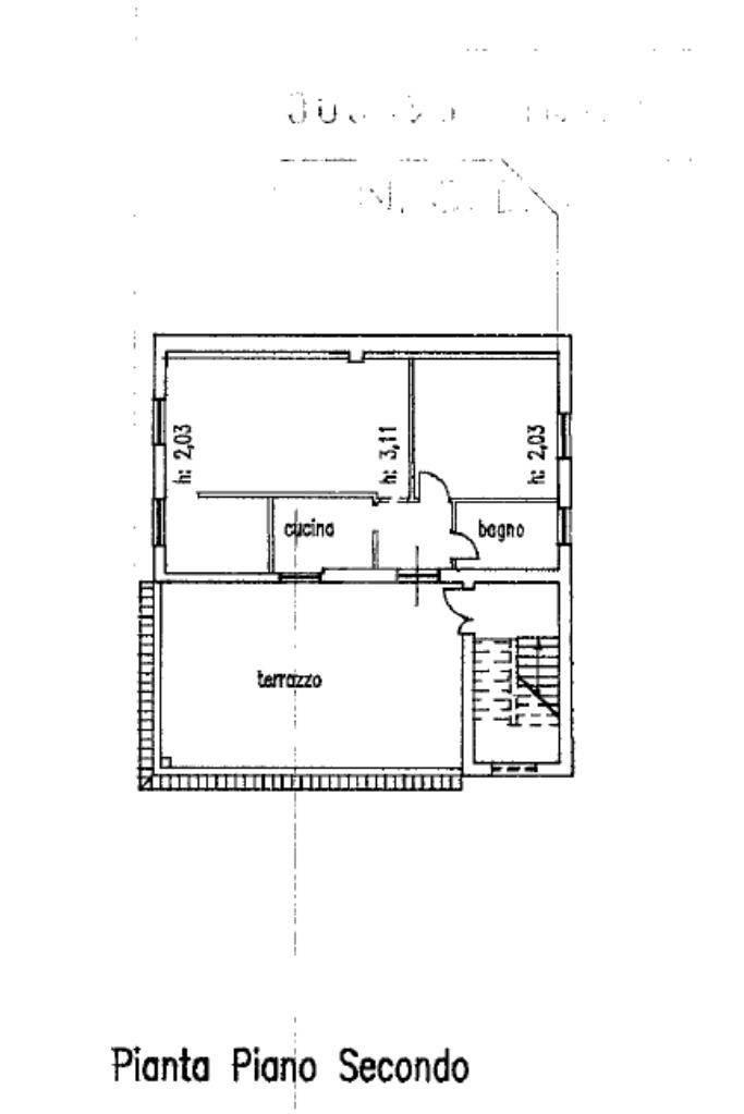
La proprietà, di circa 70 mq, si sviluppa interamente su un unico livello ed è situata al secondo ed ultimo piano di una graziosa palazzina in cortina composta da soli due appartamenti, contesto riservato e tranquillo.
Varcando la soglia si viene accolti da un comodo ingresso che accompagna agli ambienti della casa: una cucina semi abitabile, un ampio e luminoso salone, una camera matrimoniale, uno studio ideale come seconda cameretta o ambiente smart working, e un bagno finestrato.
Il vero valore aggiunto di questa soluzione è lo splendido terrazzo vivibile di circa 70 mq, uno spazio raro e prezioso dove trascorrere piacevoli momenti all’aperto, organizzare cene con amici, rilassarsi al sole o creare una suggestiva zona verde privata.
Completa la proposta la possibilità di acquistare separatamente un box/deposito di 45 mq commerciali, situato al piano terra della stessa palazzina, perfetto come autorimessa, spazio hobby o deposito.
Prezzo box: € 29.000,00.
Una soluzione ideale per chi cerca privacy, centralità e un grande sfogo esterno, in uno dei punti più caratteristici del paese.

LEGGI TUTTO

CONDIVIDI SUI SOCIAL

DATI PRINCIPALI

Riferimento
639772
Contratto
Vendita
Tipologia
Attico
Superficie
75 mq
Locali
3
Camere da letto
2
Cucina
Abitabile
Bagni
1
Piano
2 °
Totale piani
2

CARATTERISTICHE

Ascensore

COSTI

Prezzo
€ 95.000,00

EFFICIENZA ENERGETICA

Stato
Da ristrutturare
Anno costruzione
1980
Riscaldamento
Autonomo
Climatizzazione
Si
Classe energetica
G
IPE
1,00 kWh/m²a

A+

A

B

C

D

E

F

1,00 kWh/m²a | Classe energetica G

G

MAPPA

ANNUNCI SIMILI

VENDITA 20
€ 169.000
Attico in Vendita a Castelnuovo di Porto (Roma)
  • Trilocale
  • 133 mq
  • 2 bagni
VENDITA 20
€ 95.000
Attico in Vendita a Civitella San Paolo (Roma)
  • Trilocale
  • 90 mq
  • 1 bagno
VENDITA 20
€ 119.000
Attico in Vendita a Rignano Flaminio (Roma)
  • Trilocale
  • 90 mq
  • 1 bagno