€ 160.000
  • Trilocale
  • 79 mq
  • 2 bagni

Attico in Vendita a Santa Marinella

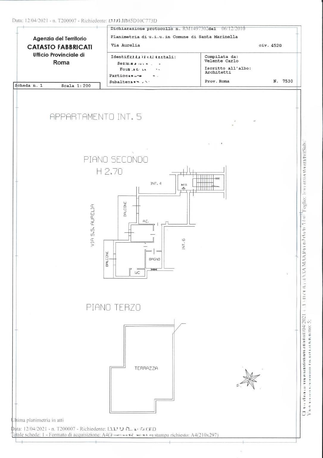
APPARTAMENTO RISTRUTTURATO – ULTIMO PIANO – TERRAZZA 85 MQ – ZONA MAIORCA

In zona Maiorca proponiamo in vendita appartamento completamente ristrutturato, posto al secondo ed ultimo piano senza ascensore di una piccola palazzina.

Composizione interna

Soggiorno con angolo cottura

Camera matrimoniale con armadio a muro e bagno padronale

Cameretta

Secondo bagno

Balcone abitabile a livello

Spazio esterno

Lastrico solare di proprietà esclusiva di circa 85 mq, collegato all’appartamento tramite scala condominiale, ideale come zona relax o area attrezzata.

Caratteristiche e dotazioni

Immobile totalmente ristrutturato

Infissi nuovi

Zanzariere

Riscaldamento termoautonomo

Climatizzazione con condizionatori

Ultimo piano, luminoso e silenzioso

Soluzione pronta da abitare, ideale per chi cerca comfort, modernità e un grande spazio esterno esclusivo.

LEGGI TUTTO

CONDIVIDI SUI SOCIAL

DATI PRINCIPALI

Riferimento
627155
Contratto
Vendita
Tipologia
Attico
Superficie
79 mq
Locali
3
Camere da letto
2
Cucina
Angolo cottura
Bagni
2
Piano
3 °
Totale piani
2

CARATTERISTICHE

Ascensore

COSTI

Prezzo
€ 160.000,00
Spese condominiali
€ 40,00 / mese

EFFICIENZA ENERGETICA

Stato
Ristrutturato
Anno costruzione
1977
Riscaldamento
Autonomo
Climatizzazione
Si
Classe energetica
G
IPE
175,00 kWh/m²a

A+

A

B

C

D

E

F

175,00 kWh/m²a | Classe energetica G

G

MAPPA

ANNUNCI SIMILI

VENDITA 20
€ 319.000
Attico in Vendita a Santa Marinella (Roma)
  • Quadrilocale
  • 110 mq
  • 3 bagni