ATTICO IN VENDITA - PALMAROLA VENDITA

Via Cantello - Roma, Zona Ottavia
€ 199.000
  • Trilocale
  • 80 mq
  • 1 bagno

Attico in Vendita a Roma

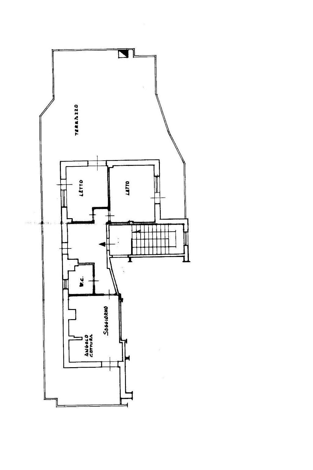
Nelle immediate vicinanze di piazza della Palmarola e più precisamente in via Cantello in strada riservata e tranquilla, proponiamo la vendita di un attico panoramico posto al terzo piano di una palazzina in cortina priva di ascensore.
L'immobile si presenta in buono stato di manutenzione ed è composto da ampio ingresso con finestra, soggiorno con angolo cottura, due camere, bagno e un terrazzo di 110 mq circa.
La presenza di muri tramezzi consente una diversa distribuzione degli spazi interni.
E' dotata di riscaldamento termo autonomo.
Il prezzo richiesto è di € 199.000,00.

*Le presenti informazioni e planimetrie sono meramente indicative e non costituiscono elementi contrattuali.

La nostra agenzia opera da più di trent'anni nel mercato immobiliare e garantisce un ventaglio di servizi a tutto tondo in modo attento e competente. Da sempre curiamo l'immobile a 360°, nello specifico:
- valutiamo gratuitamente l'immobile al reale valore di mercato;
- conduciamo regolarmente analisi e ricerche di mercato per essere sempre aggiornati;
- lavoriamo su incarichi di vendita chiari e trasparenti, con il prezzo di vendita concordato ed ogni
dettaglio ben evidenziato;
- ci occupiamo delle campagne pubblicitarie in modo mirato;
- offriamo assistenza tecnica, fiscale, legale e notarile;
- vendiamo immobili subordinati all'acquisto della nuova casa;
- collaboriamo con i migliori professionisti nel settore di mutui e finanziamenti personalizzati.
E' la passione per il nostro lavoro che ci fa muovere nelle giuste direzioni finalizzate a trovare sempre la migliore soluzione immobiliare per la nostra clientela. E la serietà e la professionalità acquisita nell’esperienza ventennale fanno da cornice garantendo riparo da ogni rischio ed in completa trasparenza.
Per maggiori informazioni e appuntamenti potete contattare Enne Immobiliare al numero 06.37501016 oppure visitate il nostro sito www.enneimmobiliare.it

LEGGI TUTTO

CONDIVIDI SUI SOCIAL

DATI PRINCIPALI

Riferimento
629978
Contratto
Vendita
Tipologia
Attico
Superficie
80 mq
Locali
3
Camere da letto
2
Cucina
Angolo cottura
Bagni
1
Piano
3 °
Totale piani
3

CARATTERISTICHE

Ascensore

COSTI

Prezzo
€ 199.000,00
Spese condominiali
€ 45,00 / mese

EFFICIENZA ENERGETICA

Stato
Abitabile
Anno costruzione
1970
Riscaldamento
Autonomo
Classe energetica
G
IPE
175,00 kWh/m²a

A+

A

B

C

D

E

F

175,00 kWh/m²a | Classe energetica G

G

MAPPA

ANNUNCI SIMILI