Attico con terrazza | Metro A Colli Albani VENDITA

Via delle Vestali 5 - Roma (Roma)
€ 295.000
  • Trilocale
  • 75 mq
  • 1 bagno

Attico in Vendita a Roma

Nel cuore dell'Appio Tuscolano, ricco di servizi, negozi, e aree verdi, a pochi passi dalla metro Colli Albani Linea A, proponiamo in vendita attico al piano VI ed ultimo con ascensore di una palazzina in cortina in buono stato.
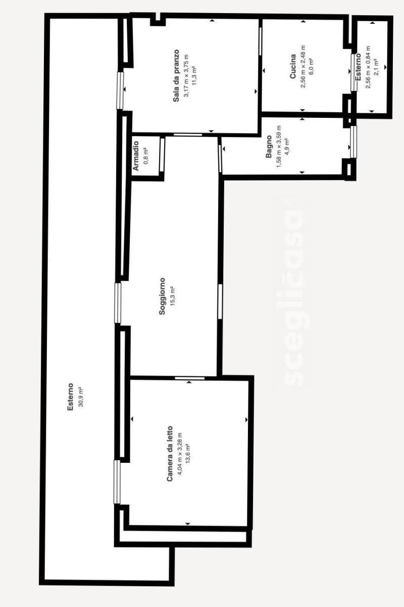
E' composto da 3 ambienti, servizi, armadi a muro, balcone e terrazza perimetrale di circa 30 mq,

La casa ha tripla esposizione ed è attraversata dalla luce grazie a ampie vetrate sulla terrazza, offrendo visuali sui tetti circostanti, con una piacevole sensazione di respiro. La terrazza, ampia e sfruttabile, si presta alla realizzazione di una zona pranzo esterna, un’area relax o uno spazio verde privato, diventando una vera estensione della zona giorno.
L’ingresso è sul soggiorno centrale, sviluppato in lunghezza, fulcro della casa da interpretare con soluzioni d’arredo su misura. Da un lato si accede alla camera da letto, luminosa e con uscita sulla terrazza; dall’altro un disimpegno con armadio a muro e ampio bagno finestrato con vasca. Proseguendo la zona giorno ampia e articolata, con sala da pranzo collegata alla cucina separata, dotata di balcone sul cortile condominiale. La conformazione e le dimensioni della zona living consentono, se desiderato, di ricavare uno studio o di riorganizzare gli spazi in chiave più contemporanea, valorizzando la continuità tra interni ed esterni.
I soffitti sono regolari e, sul lato verso la terrazza, leggermente spioventi: un dettaglio architettonico che dona movimento e carattere.
L’immobile è in condizioni originali anni ’70, ben conservato, e rappresenta un’ottima base per un progetto di ristrutturazione su misura.

Punti di forza dell’immobile
- Attico all’ultimo piano
- Terrazza perimetrale vivibile con panorama urbano
- Grande luminosità naturale
- Distribuzione interna originale e interessante

Potenzialità dell’immobile
- Ottima base per ristrutturazione personalizzata
- Possibilità di creare un ambiente aggiuntivo

Una casa per chi cerca luce, terrazza e personalità, non un appartamento standard, ideale per coppie ed investitori.
Puoi visitarla comodamente con il Virtual Tour 3D!
Info: 0670497002 roma.appiolatino@sceglicasa.eu

LEGGI TUTTO

CONDIVIDI SUI SOCIAL

DATI PRINCIPALI

Riferimento
630246
Contratto
Vendita
Tipologia
Attico
Superficie
75 mq
Locali
3
Camere da letto
1
Cucina
Abitabile
Bagni
1
Piano
6 °
Totale piani
6

CARATTERISTICHE

Ascensore

COSTI

Prezzo
€ 295.000,00
Spese condominiali
€ 60,00 / mese

EFFICIENZA ENERGETICA

Stato
Abitabile
Anno costruzione
1960
Riscaldamento
Centralizzato
Climatizzazione
Si
Classe energetica
G
IPE
187,90 kWh/m²a

A+

A

B

C

D

E

F

187,90 kWh/m²a | Classe energetica G

G

MAPPA