Attico con ampio terrazzo abitabile VENDITA

Via Lucrino 47, - Roma (Roma)
€ 550.000
  • Bilocale
  • 106 mq
  • 1 bagno

Attico in Vendita a Roma

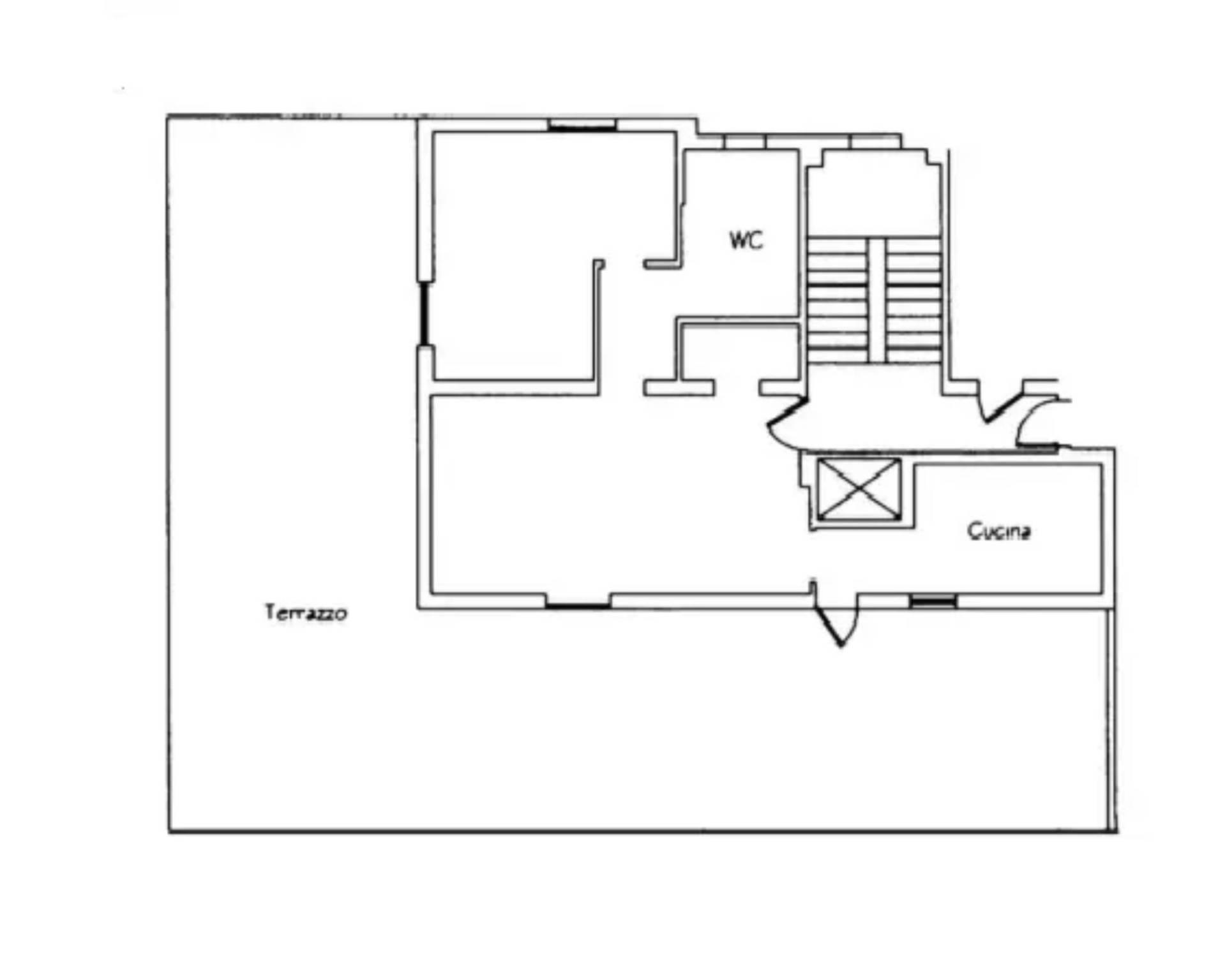
RIF. 373638 - Dati di contatto Agente: David Marziano 0620199544 - Attico con terrazzo di mq 106. Attualmente l’immobile è composto da ampio ingresso, soggiorno con accesso diretto alla terrazza vivibile e panoramica, sala da pranzo, camera matrimoniale, cucina e bagno. È in corso la presentazione del parere Co.Q.U.E. per la realizzazione di una Serra Solare, con progetto in fase di approvazione che trasformerà l’appartamento in una soluzione moderna e funzionale: ingresso soggiorno con angolo cottura, due camere da letto, doppi servizi e terrazzo. L’immobile rappresenta un’opportunità unica per chi desidera personalizzare gli spazi e valorizzare al massimo la luminosità e la vista panoramica offerta dalla terrazza. Superficie catastale mq 70. L'immobile, sito al piano nono, gode di un'ottima esposizione. Parti comuni in buono stato di manutenzione. Spese condominiali Euro 1.350,00/anno circa.
Stabile del 1950 dotato di ascensore e servizio di portierato.
La zona interessata è nella parte Nord di Roma. Il quartiere, denominato "Nemorense" è residenziale, ricco di negozi, servizi e generi di prima necessità. Risulta inoltre ben collegato con il resto della città da mezzi pubblici di trasporto, tra cui la fermata della linea metropolitana B1 "Sant’ Agnese Annibaliano" e la stazione ferroviaria Nomentana. Nelle immediate vicinanze si trovano il Parco di Villa Ada e il Parco Virgiliano; a poca distanza le università Luiss, Sapienza, il Policlinico Umberto I e la stazione Termini.

LEGGI TUTTO

CONDIVIDI SUI SOCIAL

DATI PRINCIPALI

Riferimento
626233
Contratto
Vendita
Tipologia
Attico
Superficie
106 mq
Locali
2
Camere da letto
1
Cucina
Abitabile
Bagni
1
Piano
Più di 7 piani
Totale piani
9

CARATTERISTICHE

Ascensore

COSTI

Prezzo
€ 550.000,00
Spese condominiali
€ 112,00 / mese

EFFICIENZA ENERGETICA

Stato
Abitabile
Anno costruzione
1950
Riscaldamento
Autonomo
Classe energetica
G

A+

A

B

C

D

E

F

Classe energetica G

G

MAPPA