Acilia - Monti San Paolo Quinta vendesi Attico VENDITA

Via Daniele Badiali - Roma, Zona Acilia
€ 266.000
  • Trilocale
  • 109 mq
  • 1 bagno

Attico in Vendita a Roma

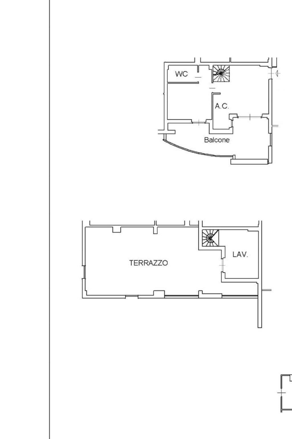
Acilia - Monti di San Paolo Quinta più precisamente in Via Daniele Badiali in elegante contesto residenziale proponiamo la vendita di un attico, di nuova costruzione, di 109 mq commerciali .
L' immobile, al suo interno, è composto da un soggiorno dal quale si accede al balcone, angolo cottura, disimpegno, una camera da letto, un bagno con vasca , ampio balcone attraverso una scala che si trova nella zona giorno si accede al secondo livello dove troviamo una stanza (locale tecnico) ed un ampio terrazzo. La richiesta per la vendita è di € 266.000,00 Caratteristiche: la pavimentazione degli appartamenti sono realizzate con piastrelle monocottura e/o parquet prefinito, riscaldamento centralizzato con regolazione autonome tramite cronotermostati e contabilizzazione dei consumi singoli per ogni appartamento (riscaldamento, acqua calda e fredda), predisposizione aria condizionata. Posizione: la zona è ben servita dai mezzi pubblici (autobus, stazione ferroviaria Roma - Lido) e da negozi di prima necessità. Le presenti informazioni, planimetrie e foto sono meramente indicative e non costituiscono elementi contrattuali.

LEGGI TUTTO

CONDIVIDI SUI SOCIAL

DATI PRINCIPALI

Riferimento
629795
Contratto
Vendita
Tipologia
Attico
Superficie
109 mq
Locali
3
Camere da letto
1
Cucina
Angolo cottura
Bagni
1
Piano
3 °
Totale piani
4

CARATTERISTICHE

Ascensore

COSTI

Prezzo
€ 266.000,00

EFFICIENZA ENERGETICA

Stato
Ristrutturato
Anno costruzione
2016
Riscaldamento
Centralizzato
Climatizzazione
Predisposizione
Classe energetica
A
IPE
175,00 kWh/m²a

A+

175,00 kWh/m²a | Classe energetica A

A

B

C

D

E

F

G

MAPPA

ANNUNCI SIMILI

VENDITA 19
€ 249.000
Attico in Vendita a Roma, Zona Acilia
  • Quadrilocale
  • 110 mq
  • 2 bagni
VENDITA 20
€ 198.000
Attico in Vendita a Roma, Zona Acilia
  • Trilocale
  • 75 mq
  • 1 bagno
VENDITA 20
€ 750.000
Attico in Vendita a Roma, Zona Acilia
  • Più di 5 locali
  • 150 mq
  • 3 bagni
VENDITA 17
€ 449.000
Attico in Vendita a Roma, Zona Axa
  • Più di 5 locali
  • 120 mq
  • 2 bagni