VILLA BONELLI - LARGO OLIVIERO ZUCCARINI VENDITA

Largo Oliviero Zuccarini 9 - Roma (Roma)
€ 495.000
  • Più di 5 locali
  • 129 mq
  • 2 bagni

Appartamento in Vendita a Roma

In uno dei condomini più ricercati della zona con giardine condominiali, servizio di portineria e con palazzine da poco ristrutturate, proponiamo in vendita appartamento di ampia metratura con esposizione doppia e luminosa.
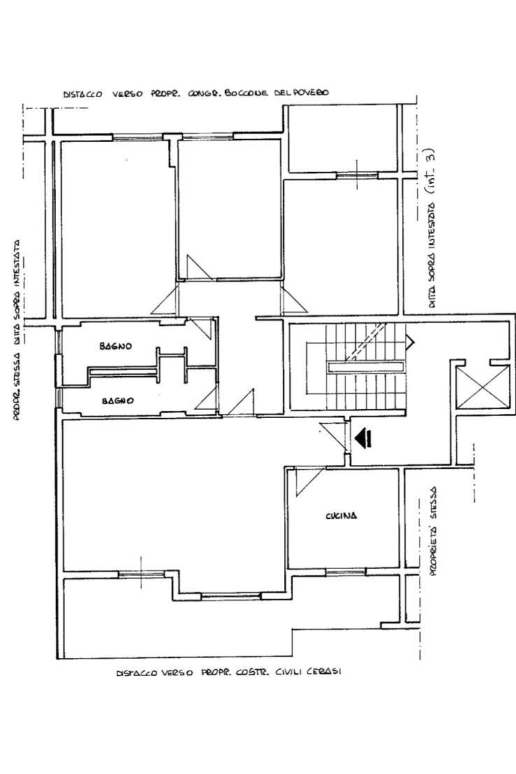
L'appartamento è composta da ingresso, salone, tre camere da letto, cucina a vista, doppi servizi (entrambi finestrati), balcone e terrazzo.
Completano la proprietà una cantina ed un box auto. Inoltre all'interno del condominio c'è la possibilità di parcheggiare in quanto sono presenti degli spazi adibiti a posti auto scoperti.

METRATURE NETTE:
Ingresso: 0,59 x 1,47 = 0,86 Mq. circa;
Salone: 32,23 Mq. circa;
1° camera da letto matrimoniale: 3,51 x 4,90 = 17,19 Mq. circa;
2° camera da letto matrimoniale: 4,26 x 3,63 = 15,46 Mq. circa;
3° camera da letto matrimoniale: 4,05 x 2,98 = 12,06 Mq. circa;
Cucina a vista: 4,05 x 2,97 = 12,02 Mq. circa;
1° bagno: 4,62 x 1,20 = 5,54 Mq. circa;
2° bagno: 1,27 x 4,59 = 5,82 Mq. circa;
Terrazzo: 17,00 Mq. circa;
Balcone: 1,74 x 3,23 = 5,62 Mq. circa.

Internamente la casa sviluppa una metratura calpestabile di: 110,00 mq. circa.
Mentre la metratura commerciale è di: 145,00 mq. circa. (che comprende quota parte dei muri perimetrali, del balcone).
Altezza soffitti appartamento: 2,96 mt. circa.

CARATTERISTICHE:
Riscaldamento: termoautonomo.
Tipologia di infisso esterno: legno doppio vetro.
Palazzina con rivestimento in: quarzo e cortina.
Servizio di portineria: presente.
Ascensore: presente.
Grate alle finestre: presenti.
Aria condizionata: presente.

Nelle vicinanze garantiti tutti i maggiori servizi come: linee autobus, metro, poste, banche, farmacie, mercato, super market, bar, tabaccherie.
Durante i nostri appuntamenti sul posto, vi verrà consegnata una scheda informativa con tutte le informazioni sull'appartamento come: planimetria, dati catastali, tasse inerenti l'acquisto o la locazione, spese di condominio e di riscaldamento e tanto altro ancora.

AGENTE IMMOBILIARE DI RIFERIMENTO: Emanuele Rizzitiello
Recapiti: Uff. 06/86970173
Cell. 348/7406753
Email: info@casa-co.eu
Sito: www.casa-co.eu
Instagram: casa_e_co_immobiliare
Casa & Co. Immobiliare, la tua casa in mani sicure

LEGGI TUTTO

CONDIVIDI SUI SOCIAL

DATI PRINCIPALI

Riferimento
634078
Contratto
Vendita
Tipologia
Appartamento
Superficie
129 mq
Locali
Più di 5
Camere da letto
4
Cucina
A vista
Bagni
2
Piano
2 °
Totale piani
5
Box/Posto auto
Singolo

CARATTERISTICHE

Ascensore

COSTI

Prezzo
€ 495.000,00
Spese condominiali
€ 115,00 / mese

EFFICIENZA ENERGETICA

Stato
Abitabile
Anno costruzione
1980
Riscaldamento
Autonomo
Climatizzazione
Si
Classe energetica
G
IPE
351,00 kWh/m²a

A+

A

B

C

D

E

F

351,00 kWh/m²a | Classe energetica G

G

MAPPA

ANNUNCI SIMILI

VENDITA 20
€ 699.000
Appartamento in Vendita a Roma (Roma)
  • Più di 5 locali
  • 210 mq
  • 3 bagni
VENDITA 20
€ 680.000
Appartamento in Vendita a Roma (Roma)
  • Più di 5 locali
  • 215 mq
  • 3 bagni
VENDITA 14
€ 499.000
Appartamento in Vendita a Roma, Zona Magliana
  • Più di 5 locali
  • 190 mq
  • 2 bagni
VENDITA 20
€ 290.000
Appartamento in Vendita a Roma, Zona Magliana
  • Più di 5 locali
  • 102 mq
  • 1 bagno
VENDITA 20
€ 310.000
Appartamento in Vendita a Roma, Zona Magliana
  • Più di 5 locali
  • 120 mq
  • 1 bagno
VENDITA 20
€ 285.000
Appartamento in Vendita a Roma (Roma)
  • Più di 5 locali
  • 138 mq
  • 2 bagni
VENDITA 20
€ 848.000
Appartamento in Vendita a Roma (Roma)
  • Più di 5 locali
  • 180 mq
  • 3 bagni
VENDITA 20
€ 370.000
Appartamento in Vendita a Roma, Zona Portuense
  • Più di 5 locali
  • 200 mq
  • 3 bagni
VENDITA 20
€ 549.000
Appartamento in Vendita a Roma (Roma)
  • Più di 5 locali
  • 145 mq
  • 2 bagni