COLLI PORTUENSI: Via A. Gandiglio VENDITA

Via Adolfo Gandiglio - Roma (Roma)
€ 549.000
  • Più di 5 locali
  • 145 mq
  • 2 bagni

Appartamento in Vendita a Roma

Nuda proprietà (98 anni) – Via Adolfo Gandiglio, angolo Via Rocci

All'interno di un elegante condominio signorile in palazzina in cortina, impreziosito da una suggestiva pianta rampicante che valorizza la facciata, proponiamo la vendita di un appartamento situato al piano terra rialzato.

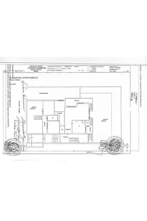
L’appartamento si distingue per ampiezza e funzionalità degli spazi: ingresso, salone triplo di rappresentanza, cucina abitabile, due camere matrimoniali, una cameretta, doppi servizi e comodo ripostiglio. La tripla esposizione garantisce ambienti luminosi e ben arieggiati per tutto l’arco della giornata.

Punto di forza dell’immobile sono i due giardini perimetrali privati, per un totale di circa 160 mq, che circondano la proprietà offrendo spazi verdi riservati e vivibili, ideali per momenti di relax o convivialità all’aperto.

Completa la proprietà un box auto di 20 mq, di comodo accesso.

La zona assicura un’ottima qualità della vita: l’immobile si trova a pochi metri dal tratto più vivace e interessante di Via dei Colli Portuensi, con negozi, servizi, scuole e collegamenti facilmente raggiungibili a piedi. Una posizione strategica che coniuga tranquillità residenziale e piena fruibilità del quartiere.

Soluzione ideale per chi desidera realizzare un investimento patrimoniale solido in un contesto ricercato, con ampie metrature e spazi esterni difficilmente reperibili sul mercato attuale.

Classe Energetica: G EP gl >175 kWh/m2
Rif.T609B Euro 549.000

Siamo a disposizione per fornirVi maggiori informazioni e per fissare un sopralluogo sull'immobile in oggetto, se è possibile con un minimo di preavviso, ai nostri numeri telefonico 06.96.03.56.48 oppure al nostro indirizzo email monteverde@solocasaimmobiliare.it. Siamo reperibili dal lunedì al venerdì dalle ore 9.00 alle ore 13.00 e dalle 13.30 alle 19.30, mentre il sabato dalle ore 9.00 alle ore 13.00. Per ulteriori foto e dettagli visitate il nostro sito internet www.solocasaimmobiliare.it.

LEGGI TUTTO

CONDIVIDI SUI SOCIAL

DATI PRINCIPALI

Riferimento
631985
Contratto
Vendita
Tipologia
Appartamento
Superficie
145 mq
Locali
Più di 5
Camere da letto
3
Cucina
Abitabile
Bagni
2
Piano
Piano terra
Totale piani
4

CARATTERISTICHE

Ascensore

COSTI

Prezzo
€ 549.000,00

EFFICIENZA ENERGETICA

Stato
Ristrutturato
Anno costruzione
1970
Riscaldamento
Autonomo
Classe energetica
G
IPE
175,00 kWh/m²a

A+

A

B

C

D

E

F

175,00 kWh/m²a | Classe energetica G

G

MAPPA

ANNUNCI SIMILI

VENDITA 20
€ 630.000
Appartamento in Vendita a Roma (Roma)
  • Più di 5 locali
  • 157 mq
  • 2 bagni
VENDITA 20
€ 895.000
Appartamento in Vendita a Roma (Roma)
  • Più di 5 locali
  • 270 mq
  • 3 bagni
VENDITA 20
€ 848.000
Appartamento in Vendita a Roma (Roma)
  • Più di 5 locali
  • 180 mq
  • 3 bagni
VENDITA 20
€ 525.000
Appartamento in Vendita a Roma (Roma)
  • Più di 5 locali
  • 145 mq
  • 2 bagni
VENDITA 20
€ 370.000
Appartamento in Vendita a Roma, Zona Portuense
  • Più di 5 locali
  • 200 mq
  • 3 bagni
VENDITA 5
€ 600.000
Appartamento in Vendita a Roma (Roma)
  • Più di 5 locali
  • 140 mq
  • 3 bagni
VENDITA 20
€ 990.000
Appartamento in Vendita a Roma (Roma)
  • Più di 5 locali
  • 175 mq
  • 3 bagni
VENDITA 13
€ 479.000
Appartamento in Vendita a Roma (Roma)
  • Più di 5 locali
  • 110 mq
  • 2 bagni
VENDITA 20
€ 585.000
Appartamento in Vendita a Roma (Roma)
  • Più di 5 locali
  • 153 mq
  • 2 bagni