MONTEVERDE NUOVO - ATTICO SUPERATTICO POSTO AUTO CANTINA VENDITA

Via di Donna Olimpia 195 - Roma (Roma)
€ 990.000
  • Più di 5 locali
  • 361 mq
  • 3 bagni

Appartamento in Vendita a Roma

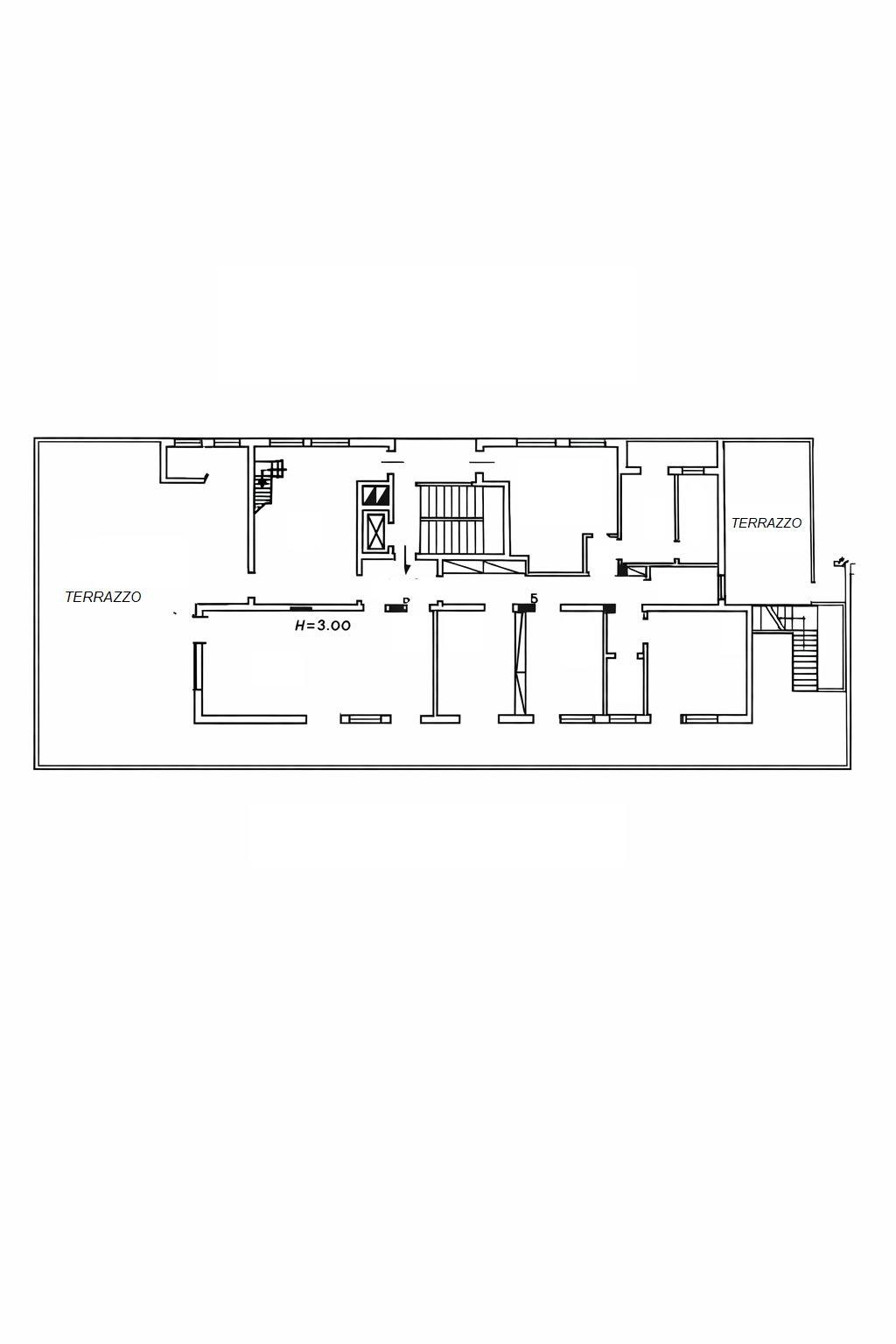
MONTEVERDE NUOVO - Via di Donna Olimpia in elegante stabile in cortina proponiamo un meraviglioso attico e superattico panoramico con quattro esposizioni, appartamento unico al piano di 361 mq posto al 6° piano con affacci ampi assolati e panoramici. L'immobile è composto da Ingresso triplo, Salone triplo, cucina abitabile, 5 Camere, 3 bagni, lungo corridoio, terrazzi perimetrali in tutto l'immobile, cantina, conclude la proprietà un comodo POSTO AUTO. ingresso indipendente anche al superattico. L'appartamento si presenta da ristrutturare ma grazie ai pochi vincoli architettonici si può modificare in qualunque modo e grazie ai vari ingressi è possibile frazionarlo in più appartamenti. L'appartamento è servito a pochi passi da mezzi pubblici, grazie alla vicinanza al tram 8 e la Stazione Trastevere lo collega a tutte le zone di Roma e provincia in modo facile e veloce. Vicino a tutte le attività commerciali e di pubblica utilità. Agenzia Monteverde, Via di Donna Olimpia 202, 00152 Roma Per ulteriori informazioni 06.58201468 - mail: stimacasamonteverde@gmail.com L’Agenzia MONTEVERDE, da anni presente nel territorio, offre su tutte le zone di Roma e provincia VALUTAZIONI GRATUITE per la vendita e per la locazione del Vostro immobile. Disponiamo di un'ampia Banca Dati e di tutti i più importanti siti immobiliari pubblicitari, e, grazie a questo, siamo in grado di soddisfare ogni Vostra esigenza e Preferenza. AGENZIA MONTEVERDE offre qualunque tipo di servizio immobiliare quali: - VENDITA – AFFITTO - PERMUTA - NUDA PROPRIETA’ - VALUTAZIONI GRATUITE - PLANIMETRIE CATASTALI - VISURE CATASTALI - SCEGLI AGENZIA MONTEVERDE.

LEGGI TUTTO

CONDIVIDI SUI SOCIAL

DATI PRINCIPALI

Riferimento
630393
Contratto
Vendita
Tipologia
Appartamento
Superficie
361 mq
Locali
Più di 5
Camere da letto
Più di 5
Cucina
Abitabile
Bagni
3
Piano
6 °
Totale piani
7
Box/Posto auto
Singolo

CARATTERISTICHE

Ascensore

COSTI

Prezzo
€ 990.000,00
Spese condominiali
€ 350,00 / mese

EFFICIENZA ENERGETICA

Stato
Da ristrutturare
Anno costruzione
1963
Riscaldamento
Autonomo
Classe energetica
G
IPE
175,00 kWh/m²a

A+

A

B

C

D

E

F

175,00 kWh/m²a | Classe energetica G

G

MAPPA

ANNUNCI SIMILI

VENDITA 13
€ 479.000
Appartamento in Vendita a Roma (Roma)
  • Più di 5 locali
  • 110 mq
  • 2 bagni
VENDITA 20
€ 520.000
Appartamento in Vendita a Roma (Roma)
  • Più di 5 locali
  • 153 mq
  • 2 bagni
VENDITA 5
€ 600.000
Appartamento in Vendita a Roma (Roma)
  • Più di 5 locali
  • 140 mq
  • 3 bagni
VENDITA 20
€ 525.000
Appartamento in Vendita a Roma (Roma)
  • Più di 5 locali
  • 145 mq
  • 2 bagni
VENDITA 7
€ 640.000
Appartamento in Vendita a Roma, Zona Trastevere
  • Più di 5 locali
  • 200 mq
  • 2 bagni
VENDITA 20
€ 459.000
Appartamento in Vendita a Roma, Zona Marconi
  • Più di 5 locali
  • 141 mq
  • 1 bagno
VENDITA 20
€ 750.000
Appartamento in Vendita a Roma (Roma)
  • Più di 5 locali
  • 142 mq
  • 3 bagni
VENDITA 20
€ 990.000
Appartamento in Vendita a Roma (Roma)
  • Più di 5 locali
  • 175 mq
  • 3 bagni