Via dei Giornalisti – Elegante appartamento con giardino VENDITA

Via dei Giornalisti 18 - Roma (Roma)
€ 469.000
  • Trilocale
  • 110 mq
  • 2 bagni

Appartamento in Vendita a Roma

Via dei Giornalisti – Elegante appartamento con giardino e posto auto in palazzina in cortina con portiere
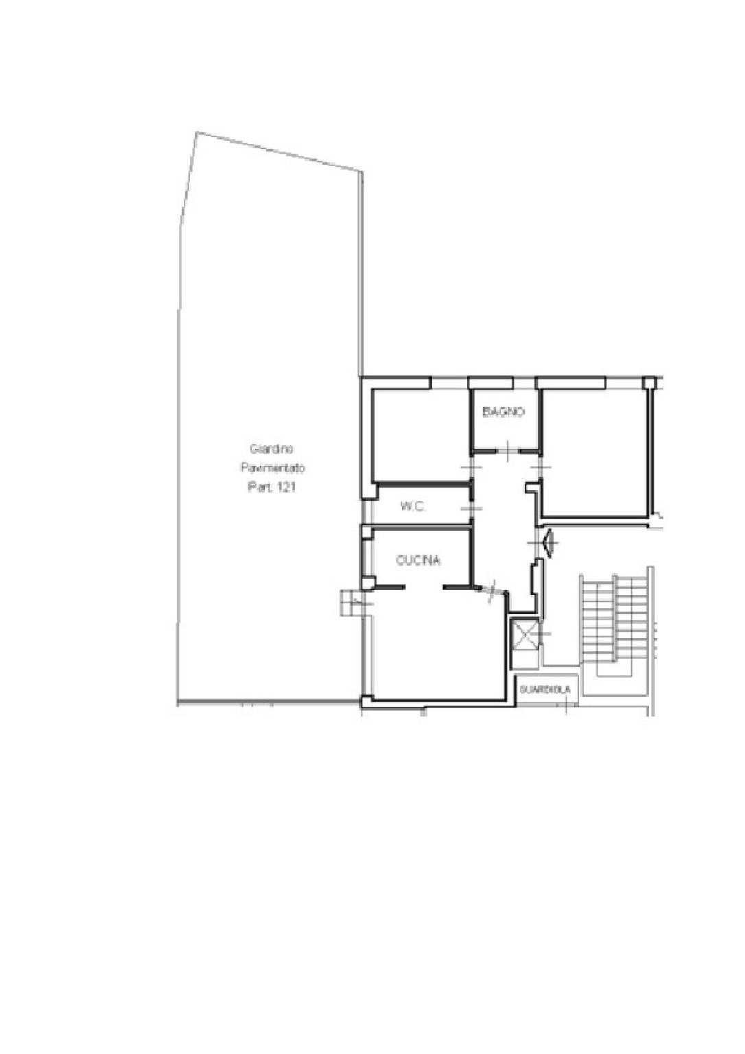
Nel prestigioso quartiere della Camilluccia, in Via dei Giornalisti, proponiamo un raffinato appartamento di circa 95 mq interni con giardino di pertinenza di circa 150 mq, situato in una palazzina in cortina con servizio di portineria, posto auto e cantina.
L’immobile, immerso nel verde e nella quiete di una delle zone più signorili di Roma Nord, si presenta luminoso e ben distribuito negli spazi:
Ingresso, ampio soggiorno con accesso diretto al giardino privato, perfetto per vivere all’aperto e per momenti di relax o convivialità.
Cucinotto,
Zona notte composta da due spaziose camere da letto e doppi servizi, entrambi con finestra.
Completano la proprietà un posto auto riservato, cantina e la presenza del servizio di portineria che garantisce sicurezza e comfort.
Le finestre ampie e l’esposizione favorevole rendono gli ambienti particolarmente luminosi e ariosi.
Il giardino, in parte pavimentato e in parte a verde, rappresenta un raro valore aggiunto, ideale per famiglie, animali domestici o chi desidera vivere in tranquillità restando vicino ai principali servizi del quartiere.
L’immobile è in buono stato manutentivo, con pavimenti in parquet, infissi in pvc con doppio vetro e riscaldamento centralizzato con contabilizzatori di consumo.

LEGGI TUTTO

CONDIVIDI SUI SOCIAL

DATI PRINCIPALI

Riferimento
626648
Contratto
Vendita
Tipologia
Appartamento
Superficie
110 mq
Locali
3
Camere da letto
2
Cucina
Cucinotto
Bagni
2
Piano
Piano terra
Totale piani
4
Box/Posto auto
Singolo

CARATTERISTICHE

Ascensore

COSTI

Prezzo
€ 469.000,00
Spese condominiali
€ 150,00 / mese

EFFICIENZA ENERGETICA

Stato
Ristrutturato
Anno costruzione
1967
Riscaldamento
Centralizzato
Climatizzazione
Si
Classe energetica
G
IPE
175,00 kWh/m²a

A+

A

B

C

D

E

F

175,00 kWh/m²a | Classe energetica G

G

MAPPA

ANNUNCI SIMILI

VENDITA 15
€ 495.000
Appartamento in Vendita a Roma (Roma)
  • Quadrilocale
  • 134 mq
  • 2 bagni
VENDITA 20
€ 422.000
Appartamento in Vendita a Roma (Roma)
  • Quadrilocale
  • 113 mq
  • 2 bagni
VENDITA 17
€ 332.000
Appartamento in Vendita a Roma (Roma)
  • Trilocale
  • 112 mq
  • 2 bagni
VENDITA 20
€ 455.000
Appartamento in Vendita a Roma (Roma)
  • Più di 5 locali
  • 117 mq
  • 2 bagni
VENDITA 20
€ 139.000
Appartamento in Vendita a Roma (Roma)
  • Trilocale
  • 83 mq
  • 1 bagno
VENDITA 16
€ 635.000
Appartamento in Vendita a Roma (Roma)
  • Più di 5 locali
  • 250 mq
  • 3 bagni
VENDITA 18
€ 616.000
Appartamento in Vendita a Roma (Roma)
  • Più di 5 locali
  • 162 mq
  • 2 bagni
VENDITA 16
€ 596.500
Appartamento in Vendita a Roma (Roma)
  • Più di 5 locali
  • 174 mq
  • 2 bagni