Trattativa Riservata
  • Bilocale
  • 50 mq
  • 1 bagno

Appartamento in Vendita a Roma

IN TRATTATIVA!

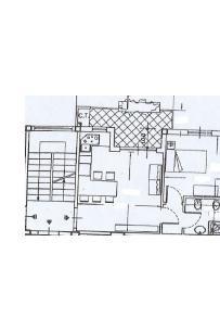
Cassia adiacenze scuola americana, più precisamente in Via Al Sesto Miglio, in palazzina in cortina di recente costruzione (2001), LA CASA CAPITAL ha il piacere di proporre in esclusiva un luminoso Ultimo piano in buono stato conservativo, composto da: soggiorno con angolo cottura, camera da letto matrimoniale, bagno finestrato con box doccia, terrazzino, ampia e comoda cantina di 6 mq e posto auto al piano piloty di 18 mq. Libero da subito! Ideale per un single, per una giovane coppia alla ricerca della prima abitazione o per uso investimento.

PER INFORMAZIONI CONTATTARE IL 3317155270 (ANCHE WHATSAPP).

Desiderate comprare un immobile ma dovete ancora vendere il vostro? Contattateci per una VALUTAZIONE GRATUITA, il nostro consulente di zona sarà da Voi in 24 h. La Casa Capital offre ai propri clienti un servizio rapido ed efficiente, mirato a soddisfare al meglio ogni tipologia di esigenza; consulenze finanziarie gratuite con la scelta del mutuo più adatto alle vostre esigenze. LA TUA CASA TI ASPETTA!

LEGGI TUTTO

CONDIVIDI SUI SOCIAL

DATI PRINCIPALI

Riferimento
641093
Contratto
Vendita
Tipologia
Appartamento
Superficie
50 mq
Locali
2
Camere da letto
1
Cucina
Angolo cottura
Bagni
1
Piano
2 °
Totale piani
2
Box/Posto auto
Singolo

CARATTERISTICHE

Ascensore

COSTI

Prezzo
Trattativa Riservata
Spese condominiali
€ 50,00 / mese

EFFICIENZA ENERGETICA

Stato
Abitabile
Anno costruzione
2001
Riscaldamento
Autonomo
Climatizzazione
Si
Classe energetica
G
IPE
175,00 kWh/m²a

A+

A

B

C

D

E

F

175,00 kWh/m²a | Classe energetica G

G

MAPPA

ANNUNCI SIMILI

VENDITA 15
€ 258.000
Appartamento in Vendita a Roma, Zona Tomba Di Nerone
  • Trilocale
  • 85 mq
  • 1 bagno
VENDITA 20
€ 165.000
Appartamento in Vendita a Roma (Roma)
  • Bilocale
  • 64 mq
  • 1 bagno
VENDITA 20
€ 395.000
Appartamento in Vendita a Roma, Zona Tomba Di Nerone
  • Quadrilocale
  • 145 mq
  • 2 bagni
VENDITA 20
€ 221.000
Appartamento in Vendita a Roma, Zona Tomba Di Nerone
  • Bilocale
  • 62 mq
  • 1 bagno