• Bilocale
  • 62 mq
  • 1 bagno

Appartamento in Vendita a Roma

TOMBA DI NERONE, VIA SANTI COSMA E DAMIANO

In una tranquilla traversa di Via Cassia, e più precisamente in Via Santi Cosma e Damiano, proponiamo in vendita un appartamento al piano terra di 62 mq con giardino privato.

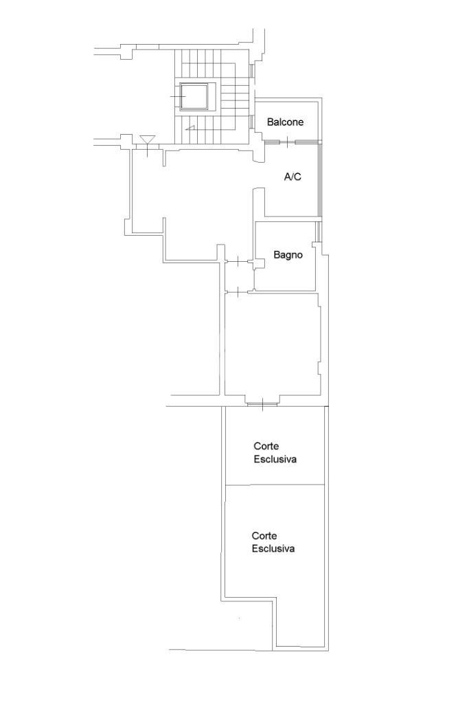
L’ingresso si apre su un soggiorno con cucinotto a vista, ricavato in una veranda condonata, da cui si accede a un balconcino esterno.
Un piccolo disimpegno conduce alla zona notte, composta da un bagno finestrato e da una camera matrimoniale con affaccio diretto sul giardino di circa 70 mq, in parte pavimentato, perfetto per vivere l’esterno in ogni stagione.

L’appartamento gode di una buona esposizione, si presenta in buono stato e può essere abitato da subito, senza interventi urgenti.

Accessori e rifiniture:

* Palazzina in cortina,
* Pavimenti in parquet,
* Condizionatore nella camera da letto,
* Riscaldamento centralizzato con contabilizzatori,
* Porta blindata,
* Grata di sicurezza.

Posizione strategica: a soli 100 metri da Via Cassia e da tutti i principali servizi (supermercati, fermate bus, farmacie, scuole). Il G.R.A. (Raccordo Anulare) è raggiungibile in pochi minuti (circa 1,5 km), rendendo l’immobile adatto anche per chi si sposta frequentemente.

Soluzione ideale per single, coppie o come investimento.

Contattaci per maggiori informazioni o per prenotare una visita.

Per ulteriori info puoi scriverci al n. 351/0713036.

Seguici anche su Facebook, visita la nostra pagina Agenzia Tecnocasa La Giustiniana e metti mi piace.
Vai sul nostro canale Youtube 'Agenzia Tecnocasa la Giustiniana' ed iscriviti per restare sempre aggiornato sulle nostre proposte.

LEGGI TUTTO

CONDIVIDI SUI SOCIAL

DATI PRINCIPALI

Riferimento
631616
Contratto
Vendita
Tipologia
Appartamento
Superficie
62 mq
Locali
2
Camere da letto
1
Cucina
Cucinotto
Bagni
1
Piano
Piano terra
Totale piani
3

CARATTERISTICHE

Ascensore

COSTI

Prezzo
€ 221.000,00
Spese condominiali
€ 67,00 / mese

EFFICIENZA ENERGETICA

Stato
Abitabile
Anno costruzione
1970
Riscaldamento
Centralizzato
Climatizzazione
Si
Classe energetica
G
IPE
99,00 kWh/m²a

A+

A

B

C

D

E

F

99,00 kWh/m²a | Classe energetica G

G

MAPPA

ANNUNCI SIMILI

VENDITA 20
€ 395.000
Appartamento in Vendita a Roma, Zona Tomba Di Nerone
  • Quadrilocale
  • 145 mq
  • 2 bagni
VENDITA 20
€ 165.000
Appartamento in Vendita a Roma (Roma)
  • Bilocale
  • 64 mq
  • 1 bagno
VENDITA 20
€ 570.000
Appartamento in Vendita a Roma (Roma)
  • Più di 5 locali
  • 170 mq
  • 2 bagni
VENDITA 18
€ 430.000
Appartamento in Vendita a Roma, Zona Tomba Di Nerone
  • Quadrilocale
  • 125 mq
  • 2 bagni