VENDITA APPARTAMENTO ZONA NUOVO SALARIO VENDITA

Roma, Zona Nuovo Salario
€ 245.000
  • Trilocale
  • 95 mq
  • 1 bagno

Appartamento in Vendita a Roma

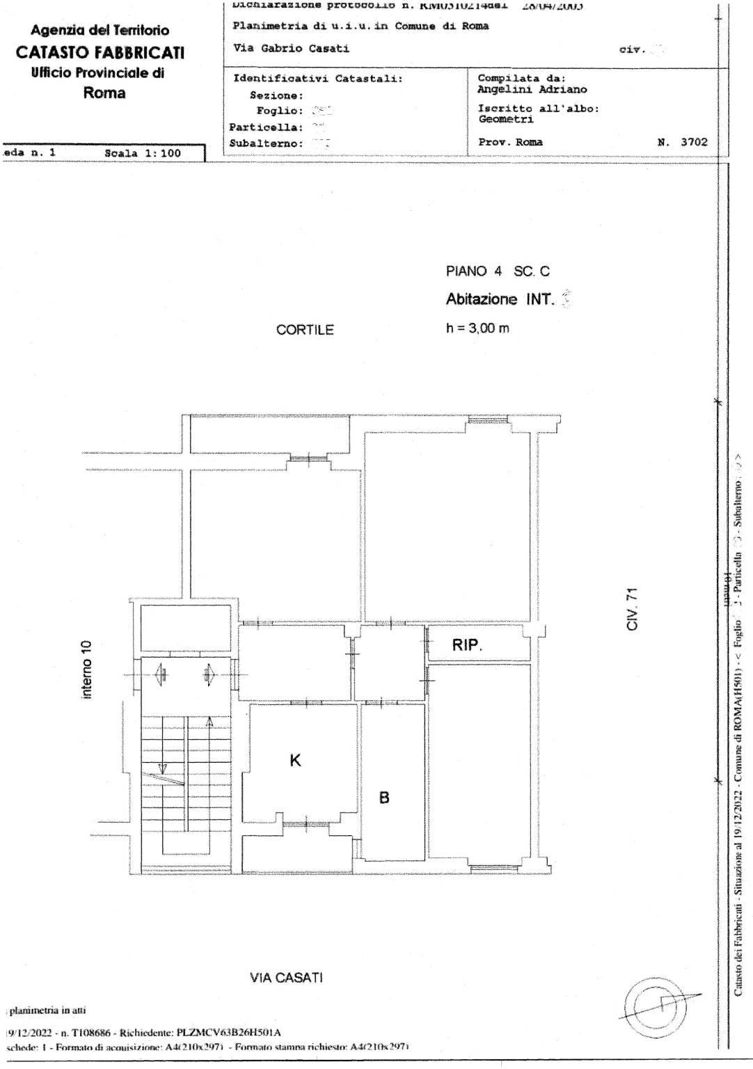
NUOVO SALARIO - Vicino alla metro B Jonio al centro commerciale Porta di Roma ed ai servizi della zona, in VIA GABRIO CASATI, proponiamo la VENDITA di un luminoso trilocale ubicato al 4° piano di 95 mq. con palazzina ristrutturata recentemente e dotata di ascensore. La casa è composta da un ingresso, soggiorno all'americana con accesso ad uno dei balconi, una cucina abitabile con balcone, bagno finestrato, proseguendo troviamo due camere da letto di cui una molto ampia ed un ripostiglio, completa la proprietà una cantina. L'immobile gode di una doppia esposizione e di un'ottima luminosità. Per la sua struttura con doppio affaccio (est-ovest) e tramezzi di divisione, si presta ad una razionalizzazione degli spazzi tale da poter fruire in modo ottimale della metratura interna. Per qualsiasi ulteriore informazione sull'immobile o per ulteriori offerte immobiliari, potete contattarci allo 06.88. 61.450 il nostro staff sarà lieto di fornirvi l'assistenza necessaria, siamo a vostra disposizione nel seguente orario: dal lunedì al venerdì dalle 9: 00 alle 13: 00 e dalle 15: 00 alle 19: 00, il sabato dalle 9: 00 alle 13: 00.

LEGGI TUTTO

CONDIVIDI SUI SOCIAL

DATI PRINCIPALI

Riferimento
636483
Contratto
Vendita
Tipologia
Appartamento
Superficie
95 mq
Locali
3
Camere da letto
2
Cucina
Abitabile
Bagni
1
Piano
4 °
Totale piani
8

CARATTERISTICHE

Ascensore

COSTI

Prezzo
€ 245.000,00
Spese condominiali
€ 100,00 / mese

EFFICIENZA ENERGETICA

Stato
Abitabile
Anno costruzione
1960
Riscaldamento
Centralizzato
Classe energetica
G
IPE
351,00 kWh/m²a

A+

A

B

C

D

E

F

351,00 kWh/m²a | Classe energetica G

G

MAPPA

ANNUNCI SIMILI