VENDESI ROMA VATICANO - VIA AURELIA 232 VENDITA

Via Aurelia 232 - Roma (Roma)
€ 440.000
  • Quadrilocale
  • 100 mq
  • 3 bagni

Appartamento in Vendita a Roma

VENDESI ROMA VATICANO - VIA AURELIA 232

Allo stato attuale gli immobili sono locati con scadenza a luglio 2029.

A pochi passi dal Vaticano, in una delle zone più prestigiose e ricercate di Roma, proponiamo la vendita di 5 immobili attualmente adibiti ad uso ricettivo, di varie metrature e differenti piani:

a) Immobile int. 1, mq 144, piano terra di 5 camere, 6 bagni ed area comune ad € 540.000;
b) Immobile int. 2, mq 147, piano terra di 5 camere, 4 bagni ed area comune ad € 540.000;
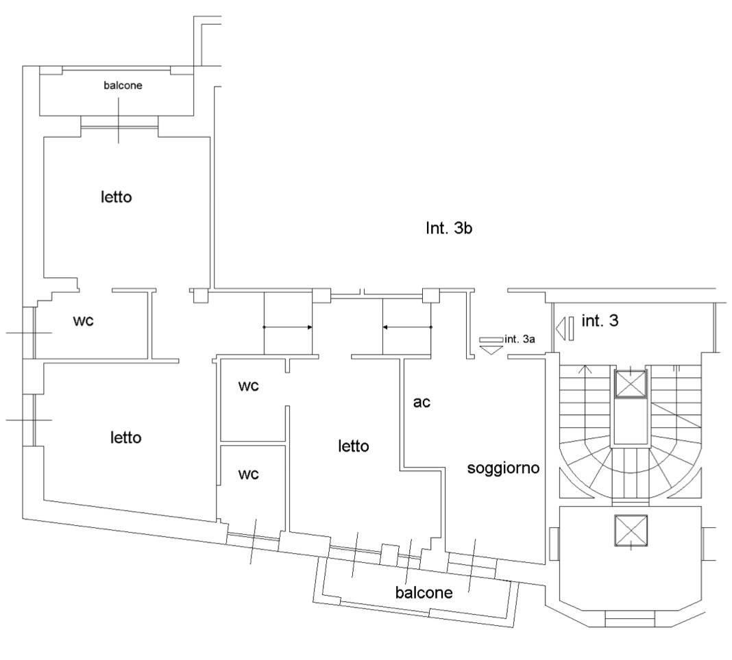
c) Immobile int. 3a, mq 100, piano primo di 3 camere, 3 bagni ed area comune ad € 440.000;
d) Immobile int. 3b, mq 72, piano primo di 2 camere, 2 bagni ed area comune ad € 340.000;
e) Immobile int. 6, mq 148, piano secondo di 5 camere, 6 bagni ed area comune ad € 670.000.

Possibilità di parcheggio nel piazzale antistante il palazzo.

Gli immobili rappresentano un’opportunità unica di investimento sia per la sua posizione strategica sia per la rendita finanziaria che possono produrre.

Le presenti informazioni e planimetrie non rappresentano elemento contrattuale.

LEGGI TUTTO

CONDIVIDI SUI SOCIAL

DATI PRINCIPALI

Riferimento
638423
Contratto
Vendita
Tipologia
Appartamento
Superficie
100 mq
Locali
4
Camere da letto
3
Cucina
Abitabile
Bagni
3
Piano
1 °
Totale piani
5

CARATTERISTICHE

Ascensore

COSTI

Prezzo
€ 440.000,00
Spese condominiali
€ 100,00 / mese

EFFICIENZA ENERGETICA

Stato
Abitabile
Anno costruzione
1960
Riscaldamento
Centralizzato
Climatizzazione
Si
Classe energetica
D
IPE
80,00 kWh/m²a

A+

A

B

C

80,00 kWh/m²a | Classe energetica D

D

E

F

G

MAPPA

ANNUNCI SIMILI

VENDITA 20
€ 540.000
Appartamento in Vendita a Roma (Roma)
  • Più di 5 locali
  • 147 mq
  • 4 bagni
VENDITA 20
€ 540.000
Appartamento in Vendita a Roma (Roma)
  • Più di 5 locali
  • 144 mq
  • 4 bagni
VENDITA 20
€ 670.000
Appartamento in Vendita a Roma (Roma)
  • Più di 5 locali
  • 148 mq
  • 4 bagni
VENDITA 20
€ 539.000
Appartamento in Vendita a Roma (Roma)
  • Più di 5 locali
  • 125 mq
  • 2 bagni
VENDITA 20
€ 655.000
Appartamento in Vendita a Roma (Roma)
  • Più di 5 locali
  • 150 mq
  • 3 bagni
VENDITA 20
€ 719.000
Appartamento in Vendita a Roma (Roma)
  • Quadrilocale
  • 138 mq
  • 2 bagni
VENDITA 20
€ 1.160.000
Appartamento in Vendita a Roma (Roma)
  • Quadrilocale
  • 242 mq
  • 3 bagni
VENDITA 20
€ 690.000
Appartamento in Vendita a Roma (Roma)
  • Più di 5 locali
  • 180 mq
  • 3 bagni
VENDITA 20
€ 599.000
Appartamento in Vendita a Roma (Roma)
  • Più di 5 locali
  • 169 mq
  • 2 bagni
VENDITA 20
€ 740.000
Appartamento in Vendita a Roma (Roma)
  • Più di 5 locali
  • 181 mq
  • 2 bagni