Vendesi a Roma, Aurelio - San Pietro VENDITA

Via Aurelia 232 - Roma (Roma)
€ 540.000
  • Più di 5 locali
  • 147 mq
  • 4 bagni

Appartamento in Vendita a Roma

VENDESI ROMA VATICANO - VIA AURELIA 232

Allo stato attuale gli immobili sono locati con scadenza a luglio 2029.

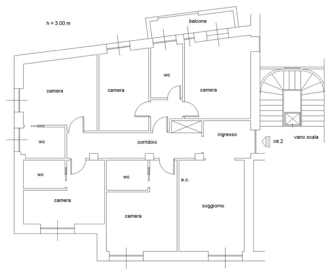
A pochi passi dal Vaticano, in una delle zone più prestigiose e ricercate di Roma, proponiamo la vendita di 5 immobili attualmente adibiti ad uso ricettivo, di varie metrature e differenti piani:

a) Immobile int. 1, mq 144, piano terra di 5 camere, 6 bagni ed area comune ad € 540.000;
b) Immobile int. 2, mq 147, piano terra di 5 camere, 4 bagni ed area comune ad € 540.000;
c) Immobile int. 3a, mq 100, piano primo di 3 camere, 3 bagni ed area comune ad € 440.000;
d) Immobile int. 3b, mq 72, piano primo di 2 camere, 2 bagni ed area comune ad € 340.000;
e) Immobile int. 6, mq 148, piano secondo di 5 camere, 6 bagni ed area comune ad € 670.000.

Possibilità di parcheggio nel piazzale antistante il palazzo.

Gli immobili rappresentano un’opportunità unica di investimento sia per la sua posizione strategica sia per la rendita finanziaria che possono produrre.

Le presenti informazioni e planimetrie non rappresentano elemento contrattuale.

LEGGI TUTTO

CONDIVIDI SUI SOCIAL

DATI PRINCIPALI

Riferimento
638413
Contratto
Vendita
Tipologia
Appartamento
Superficie
147 mq
Locali
Più di 5
Camere da letto
5
Cucina
Abitabile
Bagni
4
Piano
Piano terra
Totale piani
5

CARATTERISTICHE

Ascensore

COSTI

Prezzo
€ 540.000,00
Spese condominiali
€ 100,00 / mese

EFFICIENZA ENERGETICA

Stato
Abitabile
Anno costruzione
1960
Riscaldamento
Centralizzato
Climatizzazione
Si
Classe energetica
D
IPE
80,00 kWh/m²a

A+

A

B

C

80,00 kWh/m²a | Classe energetica D

D

E

F

G

MAPPA

ANNUNCI SIMILI

VENDITA 20
€ 540.000
Appartamento in Vendita a Roma (Roma)
  • Più di 5 locali
  • 144 mq
  • 4 bagni
VENDITA 20
€ 670.000
Appartamento in Vendita a Roma (Roma)
  • Più di 5 locali
  • 148 mq
  • 4 bagni
VENDITA 20
€ 2.264.000
Appartamento in Vendita a Roma (Roma)
  • Più di 5 locali
  • 297 mq
  • 4 bagni
VENDITA 14
€ 795.000
Appartamento in Vendita a Roma (Roma)
  • Più di 5 locali
  • 250 mq
  • 4 bagni
VENDITA 15
€ 795.000
Appartamento in Vendita a Roma (Roma)
  • Più di 5 locali
  • 250 mq
  • 4 bagni
VENDITA 20
€ 660.000
Appartamento in Vendita a Roma (Roma)
  • Più di 5 locali
  • 145 mq
  • 3 bagni
VENDITA 20
€ 599.000
Appartamento in Vendita a Roma (Roma)
  • Più di 5 locali
  • 240 mq
  • 3 bagni
VENDITA 15
€ 720.000
Appartamento in Vendita a Roma (Roma)
  • Più di 5 locali
  • 190 mq
  • 3 bagni