TRILOCALI NUOVA COSTRUZIONE - VIA LENTINI VENDITA

Via Lentini - Roma, Zona Borghesiana
€ 255.000
  • Trilocale
  • 88 mq
  • 2 bagni

Appartamento in Vendita a Roma

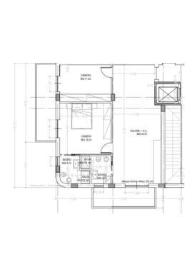
Rif:0913 - IMMOBILIARE SIMONETTI - TRAMITE BONUS BOX AUTO, L'ACQUIRENTE PUO' DETRARRE CIRCA € 17.000 IN 10 ANNI. In posizione strategica a soli 10 minuti a piedi dalla metro C Borghesiana, nelle vicinanze del GRA, a poca distanza dal Policlinico Universitario di Tor Vergata, nelle immediate vicinanze di tutti i principali servizi e piu' precisamente in Via Lentini, la Immobiliare Simonetti inizia le vendite di ampi appartamenti di nuova costruzione. Le soluzioni facenti parte di due palazzine di soli due livelli si distingueranno per le rifiniture di primissima qualità. Costruite grazie all'utilizzo delle tecnologie più avanzate gli edifici saranno classificati in classe A3, completamente elettrici e con riscaldamento con pannelli radianti a pavimento alimentati da pompa di calore, la quale provvederà anche al raffrescamento degli ambienti, pannello fotovoltaico individuale da 1,5 Kw estendibile, predisposizione impianto di condizionamento. Internamente la presenza di ascensore permetterà di salire dai box posti nel piano seminterrato direttamente ai piani residenziali. L'appartamento di questo annuncio sarà posto al piano primo e godrà due balconi per un totale di 22 mq. Gli spazi interni molto ampi e luminosi prevedono una zona living con cucina a vista di ben 37 mq, due camere da letto e due bagni. Possibilità di acquisto box auto da 20/30 mq
Consegna prevista Aprile 2025
Rif:0913 - Immobiliare Simonetti

LEGGI TUTTO

CONDIVIDI SUI SOCIAL

DATI PRINCIPALI

Riferimento
642188
Contratto
Vendita
Tipologia
Appartamento
Superficie
88 mq
Locali
3
Camere da letto
2
Cucina
A vista
Bagni
2
Piano
1 °
Totale piani
2

CARATTERISTICHE

Ascensore

COSTI

Prezzo
€ 255.000,00
Spese condominiali
€ 1,00 / mese

EFFICIENZA ENERGETICA

Stato
Nuovo/In costruzione
Anno costruzione
2024
Riscaldamento
Autonomo
Climatizzazione
Predisposizione
Classe energetica
A4
IPE
351,00 kWh/m²a
351,00 kWh/m²a | Classe energetica A4

A4

A3

A2

A1

B

C

D

E

F

G

MAPPA

ANNUNCI SIMILI

VENDITA 20
€ 209.000
Appartamento in Vendita a Roma, Zona Borghesiana
  • Trilocale
  • 112 mq
  • 1 bagno
VENDITA 20
€ 179.000
Appartamento in Vendita a Roma, Zona Borghesiana
  • Trilocale
  • 100 mq
  • 1 bagno
VENDITA 20
€ 290.000
Appartamento in Vendita a Roma, Zona Borghesiana
  • Trilocale
  • 85 mq
  • 2 bagni
VENDITA 20
€ 229.000
Appartamento in Vendita a Roma, Zona Borghesiana
  • Trilocale
  • 85 mq
  • 2 bagni