TRILOCALE CON GIARDINO E POSTO AUTO VENDITA

Via Castelvetrano - Roma, Zona Borghesiana
€ 249.000
  • Trilocale
  • 79 mq
  • 2 bagni

Appartamento in Vendita a Roma

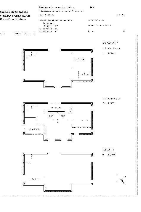
Rif: 1310 - Immobiliare Simonetti - In una zona completamente fornita di qualsiasi servizio di prima necessità, al contempo in un contesto tranquillo e residenziale, L'Immobiliare Simonetti è lieta di proporre la vendita di un appartamento in villa di circa 65 mq con giardino di 70 mq. La soluzione è dislocata al primo piano di un villino di sole quattro unità abitative e con entrata indipendente, tramite cancello carrabile e scala esterna che introduce all'entrata principale. Entrando nella soluzione ci accoglie una luminosa zona giorno con angolo cottura, impreziosita da travi in legno di castagno e con doppie finestre. A seguire, tramite un comodo disimpegno, accediamo alla zona notte composta da camera padronale con bagno ensuite e da una seconda camera da letto. Ad ultimare l'appartamento un secondo bagno con doccia. La soluzione è stata realizzata con materiali di ultima generazione finalizzati al risparmio energetico con la predisposizione di pannelli solari; l'appartamento è inoltre fornito di condizionatori in tutti gli ambienti e grate di design. A completare la proprietà un posto auto assegnato. Tutte le informazioni, foto e planimetrie contenute nel presente annuncio pubblicitario non costituiscono elemento contrattuale: potrebbero non rispecchiare fedelmente lo stato di fatto dell'immobile e andranno verificate prima di formulare la proposta di acquisto. L'agenzia immobiliare non risponde di eventuali discordanze. Le immagini o foto in pubblicità sono inserite a scopo illustrativo non costituiscono elemento contrattuale. Rif: 1310 - Immobiliare Simonetti -

LEGGI TUTTO

CONDIVIDI SUI SOCIAL

DATI PRINCIPALI

Riferimento
642112
Contratto
Vendita
Tipologia
Appartamento
Superficie
79 mq
Locali
3
Camere da letto
2
Cucina
Angolo cottura
Bagni
2
Piano
1 °
Totale piani
2
Box/Posto auto
Singolo

CARATTERISTICHE

Ascensore

COSTI

Prezzo
€ 249.000,00
Spese condominiali
€ 1,00 / mese

EFFICIENZA ENERGETICA

Stato
Ristrutturato
Anno costruzione
1980
Riscaldamento
Autonomo
Climatizzazione
Si
Classe energetica
G
IPE
175,00 kWh/m²a

A+

A

B

C

D

E

F

175,00 kWh/m²a | Classe energetica G

G

MAPPA

ANNUNCI SIMILI

VENDITA 20
€ 209.000
Appartamento in Vendita a Roma, Zona Borghesiana
  • Trilocale
  • 112 mq
  • 1 bagno
VENDITA 20
€ 290.000
Appartamento in Vendita a Roma, Zona Borghesiana
  • Trilocale
  • 85 mq
  • 2 bagni
VENDITA 20
€ 229.000
Appartamento in Vendita a Roma, Zona Borghesiana
  • Trilocale
  • 85 mq
  • 2 bagni