Trilocale via Francesco di Benedetto 182, Romanina, Roma VENDITA

Via Francesco di Benedetto - Roma, Zona Romanina
€ 240.000
  • Trilocale
  • 71 mq
  • 1 bagno

Appartamento in Vendita a Roma

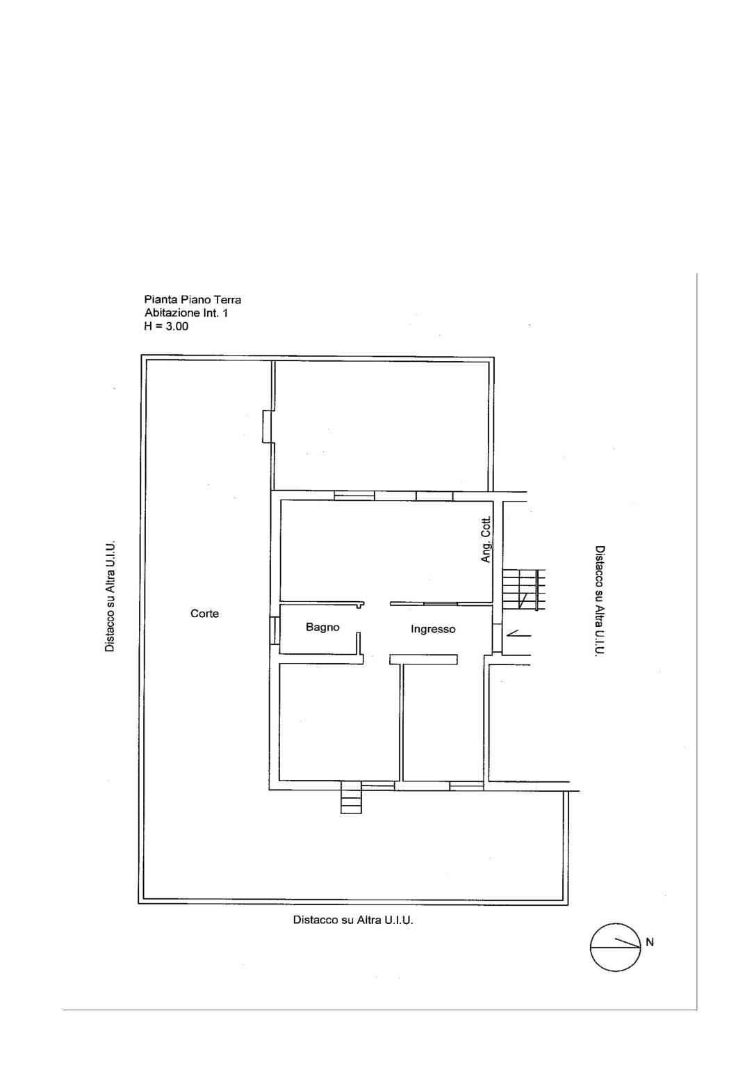
La BrunImmobiliare propone in vendita un delizioso trilocale in zona Romanina, in Via Francesco di Benedetto 182, a pochi minuti dal Grande Raccordo Anulare e dal Centro Commerciale Anagnina. L’immobile, situato al piano terra di una piccola palazzina in cortina, si compone di una luminosa zona giorno con angolo cottura, camera matrimoniale, cameretta e bagno finestrato. L’appartamento gode di un ampio e piacevole spazio esterno privato pavimentato di quasi 100 mq, ideale per pranzi e momenti di relax all’aperto. L’immobile è dotato di grate, infissi in legno con doppio vetro, serrande elettriche zona notte. Soluzione ideale per chi cerca un appartamento con spazio esterno, comfort. PER INFORMAZIONI: 320.8818415




DEVI VENDERE/ACQUISTARE? – Siamo specializzati nelle operazioni di COMPRA-VENDITA. DEVI AFFITTARE? – Troveremo la persona che fa per te, la nostra ricerca, si basa su una selezione scrupolosa del tuo futuro conduttore. DEVI REGISTRARE? – Ci occuperemo noi della registrazione del tuo contratto di locazione, analizzando tutti gli aspetti fiscali, per ottimizzare i costi e le spese da affrontare. DEVI STIPULARE? – Il notaio lo troverai in sede. DEVI CHIEDERE UN PRESTITO/MUTUO? – Ci avvaliamo dei migliori consulenti per concretizzare la tua richiesta e realizzare il tuo sogno. DEVI RITRUTTURARE? – Le nostre squadre di professionisti, potranno tranquillamente soddisfare ogni tua esigenza. DEVI PROGETTARE? – I nostri tecnici potranno indirizzarti verso una soluzione progettuale adeguata. Non è semplice gestire anche solo una di queste operazioni, contattaci e gestiremo tutto NOI, alleggerendoti dallo stress e dalle preoccupazioni del caso. La BRUNIMMOBILIARE di Federica Bruni, nasce dall’esigenza di voler creare una nuova realtà nel settore in cui opera. La Nostra idea è quella di unire alle classiche competenze dell’agenzia immobiliare, tutti i servizi che orbitano intorno al patrimonio immobiliare stesso, attraverso la consulenza di professionisti del settore per diventare un punto di riferimento per i Nostri clienti.

LEGGI TUTTO

CONDIVIDI SUI SOCIAL

DATI PRINCIPALI

Riferimento
636583
Contratto
Vendita
Tipologia
Appartamento
Superficie
71 mq
Locali
3
Camere da letto
2
Cucina
Angolo cottura
Bagni
1
Piano
Piano terra
Totale piani
3

CARATTERISTICHE

Ascensore

COSTI

Prezzo
€ 240.000,00
Spese condominiali
€ 40,00 / mese

EFFICIENZA ENERGETICA

Stato
Ristrutturato
Anno costruzione
1970
Riscaldamento
Autonomo
Climatizzazione
Predisposizione
Classe energetica
G
IPE
175,00 kWh/m²a

A+

A

B

C

D

E

F

175,00 kWh/m²a | Classe energetica G

G

MAPPA

ANNUNCI SIMILI