3 locali Vendita ANAGNINA - ROMA VENDITA

Via Gasperina - Roma (Roma)
€ 295.000
  • Trilocale
  • 122 mq
  • 2 bagni

Appartamento in Vendita a Roma

PREZZO A PARTIRE DA €295.000,00

L'immobile è visionabile ESCLUSIVAMENTE secondo la modalità CASAE'VISIT: ogni cliente potrà visionare l'immobile, singolarmente, nel suo turno di prenotazione confermato dall'agenzia e formulare alla fine degli appuntamenti della giornata, la sua personale lettera di intenti o direttamente la proposta d'acquisto se interessati.
NON E' UN'ASTA!!!

La proprietà valuterà offerte a partire dal prezzo minimo indicato, ma saranno altresì fondamentali le modalità di pagamento e la tempistica del rogito notarile.

Totalmente ristrutturata nel 2022, compreso impianto idraulico ed elettrico, rivestimenti, serramenti, tapparelle, caldaia a gas (posta esternamente).

Via Gasperina (in una via interna, migliore posizione non su strada).

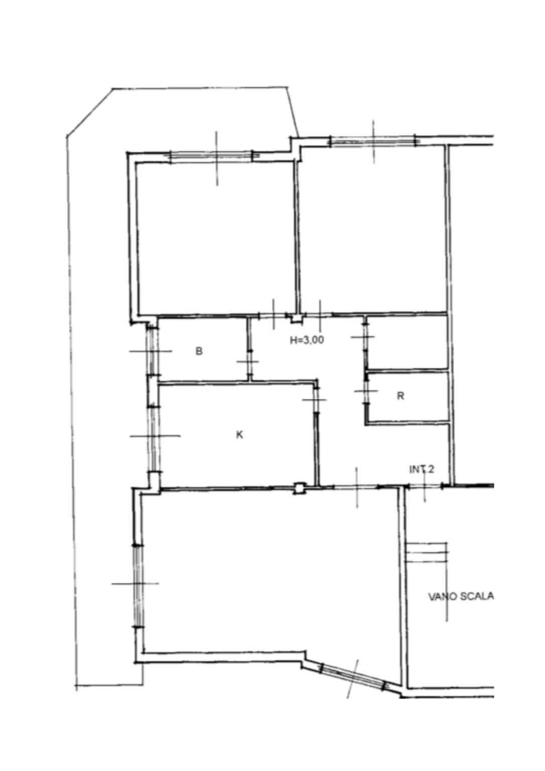
Disponiamo in vendita, in piena proprietà, un trilocale sito al primo piano di una palazzina di soli 2 piani, senza ascensore.
Esposizione solare tripla: Nord, est, sud.
Riscaldamento autonomo con caldaia a gas.
Ingresso, salone doppio (con possibilità di ripristinare la terza camera da letto), cucina attualmente a vista con isola centrale (possibilità,a scelta, di renderla a sè stante).
Tra la zona giorno e la zona notte un disimpegno dove si trova un ripostiglio, la camera matrimoniale, la seconda camera con bagno privato e il bagno finestrato.
Un terrazzo angolare, di circa 22mq è lo spazio esterno dell'appartamento.
Internamente la pavimentazione è in grès porcellanato (effetto marmo), tutte le porte interne sono state sostituite, come la totalità degli infissi in pvc bianco con doppio vetro, tutte le serrande dell'immobile sono elettriche.
L'appartamento è dotato di tre split (inverter a pompa di calore), uno nella zona giorno e uno in ogni camera da letto.
Tutto l'appartamento è stato controsoffittato con faretti dove passano tutti i nuovi impianti presenti.

E' dotato di videocitofono.
Nel cuore del quartiere, al centro di ogni servizio pubblico e privato a piedi :
- Metro Anagnina : 1,5 km
- Autobus: vs metro Anagnina o Castelli
- Supermercato: 100 mt
- Farmacia: 80 mt
- Centro commerciale Anagnina: 800mt
- Ikea: 600 mt
- GRA: 800 mt

Il prezzo di commercializzazione del bene è con la formula PREZZO A PARTIRE DA...
Ogni cliente potrà sottoscrivere la propria lettera di intenti/proposta di acquisto partendo dalla base minima del prezzo indicato e migliorare la propria offerta con un importo maggiore in base alle proprie disponibilità.
Si consiglia ai clienti di formulare sin da subito la migliore offerta possibile per aumentare la propria possibilità di acquisto.

LEGGI TUTTO

CONDIVIDI SUI SOCIAL

DATI PRINCIPALI

Riferimento
632281
Contratto
Vendita
Tipologia
Appartamento
Superficie
122 mq
Locali
3
Camere da letto
2
Cucina
A vista
Bagni
2
Piano
1 °
Totale piani
2

CARATTERISTICHE

Ascensore

COSTI

Prezzo
€ 295.000,00

EFFICIENZA ENERGETICA

Stato
Ristrutturato
Anno costruzione
1980
Riscaldamento
Autonomo
Climatizzazione
Si
Classe energetica
D
IPE
175,00 kWh/m²a

A+

A

B

C

175,00 kWh/m²a | Classe energetica D

D

E

F

G

MAPPA

ANNUNCI SIMILI

VENDITA 20
€ 375.000
Appartamento in Vendita a Roma (Roma)
  • Più di 5 locali
  • 154 mq
  • 2 bagni
VENDITA 20
€ 270.000
Appartamento in Vendita a Roma (Roma)
  • Più di 5 locali
  • 140 mq
  • 1 bagno
VENDITA 20
€ 275.000
Appartamento in Vendita a Roma (Roma)
  • Trilocale
  • 122 mq
  • 2 bagni
VENDITA 13
€ 159.000
Appartamento in Vendita a Roma (Roma)
  • Trilocale
  • 65 mq
  • 1 bagno
VENDITA 20
€ 269.000
Appartamento in Vendita a Roma (Roma)
  • Quadrilocale
  • 129 mq
  • 2 bagni