€ 500 mensili
  • Trilocale
  • 77 mq
  • 1 bagno

Appartamento in Affitto a Palombara Sabina

Su Via Binaghi, nelle immediate vicinanze dei servizi principali di questa località, proponiamo in affitto appartamento ARREDATO con splendida terrazza e vista panoramica.
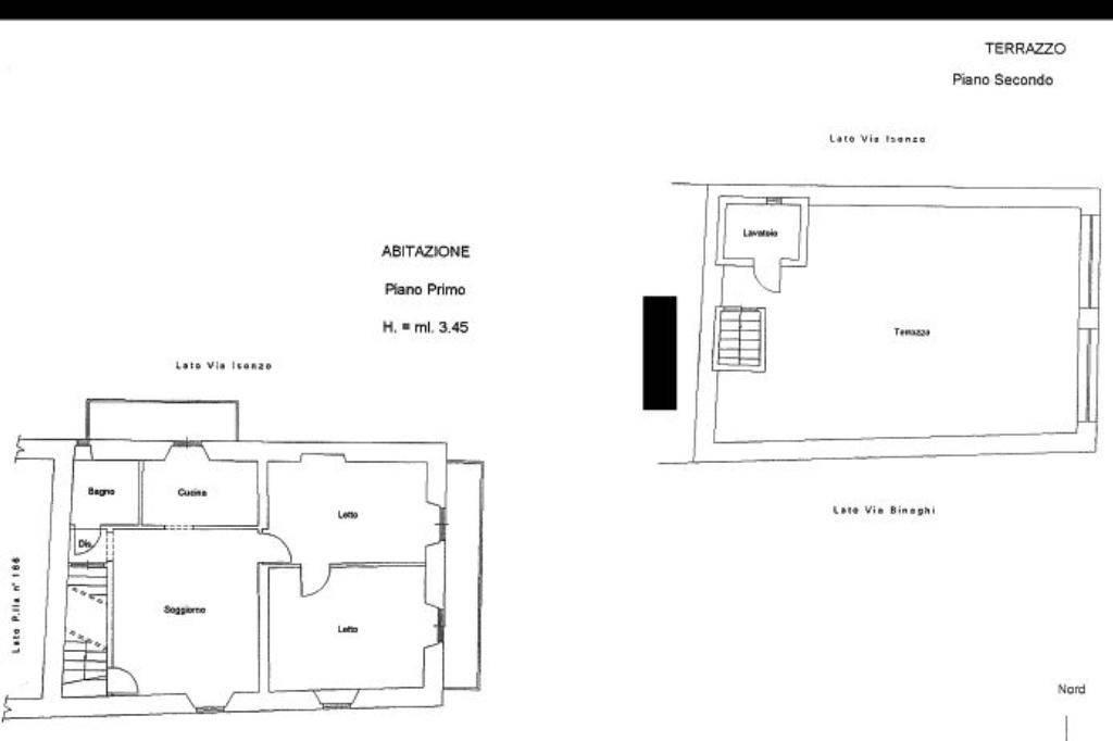
L’ appartamento è un trilocale con ingresso indipendente, ubicato in un edificio costruito negli anni ‘60. L’ immobile si sviluppa su 3 livelli e misura 60 mq così suddivisi:
PT: ingresso principale d’entrata;
P1: composto da disimpegno, bagno con doccia, sala da pranzo, angolo cottura, disimpegno, 2 camere da letto, di cui una matrimoniale e l’altra singola. P2: tramite la scala si raggiunge la dominante terrazza.
Questo angolo della casa affaccia sulla prorompente Montagna del Borgo e su Via di Castiglione.
Le peculiarità della casa sono gli sfoghi esterni, grandi e abitabili; il primo è caratterizzato dalla terrazza di 66 mq, con accesso dalla porta finestra dal P2. E’ il luogo perfetto dove vivere momenti di tranquillità e trascorrerci le belle serate in felice compagnia. Non solo, in questo spazio si può godere della bella vista sui paesaggi circostanti. Le altre pertinenze sono i balconi, il primo con uscita dalla cucina e l’altro delle camere che misura 13 mq circa.
La casa ha delle qualità raffinate è molto luminosa e vanta di una doppia esposizione. E’ una delle soluzioni piu’ ricercate, sia per la funzionalità che per il suo sapore autentico di appartamento con terrazza.
ASPETTI AGGIUNTIVI: L’immobile è stato ristrutturato nel 2012, presenta un buono stato abitabile. Gli infissi nuovi in doppio vetro alluminio come le persiane in alluminio. Il pavimento di tutta la casa è in grés. Il riscaldamento autonomo con gas diretto e predisposizione impianto climatizzazione, l’impianto idrico dispone di acqua diretta e l’allaccio alla fognatura comunale.
COLLEGAMENTI: Capolinea Cotral e S.A.P. , che collegano a Roma oppure permettono di raggiungere la stazione ferroviaria di Pianabella di Montelibretti con cadenza di treni ogni 15 minuti per la tratta Fiumicino Aeroporto – Orte .
E' l'immobile perfetto per chi ama dominare il panorama, potendo scrutare da ogni lato la vivace vista che Palombara Sabina offre; e per tutti coloro che ambiscono alla miglior qualità della vita possibile, all’insegna del comfort e del benessere.

LEGGI TUTTO

CONDIVIDI SUI SOCIAL

DATI PRINCIPALI

Riferimento
640421
Contratto
Affitto
Tipologia
Appartamento
Superficie
77 mq
Locali
3
Camere da letto
2
Cucina
Angolo cottura
Bagni
1
Piano
1 °
Totale piani
2

CARATTERISTICHE

Ascensore

COSTI

Canone
Affitto € 500,00 al mese
Tipo locazione
4+4

EFFICIENZA ENERGETICA

Stato
Abitabile
Anno costruzione
1990
Riscaldamento
Autonomo
Climatizzazione
Si
Classe energetica
G
IPE
307,05 kWh/m²a

A+

A

B

C

D

E

F

307,05 kWh/m²a | Classe energetica G

G

MAPPA