€ 750 mensili
  • Trilocale
  • 95 mq
  • 2 bagni

Appartamento in Affitto a Montelibretti

Montelibretti, Appartamenti in affitto - Nuova Costruzione

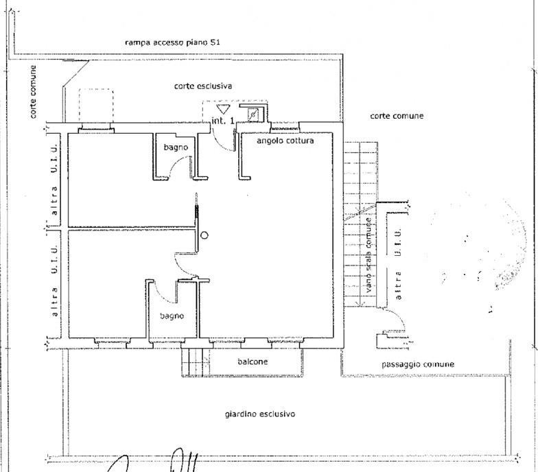
Scopri un'opportunità imperdibile con questi splendidi appartamenti di nuova costruzione, situati in una delle zone più panoramiche della Sabina Romana. Con una superficie di 90 mq, la tipologia B di 90 mq è la scelta ideale. Con due camere da letto e due bagni e giardino privato, questo appartamento è perfetto per famiglie o per chi desidera più spazio. Copmletano la proprietà una cantina e posto auto scoperto in area condominiale. Le ottime finiture interne, il portoncino blindato e gli infissi in PVC con doppi vetri garantiscono comfort e sicurezza, oltre a risc. autonomo, la richiesta è di € 750 mensili. Situati a soli 10 minuti da Passo Corese e dal nuovo polo commerciale nonchè stazione di Pianabella. Non perdere l'occasione di vivere in un contesto tranquillo e ben collegato.
Gli immobili sono disponibili da Febbraio 2026. Per info e appuntamenti anche il sabato tel 3200113921

LEGGI TUTTO

CONDIVIDI SUI SOCIAL

DATI PRINCIPALI

Riferimento
626870
Contratto
Affitto
Tipologia
Appartamento
Superficie
95 mq
Locali
3
Camere da letto
2
Cucina
A vista
Bagni
2
Piano
Piano terra
Totale piani
1
Box/Posto auto
Singolo

CARATTERISTICHE

Ascensore

COSTI

Canone
Affitto € 750,00 al mese
Tipo locazione
4+4
Spese condominiali
€ 30,00 / mese, non incluse nel canone

EFFICIENZA ENERGETICA

Stato
Nuovo/In costruzione
Anno costruzione
2012
Riscaldamento
Autonomo
Climatizzazione
Si
Classe energetica
A
IPE
175,00 kWh/m²a

A+

175,00 kWh/m²a | Classe energetica A

A

B

C

D

E

F

G

MAPPA

ANNUNCI SIMILI

AFFITTO 20
€ 550 mensili
Appartamento in Affitto a Moricone (Roma)
  • Quadrilocale
  • 96 mq
  • 2 bagni
AFFITTO 19
€ 400 mensili
Appartamento in Affitto a Moricone (Roma)
  • Trilocale
  • 56 mq
  • 1 bagno
AFFITTO 20
€ 500 mensili
Appartamento in Affitto a Palombara Sabina (Roma)
  • Trilocale
  • 77 mq
  • 1 bagno
AFFITTO 17
€ 850 mensili
Appartamento in Affitto a Fiano Romano (Roma)
  • Quadrilocale
  • 83 mq
  • 2 bagni
AFFITTO 13
€ 800 mensili
Appartamento in Affitto a Guidonia Montecelio (Roma)
  • Trilocale
  • 100 mq
  • 2 bagni
AFFITTO 6
€ 450 mensili
Appartamento in Affitto a Capena (Roma)
  • Trilocale
  • 65 mq
  • 1 bagno
AFFITTO 12
€ 700 mensili
Appartamento in Affitto a Fonte Nuova (Roma)
  • Quadrilocale
  • 110 mq
  • 1 bagno
AFFITTO 20
€ 1.500 mensili
Appartamento in Affitto a Riano (Roma)
  • Più di 5 locali
  • 145 mq
  • 3 bagni