• Trilocale
  • 76 mq
  • 1 bagno

Appartamento in Vendita a Rignano Flaminio

Nel centro di Rignano Flaminio, in una posizione strategica e comoda per raggiungere a piedi tutti i principali servizi, proponiamo in vendita appartamento situato in Via Bruno Buozzi, all’interno di un condominio curato e ben mantenuto, realizzato nel 2005.
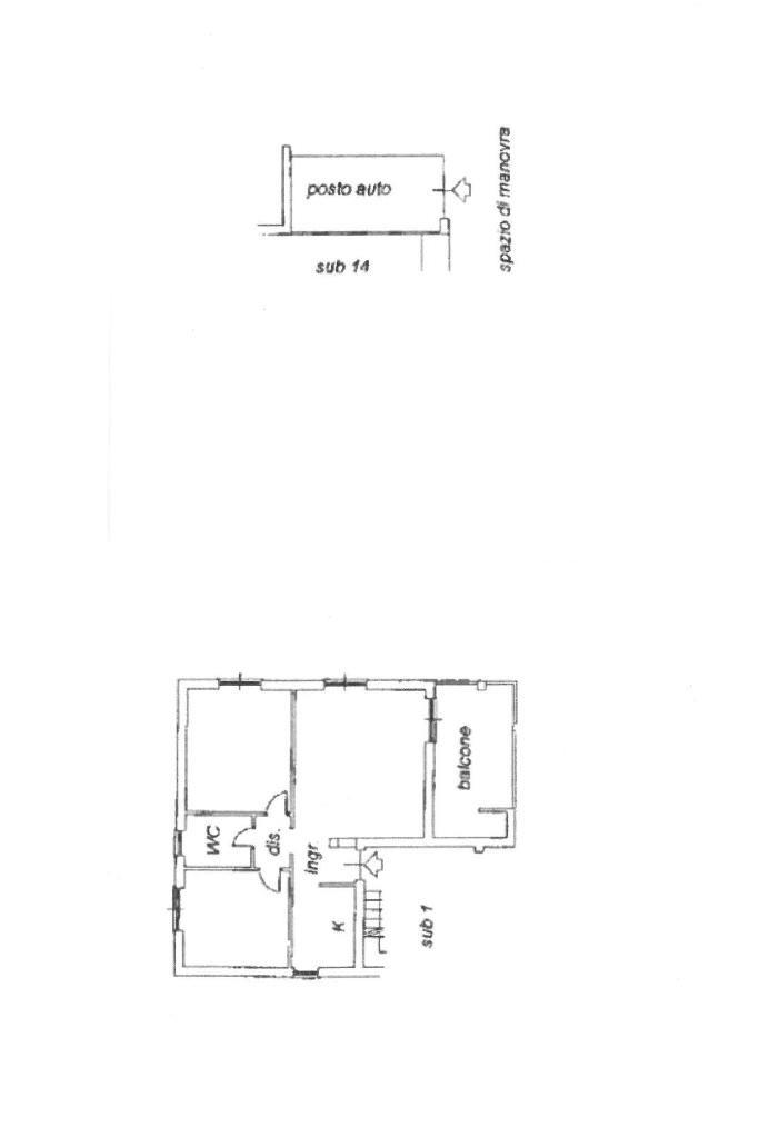
L’abitazione, posta al secondo piano e servita da ascensore, si sviluppa su un unico livello per una superficie interna di circa 75 mq e colpisce fin da subito per il suo stile moderno e funzionale, pensato per chi desidera vivere in ambienti accoglienti e pratici.
L’ingresso si apre su un luminoso soggiorno, spazio ideale per la vita quotidiana, con accesso diretto al terrazzo di circa 13 mq, perfetto per godersi piacevoli momenti di tranquillità; completa la zona giorno un moderno angolo cottura, ben organizzato e integrato nell’ambiente. La zona notte è composta da una comoda camera matrimoniale, un secondo ambiente versatile utilizzabile come studio o cameretta, un pratico disimpegno e un bagno finestrato dotato di vasca.
Un valore aggiunto dell’immobile è il posto auto di pertinenza, facilmente raggiungibile sia dall’interno tramite scala condominiale e ascensore, sia dall’esterno attraverso una rampa di accesso privata, garanzia di comfort e praticità in ogni stagione.
L’appartamento si presenta in buone condizioni ed è abitabile da subito, ideale sia come abitazione principale, sia come investimento, grazie alla posizione centrale e alla tipologia sempre molto richiesta.
L’ottima esposizione garantisce ambienti luminosi per gran parte della giornata, mentre la vista panoramica sul Monte Soratte dona una piacevole sensazione di apertura e tranquillità.
Una proposta moderna e funzionale, inserita nel centro del paese ma con un affaccio verso la natura, perfetta per chi cerca comodità senza rinunciare alla qualità dell’abitare.

LEGGI TUTTO

CONDIVIDI SUI SOCIAL

DATI PRINCIPALI

Riferimento
637539
Contratto
Vendita
Tipologia
Appartamento
Superficie
76 mq
Locali
3
Camere da letto
2
Cucina
Angolo cottura
Bagni
1
Piano
2 °
Totale piani
3
Box/Posto auto
Singolo

CARATTERISTICHE

Ascensore

COSTI

Prezzo
€ 109.000,00
Spese condominiali
€ 46,00 / mese

EFFICIENZA ENERGETICA

Stato
Abitabile
Anno costruzione
2005
Riscaldamento
Autonomo
Classe energetica
G
IPE
90,79 kWh/m²a

A+

A

B

C

D

E

F

90,79 kWh/m²a | Classe energetica G

G

MAPPA

ANNUNCI SIMILI

VENDITA 20
€ 88.000
Appartamento in Vendita a Rignano Flaminio (Roma)
  • Trilocale
  • 90 mq
  • 1 bagno
VENDITA 20
€ 65.000
Appartamento in Vendita a Rignano Flaminio (Roma)
  • Trilocale
  • 74 mq
  • 2 bagni
VENDITA 20
€ 115.000
Appartamento in Vendita a Rignano Flaminio (Roma)
  • Trilocale
  • 105 mq
  • 2 bagni