Rignano Flaminio Centralissimo Piano Terra VENDITA

Via Marco Polo 1 - Rignano Flaminio (Roma)
€ 139.000
  • Più di 5 locali
  • 105 mq
  • 2 bagni

Appartamento in Vendita a Rignano Flaminio

Rignano Flaminio Centralissimo Via Marco Polo 1
Adiacente Stazione e servizi
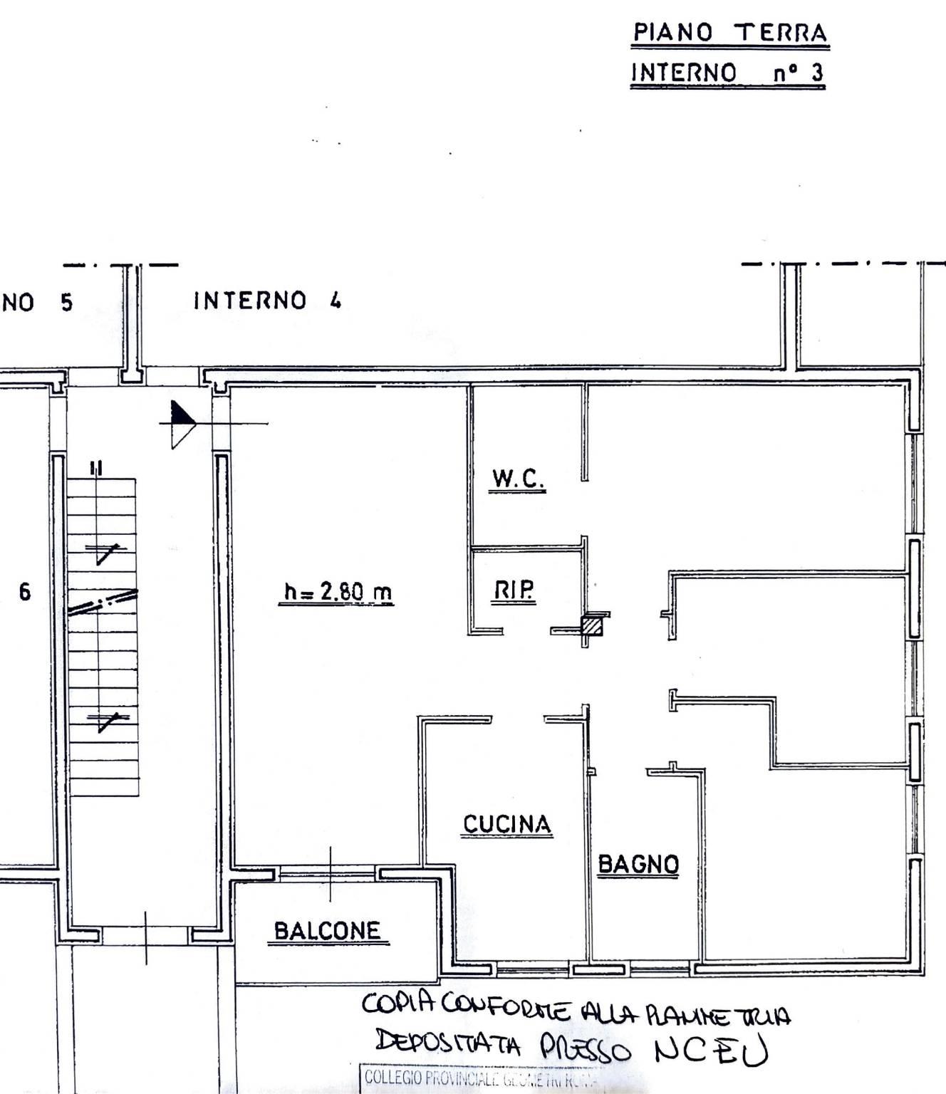
Disponiamo di un appartamento sito al Piano terra di circa 105 mq su unico livello
Ampio Salone con terrazzino
Cucina abitabile
Camera matrimoniale con bagno interno e doccia
2 camerette
Ripostiglio e secondo bagno con vasca
Riscaldamento autonomo
Completa la proprietà una soffitta al secondo piano di 22mq ed un posto auto coperto di 13 mq nel piano seminterrato
L'appartamento è libero su tre lati, molto luminoso e soleggiato
Buone le condizioni interne ed esterne Persiane in ferro anti scasso infissi in alluminio

Euro 139000 Mutuabili anche 100% con requisiti Consap
consulente mutui in sede gratuita

LEGGI TUTTO

CONDIVIDI SUI SOCIAL

DATI PRINCIPALI

Riferimento
629090
Contratto
Vendita
Tipologia
Appartamento
Superficie
105 mq
Locali
5
Camere da letto
3
Cucina
Abitabile
Bagni
2
Piano
Piano terra
Totale piani
2
Box/Posto auto
Singolo

CARATTERISTICHE

Ascensore

COSTI

Prezzo
€ 139.000,00
Spese condominiali
€ 30,00 / mese

EFFICIENZA ENERGETICA

Stato
Abitabile
Anno costruzione
1995
Riscaldamento
Autonomo
Classe energetica
G
IPE
351,00 kWh/m²a

A+

A

B

C

D

E

F

351,00 kWh/m²a | Classe energetica G

G

MAPPA

ANNUNCI SIMILI

VENDITA 12
€ 41.428
Appartamento in Vendita a Rignano Flaminio (Roma)
  • Più di 5 locali
  • 118 mq
  • 1 bagno
VENDITA 12
€ 51.216
Appartamento in Vendita a Rignano Flaminio (Roma)
  • Più di 5 locali
  • 141 mq
  • 1 bagno
VENDITA 20
€ 119.000
Appartamento in Vendita a Capena (Roma)
  • Più di 5 locali
  • 100 mq
  • 1 bagno
VENDITA 20
€ 220.000
Appartamento in Vendita a Capena (Roma)
  • Più di 5 locali
  • 135 mq
  • 2 bagni