€ 220.000
  • Più di 5 locali
  • 135 mq
  • 2 bagni

Appartamento in Vendita a Capena

Capena – Casa indipendente con terrazzo panoramico e ampi spazi
Immagina di vivere nel cuore di Capena, a due passi da tutti i servizi essenziali – farmacia, supermercati, scuole e fermate degli autobus – senza rinunciare alla privacy e alla comodità di una casa indipendente.
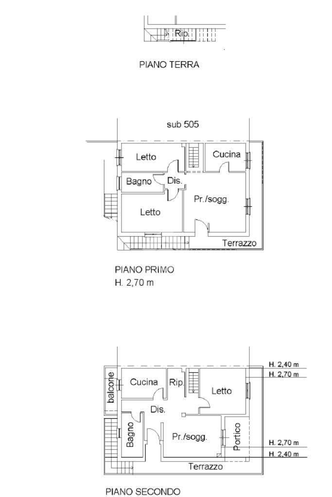
Questa proprietà, di circa 150 mq disposti su due livelli, accoglie con ambienti luminosi e panoramici, perfetti per chi cerca una soluzione spaziosa e versatile.
Al primo piano troviamo un soggiorno con accesso ad un balcone che corre su due lati, ideale per godere della luce naturale durante tutto il giorno. Una cucina pratica, una camera matrimoniale, una cameretta e un bagno con doccia completano il piano, offrendo già tutto il necessario per una vita familiare confortevole.
Salendo al secondo piano si respira un’atmosfera più intima e conviviale: il soggiorno con camino diventa il cuore della casa, con uscita su un ampio terrazzo vivibile e panoramico, perfetto per pranzi all’aperto o serate con amici. La cucina con balcone, una camera matrimoniale, ripostiglio e un bagno con doccia rendono questo piano un vero e proprio appartamento indipendente.
A completare la proprietà troviamo un ampio box triplo di circa 70 mq, con doppio ingresso, che oggi viene sfruttato anche come spazio di servizio.
Un dettaglio non da poco: grazie al doppio ingresso e alle scale esterne, l’immobile si presta facilmente ad essere diviso in due appartamenti indipendenti, una soluzione ideale per chi desidera ospitare due nuclei familiari o coniugare casa e investimento.
Tra le dotazioni: grate, zanzariere, predisposizione per condizionatori su entrambi i piani e per l’allarme, autoclave con cisterna di 1500 litri, per vivere la casa in totale tranquillità e comfort.
Una casa versatile, luminosa e con spazi esterni vivibili, pronta ad accogliere nuove storie.

LEGGI TUTTO

CONDIVIDI SUI SOCIAL

DATI PRINCIPALI

Riferimento
639754
Contratto
Vendita
Tipologia
Appartamento
Superficie
135 mq
Locali
5
Camere da letto
3
Cucina
Abitabile
Bagni
2
Piano
1 °
Totale piani
2
Box/Posto auto
Singolo

CARATTERISTICHE

Ascensore

COSTI

Prezzo
€ 220.000,00

EFFICIENZA ENERGETICA

Stato
Abitabile
Anno costruzione
1995
Riscaldamento
Autonomo
Climatizzazione
Si
Classe energetica
E
IPE
158,50 kWh/m²a

A+

A

B

C

D

158,50 kWh/m²a | Classe energetica E

E

F

G

MAPPA

ANNUNCI SIMILI

VENDITA 20
€ 119.000
Appartamento in Vendita a Capena (Roma)
  • Più di 5 locali
  • 100 mq
  • 1 bagno
VENDITA 13
€ 138.000
Appartamento in Vendita a Capena (Roma)
  • Più di 5 locali
  • 120 mq
  • 2 bagni
VENDITA 20
€ 250.000
Appartamento in Vendita a Capena (Roma)
  • Più di 5 locali
  • 160 mq
  • 3 bagni
VENDITA 20
€ 650.000
Appartamento in Vendita a Fiano Romano (Roma)
  • Più di 5 locali
  • 530 mq
  • 4 bagni
VENDITA 11
€ 157.360
Appartamento in Vendita a Riano (Roma)
  • Più di 5 locali
  • 408 mq
  • 3 bagni
VENDITA 19
€ 97.000
Appartamento in Vendita a Riano (Roma)
  • Più di 5 locali
  • 110 mq
  • 1 bagno