• Trilocale
  • 70 mq
  • 2 bagni

Appartamento in Vendita a Rignano Flaminio

Proponiamo in vendita, nel centro di Rignano Flaminio, precisamente in Via Leoncavallo, a pochi passi dalla stazione ferroviaria e dai principali servizi, un appartamento di recente costruzione (anno 2005) situato al piano terra di un condominio curato e ben tenuto.
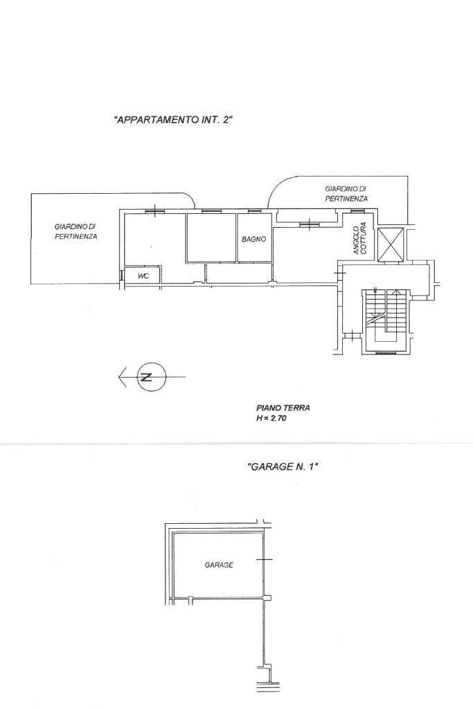
L’immobile si sviluppa su un unico livello per una metratura interna di circa 70 mq; e si distingue per uno stile moderno e confortevole, ideale per chi cerca praticità e comodità. L’ingresso apre su un luminoso soggiorno con cucina a vista, con accesso diretto a un ampio balcone, uno dei due sfoghi esterni che rendono l’abitazione particolarmente vivibile, ideale per momenti di relax.
La zona notte è composta da una camera matrimoniale con bagno di servizio finestrato e da un ulteriore ambiente versatile, perfetto come studio o cameretta, disimpegno e infine il bagno principale dotato di vasca idromassaggio.
Completa la proprietà un giardino privato, secondo sfogo esterno, perfetto per chi desidera uno spazio all’aperto ampio e funzionale.
È inoltre presente un garage di pertinenza di 22 mq circa, comodamente raggiungibile sia dall’interno tramite scala condominiale e ascensore, sia dall’esterno attraverso rampa di accesso privata.
L’appartamento si presenta in buone condizioni, abitabile da subito, soluzione ideale per chi cerca una casa comoda dal design moderno, oppure ottimo uso investimento.

LEGGI TUTTO

CONDIVIDI SUI SOCIAL

DATI PRINCIPALI

Riferimento
637536
Contratto
Vendita
Tipologia
Appartamento
Superficie
70 mq
Locali
3
Camere da letto
2
Cucina
Abitabile
Bagni
2
Piano
Piano terra
Totale piani
3
Box/Posto auto
Singolo

CARATTERISTICHE

Ascensore

COSTI

Prezzo
€ 109.000,00
Spese condominiali
€ 42,00 / mese

EFFICIENZA ENERGETICA

Stato
Abitabile
Anno costruzione
2005
Riscaldamento
Autonomo
Classe energetica
G
IPE
90,79 kWh/m²a

A+

A

B

C

D

E

F

90,79 kWh/m²a | Classe energetica G

G

MAPPA

ANNUNCI SIMILI

VENDITA 20
€ 65.000
Appartamento in Vendita a Rignano Flaminio (Roma)
  • Trilocale
  • 74 mq
  • 2 bagni