• Trilocale
  • 67 mq
  • 2 bagni

Appartamento in Vendita a Roma

FRONTE CASSIA - VIA RICCARDO MORBELLI

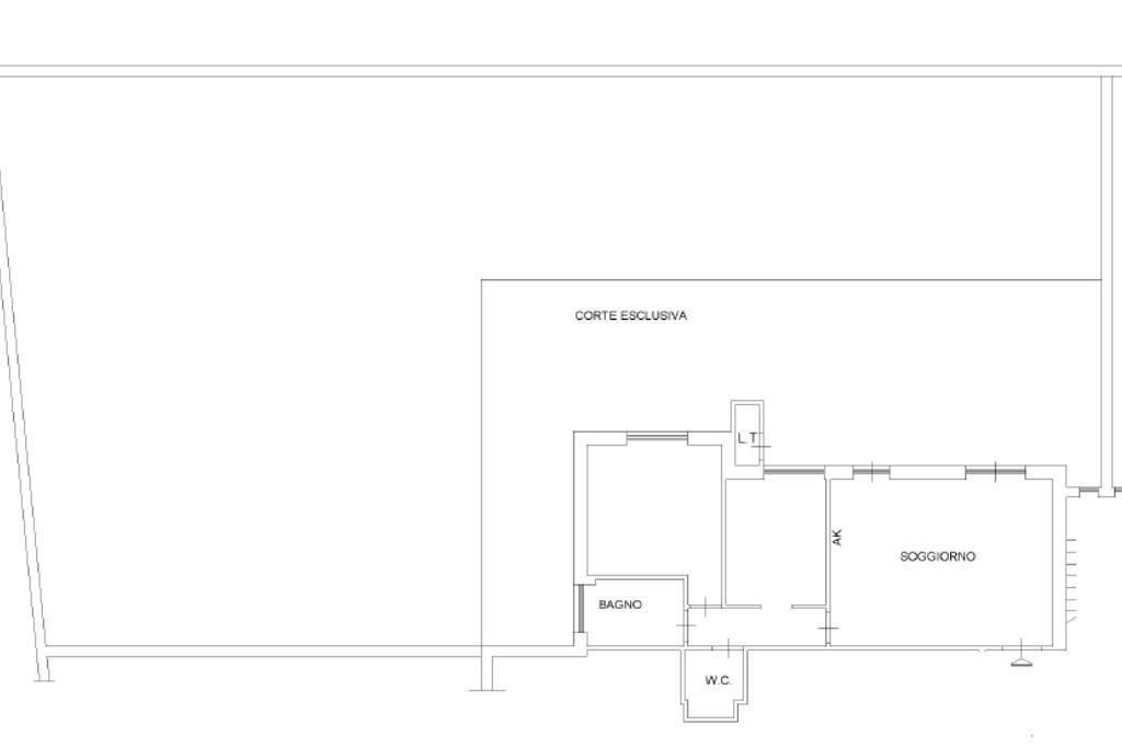
Proponiamo in vendita un appartamento trilocale di circa 70 mq commerciali, posto al piano terra con giardino, completamente ristrutturato nel 2023, ideale per chi è alla ricerca di una soluzione abitativa moderna, senza però rinunciare ad ampi spazi esterni.
L’immobile si presenta in ottimo stato interno, frutto di una ristrutturazione totale che ha interessato ogni ambiente, con particolare attenzione alla funzionalità degli spazi e al comfort abitativo.
L’ingresso si apre su una pratica zona giorno open space con angolo cottura, estremamente luminosa grazie all’esposizione a sud dell’intera abitazione.

Elemento distintivo della proprietà è l’ampio giardino angolare di circa 300 mq, accessibile direttamente dalla zona giorno. Si tratta di uno spazio esterno di rara metratura per un appartamento in condominio, ed è ideale per momenti di relax, pranzi e cene all’aperto o per chi desidera un’area verde esclusiva.

Il pratico disimpegno soppalcato separa in modo razionale la zona notte, composta da camera matrimoniale, cameretta e due bagni.
Il bagno principale è caratterizzato dalla presenza di un ampio box doccia e dalla finestra, il secondo bagno invece è un ambiente di servizio dove è stata ricavata una pratica e funzionale zona lavanderia.

La ristrutturazione di cui è stata soggetta l’abitazione ha visto il completo rifacimento degli impianti elettrici e idrici, caldaia e termosifoni nuovi, la sostituzione degli infissi e l’applicazione di inferriate e zanzariere, l’istallazione di climatizzatori con pompa di calore in ogni ambiente e l’inserimento di impianto di allarme e sistema domotico per una pratica gestione tramite app di luci e serrande, garantendo standard moderni di efficienza e sicurezza.

Completa la proprietà un box auto di circa 16 mq, comodo e facilmente accessibile, che rappresenta un ulteriore valore aggiunto in termini di praticità.

Si tratta di una soluzione ideale per famiglie o giovani coppie o anche semplicemente per chi desidera un’abitazione pronta da abitare, con grande spazio esterno privato e comfort moderni.
Chiamaci per prendere un appuntamento allo 06.30892545 oppure manda un messaggio su Whatsapp al 351.2114414
Ogni agenzia ha un proprio titolare ed è autonoma - Le presenti informazioni non costituiscono elemento contrattuale.

LEGGI TUTTO

CONDIVIDI SUI SOCIAL

DATI PRINCIPALI

Riferimento
636015
Contratto
Vendita
Tipologia
Appartamento
Superficie
67 mq
Locali
3
Camere da letto
2
Cucina
Angolo cottura
Bagni
2
Piano
Piano terra
Totale piani
3
Box/Posto auto
Singolo

CARATTERISTICHE

Ascensore

COSTI

Prezzo
€ 247.000,00
Spese condominiali
€ 100,00 / mese

EFFICIENZA ENERGETICA

Stato
Nuovo/In costruzione
Anno costruzione
1994
Riscaldamento
Autonomo
Climatizzazione
Si
Classe energetica
F
IPE
318,51 kWh/m²a

A+

A

B

C

D

E

318,51 kWh/m²a | Classe energetica F

F

G

MAPPA

ANNUNCI SIMILI

VENDITA 14
€ 254.000
Appartamento in Vendita a Roma (Roma)
  • Trilocale
  • 129 mq
  • 2 bagni
VENDITA 20
€ 280.000
Appartamento in Vendita a Roma, Frazione La Storta
  • Trilocale
  • 126 mq
  • 2 bagni
VENDITA 20
€ 180.000
Appartamento in Vendita a Roma, Frazione La Storta
  • Trilocale
  • 85 mq
  • 2 bagni
VENDITA 11
€ 395.000
Appartamento in Vendita a Roma (Roma)
  • Più di 5 locali
  • 151 mq
  • 2 bagni
VENDITA 19
€ 180.000
Appartamento in Vendita a Roma (Roma)
  • Quadrilocale
  • 121 mq
  • 2 bagni
VENDITA 19
€ 180.000
Appartamento in Vendita a Roma (Roma)
  • Quadrilocale
  • 121 mq
  • 2 bagni
VENDITA 19
€ 140.000
Appartamento in Vendita a Roma, Frazione La Storta
  • Trilocale
  • 80 mq
  • 1 bagno