€ 395.000
  • Trilocale
  • 140 mq
  • 2 bagni

Appartamento in Vendita a Roma

* E.U. R. – VIA CANZONE DEL PIAVE

TRILOCALE LUMINOSO E RISERVATO CON AMPIO GIARDINO PRIVATO

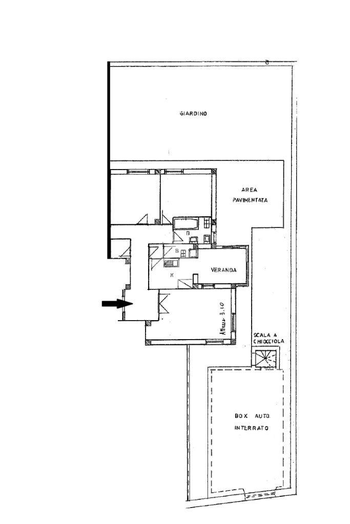
Nel quartiere E. U. R., precisamente in Via Canzone del Piave, proponiamo in vendita esclusiva un appartamento sito al primo piano con giardino privato di circa 250mq al quale hanno accesso tutti i locali della casa.

La soluzione, che si trova all’interno di un’elegante palazzina di soli cinque piani, è così composta: ampio ingresso, salone, cucina abitabile, due camere da letto matrimoniali, veranda regolarmente condonata, doppi servizi di cui uno finestrato. Internamente l’appartamento ha una superficie utile netta di 100 mq.

Incluso nel prezzo vi è una cantina asciutta e comoda di 9 mq.Vi è anche la possibilità di acquistare con una trattativa separata un box auto triplo di 52 mq netti dotato di passo carrabile e collegato internamente con il giardino della casa.
Degni di nota sono anche i due appartamenti condominiali che, essendo regolarmente locati, offrono una rendita tale da poter azzerare totalmente i costi condominiali dell’appartamento.
Riscaldamento autonomo.

L’appartamento è molto silenzioso e riservato ciò è garantito dal piano che lo eleva rispetto alla strada e dai tre affacci, due interni ed il terzo comunque rientrato e rialzato rispetto a Via Canzone del Piave.

L’appartamento è particolarmente luminoso durante tutto l’arco della giornata godendo di una triplice esposizione (SUD – EST -OVEST) per la maggior parte a SUD.

La collocazione della palazzina rende l'accesso alla casa molto sicuro sia il giorno che la notte e le grate di sicurezza garantiscono la protezione dell’appartamento.

La posizione strategica dell'immobile, la vicinanza alla fermata metro, al centro commerciale e a tutti i principali servizi lo rendono estremamente confortevole per un uso residenziale.

LEGGI TUTTO

CONDIVIDI SUI SOCIAL

DATI PRINCIPALI

Riferimento
631453
Contratto
Vendita
Tipologia
Appartamento
Superficie
140 mq
Locali
3
Camere da letto
2
Bagni
2
Piano
1 °

CARATTERISTICHE

Ascensore

COSTI

Prezzo
€ 395.000,00

EFFICIENZA ENERGETICA

Stato
Da ristrutturare
Riscaldamento
Autonomo
Climatizzazione
Si
Classe energetica
G
IPE
175,00 kWh/m²a

A+

A

B

C

D

E

F

175,00 kWh/m²a | Classe energetica G

G

MAPPA

ANNUNCI SIMILI

VENDITA 20
€ 599.000
Appartamento in Vendita a Roma (Roma)
  • Più di 5 locali
  • 200 mq
  • 2 bagni
VENDITA 20
€ 375.000
Appartamento in Vendita a Roma (Roma)
  • Trilocale
  • 143 mq
  • 2 bagni
VENDITA 20
€ 298.000
Appartamento in Vendita a Roma (Roma)
  • Trilocale
  • 85 mq
  • 1 bagno
VENDITA 20
€ 310.000
Appartamento in Vendita a Roma (Roma)
  • Trilocale
  • 92 mq
  • 1 bagno
VENDITA 20
€ 450.000
Appartamento in Vendita a Roma (Roma)
  • Quadrilocale
  • 150 mq
  • 2 bagni
VENDITA 20
€ 409.000
Appartamento in Vendita a Roma (Roma)
  • Quadrilocale
  • 140 mq
  • 2 bagni